Exhibit 10.16
![]() |
Colliers International WA, LLC 11225 SE 6th St, Suite 240 Bellevue, WA 98004 Phone: 425-453-4545 Fax: 425-453-4540 |
© Commercial Brokers Association ALL RIGHTS RESERVED
Form: SUB_LS Sublease Agreement Rev. 9/2020 Page 1 of 20 |
|
SUBLEASE AGREEMENT
THIS SUBLEASE AGREEMENT (“Sublease”) is entered and effective this 13 day of July, 20 23, by Helion Energy, Inc. __________, a(n) Delaware corporation (“Tenant”), and JDL Digital Systems, Inc., a(n) Washington corporation (“Subtenant”). Tenant entered into that certain lease agreement dated March 17, 2015, AND FURTHER AMENDED MAY 18, 2020 (FIRST AMENDMENT), APRIL 13, 2021 (SECOND AMENDMENT), JULY 28, 2021 (LANDLORD LETTER), AND APRIL 21, 2022 (THIRD AMENDMENT) COLLECTIVELY THE (“Master Lease”) with Kore Westpark LLC, a(n) Delaware limited liability company as landlord (“Landlord”), for the leased premises legally described in the attached Exhibit 1 (the “Master Premises”). The Master Premises is located in that certain building commonly known as 8210 154th Ave NE, Redmond, Washington 98052, located in Building A (the “Building”), and situated on real property legally described in the Master Lease (the “Property”). A copy of the Master Lease, including all amendments and addenda thereto, is attached as Exhibit 2.
Tenant and Subtenant agree as follows:
1. SUBLEASE SUMMARY.
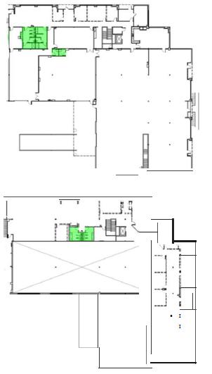
| a. | Subleased Premises. Tenant leases to Subtenant and Subtenant leases from Tenant that portion of the Master Premises (the “Subleased Premises”) consisting of an agreed area of 15,567 rentable square feet on the 1st and 2nd floor(s) of the Master Premises, as outlined on the floor plan attached as Exhibit 3 and commonly known as 8210 154th Ave NE 120 & 250, Redmond, WA 98052. |
| b. | Sublease Commencement Date. The term of this Sublease shall commence upon (check one): | |
☐ Substantial completion of (choose one) ☐ Tenant’s Work, or ☐ Subtenant’s Work as further described in the attached Exhibit 4 (“Work Letter”), but in no event later than________, 20 __
☒
SEE ADDENDUM/AMENDMENT TO CBA SUBLEASE ___________
(the “Sublease Commencement Date”). |
| c. | Sublease Termination Date. The term of this Sublease shall terminate at midnight on the last day of the July 31, 2024 full month following the Sublease Commencement Date, or one (1) day prior to the termination date of the Master Lease, whichever is earlier, unless sooner terminated in accordance with the terms of this Sublease (the “Sublease Termination Date”). Subtenant shall have no right or option to extend this Sublease. |
| d. | Base Rent. Subtenant shall pay to Tenant monthly base rent (check one): ☒ $ 25,000.00, or ☐ according to the Rent Rider attached hereto (“Base Rent). Rent shall be payable at Tenant’s address shown in Section 1(h) below, or such other place designated in writing by Tenant. | |
| e. | Prepaid Rent. Upon
execution of this Sublease, Subtenant shall deliver to Tenant the sum of $ 25,000.00 as prepaid rent to be applied to Rent
due for |
| f. | Security Deposit. Upon execution of this Sublease, Subtenant shall deliver to Tenant the sum of $ $25,000.00 to be held as a security deposit pursuant to Section 5 below. The security deposit shall be in the form of (check one): ☒ cash, check or wire transfer, or ☐ letter of credit according to the Letter of Credit Rider (CBA Form LCR) attached hereto. |
| g. | Permitted Use. The Subleased Premises shall be used only for Executive, general, administrative offices and warehousing, and any legally permissible use, subject to the Master Lease, applicable zoning, and other laws, and for no other purpose without the prior written consent of Tenant (the “Permitted Use”). |
| h. | Notice and Payment Addresses: Tenant: |
![]() |
Colliers International WA, LLC 11225 SE 6th St, Suite 240 Bellevue, WA 98004 Phone: 425-453-4545 Fax: 425-453-4540 |
© Commercial Brokers Association ALL RIGHTS RESERVED
Form: SUB_LS Sublease Agreement Rev. 9/2020 Page 2 of 20 |
|
SUBLEASE AGREEMENT
Helion Energy, Inc.
1415 75th Street SW, Everett, WA 98203
Email:
Subtenant:
JDL Digital Systems, Inc.
Email:
| i. | Subtenant’s Sublease Share. Subtenant’s Sublease Share of any operating costs, common area charges, additional rent, or other amounts payable by Tenant under the Master Lease is 0 % of such amounts, based upon the ratio of the rentable area of the Subleased Premises to the rentable area of the Master Premises. |
| 2. | PREMISES. |
| a. | Lease of Premises. Tenant leases to Subtenant, and Subtenant leases from Tenant the Subleased Premises upon the terms specified in this Sublease. |
| b. | Acceptance of Premises. Except as specified elsewhere in this Sublease, Tenant makes no representations or warranties to Subtenant regarding the Subleased Premises, including the structural condition of the Subleased Premises or the condition of all mechanical, electrical, and other systems on the Subleased Premises. Except for any subtenant improvements to be completed by Tenant as described in the Work Letter attached as Exhibit 4 (“Tenant’s Work”), Subtenant shall accept the Subleased Premises and its appurtenances in their respective AS-IS, WHERE-IS condition, and shall further be responsible for performing any work necessary to bring the Subleased Premises into a condition satisfactory to Subtenant. By signing this Sublease, Subtenant acknowledges that it has had adequate opportunity to investigate the Subleased Premises, acknowledges responsibility for making any corrections, alterations and repairs to the Subleased Premises (other than Tenant’s Work), and acknowledges that the time needed to complete any such items shall not delay the Sublease Commencement Date. |
| c. | Subtenant Improvements. The Work Letter attached as Exhibit 4 sets forth all of Tenant’s Work, if any, and all improvements to be completed by Subtenant ( “Subtenant’s Work”), if any, that will be performed on the Subleased Premises. Responsibility for design, payment and performance of all such work shall be as set forth in the Work Letter. |
| 3. | TERM. The term of this Sublease shall commence on the Commencement Date and shall end on the Termination Date (the “Term”). |
| a. | Early Possession. Subtenant acknowledges that Tenant may need to obtain Landlord’s consent to this Sublease as provided in Sections 21 and 24 of this Sublease prior to Subtenant occupying the Subleased Premises, and that Subtenant shall not occupy the Subleased Premises without the prior written consent of Tenant. In the event Tenant gives Subtenant access to the Premises preceding the Sublease Commencement Date for the purpose of installing Subtenant’s furniture, telecommunications, fixtures, telephone systems and computer cabling and the performance of Subtenant’s Work, if any, such access shall be fully coordinated with Tenant in advance and Subtenant shall not interfere with Tenant’s Work. All of the terms and conditions of this Sublease, including Subtenant’s insurance and indemnification obligations, shall apply during such time, except for payment of Base Rent. If Subtenant occupies the Subleased Premises before the Sublease Commencement Date specified in Section 1, then such date of occupancy shall not advance the Sublease Commencement Date or Sublease Termination Date set forth above. |
![]() |
Colliers International WA, LLC 11225 SE 6th St, Suite 240 Bellevue, WA 98004 Phone: 425-453-4545 Fax: 425-453-4540 |
© Commercial Brokers Association ALL RIGHTS RESERVED
Form: SUB_LS Sublease Agreement Rev. 9/2020 Page 3 of 20 |
|
SUBLEASE AGREEMENT
| b. | Delayed Possession. Tenant shall act diligently to make the Subleased Premises available to Subtenant, provided, however, that neither Tenant nor any agent or employee of Tenant shall be liable for any damage or loss due to Tenant’s inability or failure to deliver possession of the Premises to Subtenant as provided in this Sublease. If possession is delayed, the Sublease Commencement Date set forth in Section 1 shall also be delayed, but the Sublease Termination Date shall not be extended by such delay. If Tenant has not delivered possession of the Subleased Premises to Subtenant within___________days ((60) days if not filled in) after the Sublease Commencement Date specified in Section 1 (check one): ☐ Subtenant may elect to cancel this Sublease by giving written notice to Tenant no later than__________((10) days if not filled in) after such time period ends, or ☒ then all Base Rent and Additional Rent (as defined below) shall be abated for each one (1) day after the Sublease Commencement Date during which possession of the Subleased Premises has not been delivered to Subtenant. If Subtenant gives notice of cancellation, as Subtenant’s sole and exclusive remedy, this Sublease shall be cancelled, all prepaid rent and security deposits shall be refunded to Subtenant, and neither Tenant nor Subtenant shall have any further obligations to the other. |
Notwithstanding anything in this Section 3 to the contrary, to the extent that any portions of the Tenant’s Work or the Subtenant’s Work have not been completed in time for the Subtenant to occupy or take possession of the Subleased Premises on the Sublease Commencement Date due to the failure of Subtenant to fulfill any of its obligations under this Sublease (“Subtenant Delays”), the Sublease shall nevertheless commence on the Sublease Commencement Date, including without limitation, Subtenant’s obligation to pay Base Rent and Additional Rent, as set forth in Section 1, or upon the date that the Sublease Commencement Date would have occurred but for the Subtenant Delays.
| 4. | RENT. |
| a. | Payment of Rent. Subtenant shall pay Tenant without notice, demand, deduction or offset, in lawful money of the United States, the monthly Base Rent stated in Section 1 in advance on or before the first day of each month during the Sublease Term beginning on (check one): ☒ the Sublease Commencement Date, or ☐ ______ (if no date specified, then on the Sublease Commencement Date), and any other additional payments due to Tenant (“Additional Rent”, and together with Base Rent, the “Rent”) when required under this Sublease. Payments for any partial month during the Term shall be prorated. All payments due to Tenant under this Sublease, including late fees and interest, shall also constitute Additional Rent, and upon Subtenant’s failure to pay any such costs, charges or expenses, Tenant shall have the same rights and remedies as otherwise provided in this Sublease for the failure of Subtenant to pay Rent. | |
| b. | Late Charges; Default Interest. If any sums payable by Subtenant to Tenant under this Sublease are not received within five (5) days of their due date, Subtenant shall pay Tenant an amount equal to the sum which would be payable by Tenant to the Landlord for an equivalent default under the Master Lease or 5% of the delinquent amount for the cost of collecting and handling such late payment in addition to the amount due and as Additional Rent, whichever is greater. All delinquent sums not paid by Subtenant within five (5) business days of the due date shall, at Tenant’s option, bear interest at the rate the Tenant would pay the Landlord under the Master Lease for an equivalent default or the highest rate of interest allowable by law, whichever is less. Interest on all delinquent amounts shall be calculated from the original due date to the date of payment. | |
| c. | Less Than Full Payment. Tenant’s acceptance of less than the full amount of any payment due from Subtenant shall not be deemed an accord and satisfaction or compromise of such payment unless Tenant specifically consents in writing to payment of such lesser sum as an accord and satisfaction or compromise of the amount which Tenant claims. Any portion that remains to be paid by Tenant shall be subject to the late charges and default interest provisions of this Section. |
![]() |
Colliers International WA, LLC 11225 SE 6th St, Suite 240 Bellevue, WA 98004 Phone: 425-453-4545 Fax: 425-453-4540 |
© Commercial Brokers Association ALL RIGHTS RESERVED
Form: SUB_LS Sublease Agreement Rev. 9/2020 Page 4 of 20 |
|
SUBLEASE AGREEMENT
| 5. | SECURITY DEPOSIT. Upon execution of this Sublease, Subtenant shall deliver to Tenant the security deposit specified in Section 1 above. Tenant’s obligations with respect to the security deposit are those of a debtor and not of a trustee, and Tenant may commingle the security deposit with its other funds. If Subtenant defaults in the performance of any covenant or condition of this Sublease, Tenant shall have the right, but not the obligation, to use or retain all or any portion of the security deposit for the payment of: (i) Base Rent, Additional Rent, or any other sum as to which Subtenant is in default; or (ii) the amount Tenant spends or may become obligated to spend, or to compensate Tenant for any losses incurred by reason of Subtenant’s default. Subtenant acknowledges, however, that the security deposit shall not be considered as a measure of Subtenant’s damages in case of default by Subtenant, and any payment to Tenant from the security deposit shall not be construed as a payment of liquidated damages for Subtenant’s default. If at any time during the Term of the Sublease the security deposit delivered by Subtenant becomes insufficient to cover the amounts required under this Section 5, whether or not due to Tenant’s application of all or a portion of the security deposit contemplated by this Section, Subtenant shall, within five (5) days after written demand therefore by Tenant, deposit with Tenant an amount sufficient to replenish the security deposit to the amount required in Section 1 above. If Subtenant is not in default of any covenant or condition of this Sublease at the end of the Term, Tenant shall return any unused portion of the security deposit without interest within 30 days after the surrender of the Subleased Premises by Subtenant in the condition required by Section 9 of this Sublease. |
| 6. | MASTER LEASE. Tenant represents to Subtenant that as of the effective date of this Sublease: (a) Tenant has delivered to Subtenant a complete copy of the Master Lease (which may contain redacted business terms), which represents all agreements between Landlord and Tenant relating to the leasing, use, and occupancy of the Subleased Premises, and (b) Tenant has not received notice of an uncured breach or default from Landlord under the Master Lease. Tenant shall not agree to an amendment to the Master Lease which would have an adverse effect on Subtenant’s occupancy of the Subleased Premises or its intended use of the Subleased Premises, without obtaining Subtenant’s prior written consent, which consent shall not be unreasonably withheld, conditioned, or delayed. Subtenant represents that it has read and is familiar with the terms of the Master Lease. |
This Sublease is subject to and subordinate to the Master Lease. If the Master Lease terminates, this Sublease shall automatically terminate. Tenant and Subtenant shall not, by their omission or act, do or permit anything to be done which would cause a default under the Master Lease. If the Master Lease terminates or is forfeited as a result of a default or breach by Tenant or Subtenant under this Sublease and/or the Master Lease, then the defaulting party shall be liable to the non-defaulting party for the damage suffered as a result of such termination or forfeiture. Tenant shall exercise diligent, commercially reasonable efforts to cause Landlord to perform its obligations under the Master Lease for the benefit of the Subtenant.
All the terms, covenants and conditions contained in the Master Lease are incorporated into and made a part of this Sublease by this reference as if Tenant were the landlord under the Master Lease, the Subtenant were the tenant under the Master Lease, and the Subleased Premises were the Master Premises, except as may be inconsistent with the terms contained in this Sublease and except for the following: Subtenant shall be responsible for all utilities and services used by Subtenant in the Subleased Premises to the extent not already provided by and/or billed by Landlord. Subtenant shall not be responsible for any additional rent or operating costs billed as additional rent by the Master Lease. (none if not specified).
| 7. | ADDITIONAL CHARGES. If Tenant shall be charged for additional rent or other sums pursuant to the provisions of the Master Lease, Subtenant shall be liable for its Sublease Share, as stated in Section 1 above, of such additional rent or sums, including without limitation, payments for taxes, common area charges, utilities and services, and operating costs. Subtenant shall be responsible for determining the availability of utilities and for determining the adequacy of their capacities for Subtenant’s needs. Subtenant shall install and connect, as necessary, and directly pay for all water, sewer, gas, janitorial, electricity, garbage removal, heat, telephone, Internet, cable services, and other utilities and services used by Subtenant at the Subleased Premises during the Term to the extent not already provided by and/or billed by Tenant or Landlord. Notwithstanding the foregoing, if Subtenant’s use of the Premises incurs utility service charges which are above those usual and customary for the Permitted Use, Tenant reserves the right to require Subtenant to pay a reasonable additional charge for such usage. If Subtenant shall procure any additional service for the Subleased Premises, including but not limited to after-hours HVAC services, Subtenant shall pay for same at the rates charged by Landlord and shall make such payment to Tenant or to Landlord, as Tenant shall direct. Any sums payable by Subtenant under this Section shall constitute Additional Rent and shall be paid to Tenant no later than five (5) days before they are due from Tenant to Landlord under the Master Lease. If Tenant shall receive any refund for Additional Rent or sums paid under the Master Lease, then, to the extent such refund relates to time periods falling within the Term of this Sublease, Subtenant shall receive a refund proportionate to the amounts previously paid by Subtenant for the same. Tenant shall, upon request by Subtenant, furnish Subtenant with copies of all statements received from Landlord of actual or estimated Additional Rent or other sums charged under the Master Lease. |
![]() |
Colliers International WA, LLC 11225 SE 6th St, Suite 240 Bellevue, WA 98004 Phone: 425-453-4545 Fax: 425-453-4540 |
© Commercial Brokers Association ALL RIGHTS RESERVED
Form: SUB_LS Sublease Agreement Rev. 9/2020 Page 5 of 20 |
|
SUBLEASE AGREEMENT
Notwithstanding anything in this Sublease to the contrary, the only services or utilities to which Subtenant is entitled under this Sublease are those to which Tenant is entitled under the Master Lease.
| 8. | ALTERATIONS. Subtenant may make alterations, additions or improvements to the Subleased Premises(the “Alterations”), only with the prior written consent of Tenant and, to the extent required by the Master Lease, Landlord. The term “Alterations” shall not include: (i) any of Subtenant’s Work approved by Tenant pursuant to Exhibit 4, and (ii)the installation of shelves, movable partitions, or Subtenant’s equipment and trade fixtures, which may be installed and removed without damaging existing improvements or the structural integrity of the Subleased Premises, Master Premises, Building, or Property, and Tenant’s consent shall not be required for Subtenant’s installation of those items except to the extent Tenant must obtain the consent of Landlord under the Master Lease for such installations. Subtenant shall perform all work within the Subleased Premises at Subtenant’s expense in compliance with all applicable laws and shall complete all Alterations in accordance with plans and specifications approved by Tenant, using contractors approved by Tenant, and in a manner so as to not unreasonably interfere with other tenants. Subtenant shall pay when due, all claims for labor or materials furnished to or for Subtenant at or for use in the Subleased Premises, which claims are or may be secured by any mechanics’ or materialmens’ liens against the Subleased Premises or Property or any interest therein. Except as otherwise provided in the Work Letter attached as Exhibit 4 with respect to Subtenant’s Work, Subtenant shall remove all Alterations at the end of the Sublease term unless Tenant conditioned its consent upon Subtenant leaving a specified Alteration at the Subleased Premises, in which case Subtenant shall not remove such Alteration and it shall become Tenant’s property. Subtenant shall immediately repair any damage to the Subleased Premises or adjacent portions of the Master Premises, Building and Property caused by installation and/or removal of improvements performed as part of Subtenant’s Work and/or Alterations. |
| 9. | REPAIRS AND MAINTENANCE; SURRENDER. Subtenant shall, at its sole cost and expense, maintain the Subleased Premises in good condition and promptly make all repairs and replacements, whether structural or non-structural, necessary to keep the Subleased Premises safe and in good condition, including all utilities and other systems serving the Subleased Premises. Subtenant shall not damage any demising wall or disturb the structural integrity of the Subleased Premises and shall promptly repair any damage or injury done to any such demising walls or structural elements caused by Subtenant or its employees, officers, agents, servants, contractors, customers, clients, visitors, guests, or other licensees or invitees. If Subtenant fails to maintain or repair the Subleased Premises, Tenant may enter the Subleased Premises and perform such repair or maintenance on behalf of Subtenant. In such case, Subtenant shall be obligated to pay to Tenant immediately upon receipt of demand for payment, as Additional Rent, all costs incurred by Tenant in performing such repair or maintenance on behalf of Subtenant. Subtenant shall be obligated to repair or maintain only those portions of the Subleased Premises as required of Tenant under the Master Lease. Tenant shall not be required to perform any maintenance, repairs, or improvements that are the obligation of Landlord under the Master Lease (provided that Tenant shall exercise diligent, commercially reasonable efforts to cause Landlord to perform its obligations under the Master Lease for the benefit of the Subtenant) or to make any changes to the Subleased Premises because of the enactment of any law, ordinance, regulation, order or code during the Term. Notwithstanding anything in this Section to the contrary, Subtenant shall not be responsible for any repairs to the Subleased Premises made necessary by the acts of Tenant, Landlord, or their respective employees, officers, agents, servants, contractors, customers, clients, visitors, guests, or other licensees or invitees. |
Upon expiration or earlier termination of the Term, Subtenant shall promptly and peacefully surrender the Subleased Premises to Tenant, together with all keys, in as good condition as when received by Subtenant or as thereafter improved (but subject to any obligations to remove any Subtenant’s Work and Alterations and/or to restore the same as provided elsewhere in this Sublease), reasonable wear and tear and insured casualty excepted.
![]() |
Colliers International WA, LLC 11225 SE 6th St, Suite 240 Bellevue, WA 98004 Phone: 425-453-4545 Fax: 425-453-4540 |
© Commercial Brokers Association ALL RIGHTS RESERVED
Form: SUB_LS Sublease Agreement Rev. 9/2020 Page 6 of 20 |
|
SUBLEASE AGREEMENT
| 0. | ACCESS AND RIGHT OF ENTRY. After reasonable notice from Tenant (except in cases of emergency, where no notice is required), Subtenant shall permit Tenant and/or Landlord and their respective agents, employees and contractors to enter the Subleased Premises at reasonable times to make repairs, alterations, improvements or inspections. This Section shall not impose any repair or other obligation upon Tenant or Landlord not expressly stated elsewhere in this Sublease. After reasonable notice to Subtenant, each of Tenant and Landlord, as the case may be, shall have the right to enter the Subleased Premises for the purpose of (a) showing the Subleased Premises to prospective purchasers or lenders at any time, and to prospective tenants within 180 days prior to the expiration or sooner termination of the Term; and (b) posting “for lease” signs within 180 days prior to the expiration or sooner termination of the Term. |
| 1. | DESTRUCTION OR CONDEMNATION. |
| a. | Damage and Repair. If either Landlord or Tenant terminates the Master Lease as a result of condemnation of or casualty to the Subleased Premises, Master Premises, or Building or Property in accordance with the Master Lease, this Sublease shall terminate on the same date and in accordance therewith. If the Subleased Premises or the portion of the Building or Property reasonably necessary for Subtenant’s occupancy are damaged, destroyed or rendered untenantable, by fire or other casualty, Tenant may, at its option: (a) terminate this Sublease, or (b) restore (or cause Subtenant to restore) the Subleased Premises and the portion of the Building and Property reasonably necessary for Subtenant’s occupancy to the same or substantially similar condition that existed before the casualty event. Provided, however, if such casualty event occurs during the last six (6) months of the Term, then either Subtenant or Tenant may elect to terminate this Sublease. If, within 60 days after Tenant’s receipt of written notice from Subtenant that Subtenant deems the Subleased Premises or the portion of the Property reasonably necessary for Subtenant’s occupancy untenantable, Tenant fails to notify Subtenant of its election to restore those areas, or if Tenant is unable to restore those areas which Tenant is expressly required hereunder to restore within six (6) months of the date of the casualty event, then Subtenant may elect to terminate this Sublease by written notice given to Tenant at any time prior to the date on which Tenant substantially completes restoration of those areas which it is required hereunder to restore. |
If Tenant restores the Subleased Premises or the Property as provided under this Section, Tenant shall proceed with reasonable diligence to complete the work, and Base Rent shall be abated in the same proportion as the untenantable portion of the Subleased Premises bears to the whole Subleased Premises, provided that there shall be a Base Rent abatement only if the damage or destruction of the Subleased Premises or the Property did not result from, or was not contributed to directly or indirectly by, the act, fault or neglect of Subtenant or Subtenant’s employees, officers, agents, servants, contractors, customers, clients, visitors, guests, or other licensees or invitees. No damages, compensation or claim shall be payable by Tenant for Subtenant’s inconvenience, loss of business or annoyance directly, incidentally or consequentially arising from any repair or restoration of any portion of the Subleased Premises, Master Premises, Building, or Property. Tenant shall have no obligation to carry insurance of any kind for the protection of Subtenant or any Alterations or improvements paid for or installed by or on behalf of Subtenant; any Tenant’s Work or Subtenant’s Work identified in Exhibit 4 (regardless of who may have completed them); Subtenant’s furniture; or on any fixtures, equipment, improvements or appurtenances of Subtenant under this Sublease; and Tenant shall not be obligated to repair any damage thereto or replace the same unless the damage is caused by Tenant’s negligence.
| b. | Condemnation. If either Landlord or Tenant terminates the Master Lease based on any provision in the Master Lease relating to eminent domain or conveyance under threat of condemnation, this Sublease shall terminate on the same date and in accordance therewith. If the Subleased Premises, the portion of the Building or Property reasonably necessary for Subtenant’s occupancy, or 50% or more of the total rentable area of the Property are made untenantable by eminent domain, or conveyed under a threat of condemnation, this Sublease shall terminate at the option of each of Tenant and Subtenant as of the earlier of the date title vests in the condemning authority or the condemning authority first has possession of the portion of the Property taken by the condemning authority. All Rent and other payments required under this Sublease shall be paid to that date. |
![]() |
Colliers International WA, LLC 11225 SE 6th St, Suite 240 Bellevue, WA 98004 Phone: 425-453-4545 Fax: 425-453-4540 |
© Commercial Brokers Association ALL RIGHTS RESERVED
Form: SUB_LS Sublease Agreement Rev. 9/2020 Page 7 of 20 |
|
SUBLEASE AGREEMENT
If the condemning authority takes a portion of the Subleased Premises or the portion of the Property necessary for Subtenant’s occupancy that does not render them untenantable, then this Sublease shall continue in full force and effect and the Base Rent shall be equitably reduced based on the proportion by which the floor area of the Subleased Premises is reduced. The reduction in Base Rent shall be effective on the earlier of the date the condemning authority first has possession of such portion or title vests in the condemning authority. The Subleased Premises or the portion of the property reasonably necessary for Subtenant’s occupancy shall not be deemed untenantable if 25% or less of each of those areas is condemned. As between Tenant and Subtenant, Tenant shall be entitled to the entire award from the condemning authority attributable to the value of the Master Premises, Subleased Premises, or the Property or Building, and Subtenant shall make no claim for the value of its subleasehold estate or the Subtenant’s Work or any Alterations. Subtenant shall be permitted to make a separate claim against the condemning authority for moving expenses or damages resulting from interruption in its business if this Sublease is terminated under this Section, provided that in no event shall Subtenant’s claim reduce Landlord’s or Tenant’s awards.
| 12. | INSURANCE. Subtenant shall procure and maintain, at its sole cost and expense, such liability insurance as is required to be carried by Tenant under the Master Lease, including, without limitation, obtaining additional insured endorsement(s) naming Tenant and Landlord as additional insureds, in the manner required therein, and property insurance as is required to be carried by Tenant under the Master Lease to the extent property insurance pertains to the Subleased Premises. If the Master Lease requires Tenant to insure leasehold improvements or Alterations, then Subtenant shall insure the leasehold improvements which are located in the Subleased Premises, as well as the Tenant’s Work and Subtenant’s Work, and any Alterations in the Subleased Premises performed by or on behalf of Subtenant. Subtenant shall furnish to Tenant certificates of Subtenant’s insurance policies and copies of any endorsements required hereunder not later than 10 days prior to Subtenant’s taking possession of the Subleased Premises. Tenant shall carry insurance as required by the Master Lease and shall not be obligated to carry property or liability insurance to the extent such insurance is an obligation of Landlord under the Master Lease. |
Tenant and Subtenant hereby release each other and their respective employees, officers, agents, servants, contractors, customers, clients, visitors, guests, or other licensees or invitees, from responsibility for and waive their respective claims for recovery of any loss or damage arising from any cause covered by insurance required to be carried by each of them. Each party shall provide notice to the insurance carrier or carriers of this mutual waiver of subrogation, and shall cause its respective insurance carriers to waive all rights of subrogation against the other. This waiver shall not apply to the extent of the deductible amounts to any such policies or to the extent of liability exceeding the limits of such policies. Tenant agrees to use reasonable efforts to obtain from Landlord for the benefit of Subtenant the same waiver of claims for any loss or damage arising from any cause covered by insurance required to be carried by Landlord under the Master Lease and, if and to the extent of such waiver received from Landlord, Subtenant agrees to grant the same waiver to Landlord.
| 13. | ASSIGNMENT AND SUBLETTING. Subtenant shall not assign, sublet, mortgage, encumber or otherwise transfer any interest in this Sublease or any part of the Subleased Premises (collectively referred to as a “Transfer”), without first obtaining the written consent of Tenant, which shall not be unreasonably withheld or delayed. Tenant may condition its consent on (a) obtaining any required consent from Landlord; (b) Subtenant satisfying any conditions to the Transfer imposed by Landlord and/or required to be satisfied by Tenant under the Master Lease; and (c) such other reasonable conditions that Tenant may impose. No Transfer shall relieve Subtenant of any liability under this Sublease notwithstanding Tenant’s consent to such Transfer. Consent to any Transfer shall not operate as a waiver of the necessity for Tenant’s consent to any subsequent Transfer. In connection with each request for consent to a Transfer, Subtenant shall pay the reasonable cost of processing same, including attorneys’ fees and any cost charged by Landlord for granting its consent under the Master Lease, upon demand of Tenant. |
Any transfer of this Sublease by merger, consolidation, redemption or liquidation of Subtenant, or any change in the ownership of, or power to vote, which singularly or collectively represents a majority of the beneficial interest in Subtenant, shall constitute a Transfer.
![]() |
Colliers International WA, LLC 11225 SE 6th St, Suite 240 Bellevue, WA 98004 Phone: 425-453-4545 Fax: 425-453-4540 |
© Commercial Brokers Association ALL RIGHTS RESERVED
Form: SUB_LS Sublease Agreement Rev. 9/2020 Page 8 of 20 |
|
SUBLEASE AGREEMENT
As a condition to the Landlord’s and Tenant’s approval, if given, any potential assignee or sublessee otherwise approved shall assume all obligations of Subtenant under this Sublease and shall be jointly and severally liable with Subtenant and any guarantor for the payment of Rent and other charges due hereunder and performance of all obligations of Subtenant under this Sublease. In connection with any Transfer, Subtenant shall provide Landlord and Tenant with copies of all assignments, subleases and assumption agreements and related documents.
| 14. | MORTGAGE SUBORDINATION AND ATTORNMENT. This Sublease shall automatically be subordinate to any mortgage or deed of trust created by Landlord to the extent the Master Lease is subordinate to the same mortgage or deed of trust, and Subtenant shall attorn upon the same terms and conditions as the Tenant in the Master Lease, provided Subtenant shall enjoy the terms and conditions relating to such subordination and attornment to the same extent as Tenant under the terms of the Master Lease. |
| 15. | HOLDOVER. If Subtenant shall, without the written consent of Tenant, remain in possession of the Subleased Premises and shall fail to return the Subleased Premises to Tenant after the expiration or termination of the Sublease, the tenancy shall be a holdover tenancy at sufferance, which may be terminated in accordance with Washington law; provided that, upon expiration of the Master Lease, such holdover tenancy by Subtenant shall automatically be deemed a tenancy at sufferance, terminable immediately. Unless Tenant agrees in writing to a different rental rate Subtenant agrees to pay to Tenant 150% of the rate of Base Rent last payable under this Sublease or the holdover rental rate provided in the Master Lease, whichever is greater, during any holdover tenancy, in addition to all Additional Rent and other sums due under this Sublease. All other terms of the Sublease shall remain in effect. Nothing herein shall be deemed Tenant’s consent to holdover by Subtenant, or be deemed to permit Subtenant to remain in possession of the Subleased Premises on and after expiration of the Master Lease. |
| 16. | NOTICES. All notices under this Sublease shall be in writing and effective (i) when delivered in person or via overnight courier to the other party, or (ii) three (3) days after being sent by registered or certified mail to the other party at the addresses set forth in Section 1. The addresses for notices and payment of Rent set forth in Section 1 may be modified by either party only by written notice delivered in conformance with this Section. |
| 17. | ESTOPPEL CERTIFICATES. Upon the written request of Tenant, Subtenant shall execute and deliver to Tenant and/or Landlord or their designee a written estoppel certificate on the same terms and conditions as required of Tenant under the Master Lease. |
| 18. | GENERAL. |
| a. | Heirs and Assigns. This Sublease shall apply to and be binding upon Tenant and Subtenant and their respective heirs, executors, administrators, successors and assigns. |
| b. | Brokers’ Fees. Subtenant represents and warrants to Tenant that except for Subtenant’s Broker, if any, described and disclosed in Section 20 of this Sublease, it has not engaged any firm, finder or other person who would be entitled to any commission or fees for the negotiation, execution or delivery of this Sublease and shall indemnify and hold harmless Tenant against any loss, cost, liability or expense incurred by Tenant as a result of any claim asserted by any such firm, finder or other person on the basis of any arrangements or agreements made or alleged to have been made by or on behalf of Subtenant. Tenant represents and warrants to Subtenant that except for Tenant’s Broker, if any, described and disclosed in Section 20, it has not engaged any firm, finder or other person who would be entitled to any commission or fees for the negotiation, execution or delivery of this Sublease and shall indemnify and hold harmless Subtenant against any loss, cost, liability or expense incurred by Subtenant as a result of any claim asserted by any such firm, finder or other person on the basis of any arrangements or agreements made or alleged to have been made by or on behalf of Tenant. |
![]() |
Colliers International WA, LLC 11225 SE 6th St, Suite 240 Bellevue, WA 98004 Phone: 425-453-4545 Fax: 425-453-4540 |
© Commercial Brokers Association ALL RIGHTS RESERVED
Form: SUB_LS Sublease Agreement Rev. 9/2020 Page 9 of 20 |
|
SUBLEASE AGREEMENT
| c. | Entire Agreement. This Sublease, which incorporates portions of the Master Lease, contains all of the covenants and agreements between Tenant and Subtenant relating to the Subleased Premises. No prior or contemporaneous agreements or understandings pertaining to the Sublease shall be valid or of any force or effect and the covenants and agreements of this Sublease shall not be altered, modified, or amended to except in writing signed by Tenant and Subtenant. | |
| d. | Severability. Any provision of this Sublease which shall prove to be invalid, void or illegal shall in no way affect, impair or invalidate any other provision of this Sublease. |
| e. | Governing Law. This Sublease shall be governed by and construed in accordance with the laws of the State of Washington. |
| f. | Memorandum of Sublease. Neither this Sublease nor any memorandum or “short form” thereof shall be recorded without Tenant’s prior consent. |
| g. | Submission of Sublease Form Not an Offer. One party’s submission of this Sublease to the other for review shall not constitute an offer to sublease the Subleased Premises. This Sublease shall not become effective and binding upon Tenant and Subtenant until it has been fully executed by both Tenant and Subtenant, and consented to by Landlord (if required by the Master Lease). |
| h. | Authority of Parties. Each party to this Sublease represents and warrants to the other that the person executing this Sublease on behalf of such party has the authority to enter into this Sublease on behalf of this Sublease, that the execution and delivery of this Sublease has been duly authorized, and that upon such execution and delivery this Sublease shall be binding upon and enforceable against such party upon execution and delivery. |
| 19. | EXHIBITS AND RIDERS. The following exhibits and riders are made a part of this Sublease: |
Exhibit 1: Legal Description of the Master Premises or Property
Exhibit 2: Master Lease
Exhibit 3: Outline of Subleased Premises
Exhibit 4: Work Letter
Other: Sublease Addendum
| 20. | AGENCY DISCLOSURE. At the signing of this Sublease, |
Tenant is represented by Talor Okada of Colliers International WA, LLC (insert name of Broker and Firm as licensed) (the “Tenant’s Broker”); and Subtenant is represented by Brian Biege & Jacob Hamlin of CBRE,Inc. (insert name of Broker and Firm as licensed) (the “Subtenant’s Broker”).
This Agency Disclosure creates an agency relationship between Subtenant, Subtenant’s Broker (if any such person is disclosed), and any managing brokers who supervise Subtenant’s Broker’s performance (collectively the “Supervising Brokers”). In addition, this Agency Disclosure creates an agency relationship between Tenant, Tenant’s Broker (if any such person is disclosed), and any managing brokers who supervise Tenant’s Broker’s performance (also collectively the “Supervising Brokers”). If Tenant’s Broker and Subtenant’s Broker are different real estate licensees affiliated with the same Firm, then both Tenant and Subtenant confirm their consent to that Firm and both Tenant’s and Subtenant’s Supervising Brokers acting as dual agents. If Tenant’s Broker and Subtenant’s Broker are the same real estate licensee who represents both parties, then both Subtenant and Tenant acknowledge that the Broker, his or her Supervising Brokers, and his or her Firm are acting as dual agents and hereby consent to such dual agency. If Tenant’s Broker, Subtenant’s Broker, their Supervising Brokers, or their Firm are dual agents, Subtenant and Tenant consent to Tenant’s Broker, Subtenant’s Broker, and their Firm being compensated based on a percentage of the rent or as otherwise disclosed on an attached addendum. Neither Tenant’s Broker, Subtenant’s Broker nor either of their Firms are receiving compensation from more than one party to this transaction unless otherwise disclosed on an attached addendum, in which case Subtenant and Tenant consent to such compensation.
![]() |
Colliers International WA, LLC 11225 SE 6th St, Suite 240 Bellevue, WA 98004 Phone: 425-453-4545 Fax: 425-453-4540 |
© Commercial Brokers Association ALL RIGHTS RESERVED
Form: SUB_LS Sublease Agreement Rev. 9/2020 Page 10 of 20 |
|
SUBLEASE AGREEMENT
Subtenant and Tenant confirm receipt of the pamphlet entitled “The Law of Real Estate Agency.”
| 21. | CONSENT BY LANDLORD. This Sublease shall be of no force or effect unless consented to by Landlord within 10 days of execution, if such consent is required under the Master Lease. Tenant and Subtenant agree for the benefit of Landlord that this Sublease and Landlord’s consent shall not (a) create privity of contract between Landlord and Subtenant; (b) be deemed to have amended the Master Lease in any regard (unless Landlord shall have expressly agreed in writing to such amendment); or (c) be construed as a consent by Landlord to any future assignment or subletting. Landlord’s consent shall, however, be deemed evidence of Landlord’s agreement that Subtenant may use the Subleased Premises for the purpose set forth in Section 1(g) and that Subtenant shall be entitled to the waiver of claims and of the right of subrogation as provided in Section 12, Insurance, above. |
| 22. | COMMISSION AGREEMENT. If Tenant has not entered into a listing agreement (or other compensation agreement with Tenant’s Firm), Tenant agrees to pay a commission to Tenant’s Firm (as identified in the Agency Disclosure Section above) as follows: |
| ☐ | $ |
| ☐ | % of the gross rent payable pursuant to this Sublease |
| ☐ | $ per rentable square foot of the Subleased Premises |
| ☒ | Other Per the Listing Agreement Between Tenant and Tenant’s Broker |
Tenant’s Broker ☐ shall ☒ shall not (shall not if not filled in) be entitled to a commission upon the extension by Subtenant of the Term pursuant to any right reserved to Subtenant under the Sublease calculated ☒ as provided above or ☐ as follows (if no box is checked, as provided above). Tenant’s Broker ☐ shall ☒ shall not (shall not if not filled in) be entitled to a commission upon any expansion of the Subleased Premises pursuant to any right reserved to Subtenant under the Sublease, calculated ☒ as provided above or ☐ as follows______ (if no box is checked, as provided above).
With respect to any commission earned upon execution of this Sublease or pursuant to any expansion of the Subleased Premises, Tenant shall pay one-half upon execution of the Sublease and one-half upon occupancy of the Subleased Premises by Subtenant. With respect to any commission earned upon extension of the Term of this Sublease, Tenant shall pay one-half upon execution of any amendment/addenda to the Sublease extending the Term and one-half upon the commencement date of such extended term. Tenant’s Broker shall pay to Subtenant’s Broker (as identified in the Agency Disclosure section above), the amount stated in a separate agreement between them or, if there is no agreement, $____or____% (complete only one) of any commission paid to Tenant’s Broker, within five (5) days after receipt by Tenant’s Broker.
If any other lease or sale is entered into between Tenant and Subtenant pursuant to a right reserved to Subtenant under the Sublease, Tenant ☐ shall ☐ shall not (shall not if not filled in) pay an additional commission according to any commission agreement or, in the absence of one, according to Tenant’s Broker’s commission schedule in effect as of the execution of this Sublease. Tenant’s successor shall be obligated to pay any unpaid commissions upon any transfer of this Sublease and any such transfer shall not release the transferor from liability to pay such commissions.
| 23. | BROKER PROVISIONS. |
TENANT’S BROKER AND SUBTENANT’S BROKER HAVE MADE NO REPRESENTATIONS OR WARRANTIES CONCERNING THE SUBLEASED PREMISES; THE MEANING OF THE TERMS AND CONDITIONS OF THIS SUBLEASE; LANDLORD’S, TENANT’S OR SUBTENANT’S FINANCIAL STANDING; ZONING; COMPLIANCE OF THE SUBLEASED PREMISES WITH APPLICABLE LAWS; SERVICE OR CAPACITY OF UTILITIES; OPERATING COSTS; OR HAZARDOUS MATERIALS. LANDLORD, TENANT AND SUBTENANT ARE EACH ADVISED TO SEEK INDEPENDENT LEGAL ADVICE ON THESE AND OTHER MATTERS ARISING UNDER THIS SUBLEASE.
![]() |
Colliers International WA, LLC 11225 SE 6th St, Suite 240 Bellevue, WA 98004 Phone: 425-453-4545 Fax: 425-453-4540 |
© Commercial Brokers Association ALL RIGHTS RESERVED
Form: SUB_LS Sublease Agreement Rev. 9/2020 Page 11 of 20 |
|
SUBLEASE AGREEMENT
Helion Energy, Inc. |
JDL Digital Systems, Inc. | |
| TENANT: | SUBTENANT: | |
| Paul Gentsch | Victor Huang | |
| /s/ Paul Gentsch | /s/ Victor Huang | |
By: |
By: | |
| Chief of Staff | CEO | |
| Jul 28, 2023 Its: | 7/26/2023 Its: |
24. LANDLORD’S CONSENT.
Landlord consents to the foregoing Sublease without waiver of any restriction in the Master Lease concerning further assignment, subletting or transfer, nor shall its consent to the Sublease constitute a consent to any amendment or modification of the Sublease, without Landlord’s prior written consent. The execution of this Sublease by Subtenant and Tenant shall indicate the joint and several confirmation by Tenant and Subtenant of the foregoing terms and conditions and of Tenant’s and Subtenant’s agreement to be bound thereby, and shall constitute Subtenant’s acknowledgment it has received a copy of the Master Lease from Tenant.
| LANDLORD: | |
| LANDLORD: | |
| By: | |
| Its: |
![]() |
Colliers International WA, LLC 11225 SE 6th St, Suite 240 Bellevue, WA 98004 Phone: 425-453-4545 Fax: 425-453-4540 |
© Commercial Brokers Association ALL RIGHTS RESERVED
Form: SUB_LS Sublease Agreement Rev. 9/2020 Page 12 of 20 |
|
SUBLEASE AGREEMENT
STATE OF
WASHINGTON
COUNTY OF ___________________________
This record was acknowledged before me on_________________ , 20 ____, by ___________________ as___________of_______________________.
| Notary Public for the State of Washington |
My commission expires:____________________________
STATE OF
WASHINGTON
COUNTY OF ___________________________
This record was acknowledged before me on_________________ , 20 ____, by ___________________ as ___________of_______________________ .
| Notary Public for the State of Washington |
My commission expires:____________________________
![]() |
Colliers International WA, LLC 11225 SE 6th St, Suite 240 Bellevue, WA 98004 Phone: 425-453-4545 Fax: 425-453-4540 |
© Commercial Brokers Association ALL RIGHTS RESERVED
Form: SUB_LS Sublease Agreement Rev. 9/2020 Page 13 of 20 |
|
SUBLEASE AGREEMENT
STATE OF
WASHINGTON
COUNTY OF ___________________________
This record was acknowledged before me on_________________ , 20 ____, by ___________________as ___________of_______________________ .
| Notary Public for the State of Washington |
My commission expires:________________________________
STATE OF
WASHINGTON
COUNTY OF ___________________________
This record was acknowledged before me on_________________ , 20 ____, by ___________________as ___________of_______________________ .
| Notary Public for the State of Washington |
My commission expires:________________________________
![]() |
Colliers International WA, LLC 11225 SE 6th St, Suite 240 Bellevue, WA 98004 Phone: 425-453-4545 Fax: 425-453-4540 |
© Commercial Brokers Association ALL RIGHTS RESERVED
Form: SUB_LS Sublease Agreement Rev. 9/2020 Page 14 of 20 |
|
SUBLEASE AGREEMENT
EXHIBIT 1
[Legal Description of Master Premises or Property]
________
Lot 4 of City of Redmond short plat No. SS-85-11R, recorded under Recording No. 8912190943, said short plat being a revision of short plat recorded under Recording No. 8512260700, said short plat being a subdivision of the east half of the southwest quarter of Section 2, township 25 north, range 5 east, W.M., in King County, Washington.
Except those portions of said lots conveyed to the City of Redmond by deed recorded under Recording No. 8810070396 and 8907120649.
![]() |
Colliers International WA, LLC 11225 SE 6th St, Suite 240 Bellevue, WA 98004 Phone: 425-453-4545 Fax: 425-453-4540 |
© Commercial Brokers Association ALL RIGHTS RESERVED
Form: SUB_LS Sublease Agreement Rev. 9/2020 Page 15 of 20 |
|
SUBLEASE AGREEMENT
EXHIBIT
2
[Master Lease]
________
SEE ATTACHED
![]() |
Colliers International WA, LLC 11225 SE 6th St, Suite 240 Bellevue, WA 98004 Phone: 425-453-4545 Fax: 425-453-4540 |
© Commercial Brokers Association ALL RIGHTS RESERVED
Form: SUB_LS Sublease Agreement Rev. 9/2020 Page 16 of 20 |
|
SUBLEASE AGREEMENT
EXHIBIT 3
[Outline of the Subleased Premises]
________
![]() |
Colliers International WA, LLC 11225 SE 6th St, Suite 240 Bellevue, WA 98004 Phone: 425-453-4545 Fax: 425-453-4540 |
© Commercial Brokers Association ALL RIGHTS RESERVED
Form: SUB_LS Sublease Agreement Rev. 9/2020 Page 17 of 20 |
|
SUBLEASE AGREEMENT
EXHIBIT
4
[Work Letter]
CHECK IF APPLICABLE:
1. ☒ Improvements to be Completed by Tenant
A. Performance of Improvements. Subject to the terms and conditions of this Sublease, the Master Lease, and any Improvement Allowance provided herein, Tenant’s obligations to improve the Subleased Premises shall be limited to the work (“Tenant’s Work”) described below. All other work shall be performed by Subtenant at its sole expense or, if performed by Tenant, shall be promptly reimbursed by Subtenant. Tenant’s Work shall be deemed to be “substantially complete” on the date that Tenant notifies Subtenant that Tenant’s Work is complete, except for punch list items that do not impair the use or operations thereof, would not prevent Subtenant from occupancy and/or performing Subtenant’s Work, and except for that portion of Tenant’s Work, if any, which cannot be feasibly performed before Subtenant completes Subtenant’s Work, fixturing, or decorating.
The work to be done by Tenant in satisfying its obligation to complete Tenant’s Work under the Sublease shall be limited to the following (check one):
☒ As identified below (check and describe all that apply);
☐ FLOOR: _______
☐ FLOOR: _______
☐ CEILING: _______
☐ LIGHTING: _______
☐ WASHROOM(S): _______
☐ ELECTRICAL: _______
☐ HVAC: _______
☒ OTHER: 1.Tenant shall demise the Subleased Premises, including but not limited to wall, mechanical, electrical, and plumbing infrastructure (Wall, mechanical, electrical, and plumbing infrastructure shall be demised as deemed reasonably practical by Tenant) from the balance of the Master Premises at Tenant’s sole cost and expense.
2. Tenant shall reinstall doors and frames in the first-floor office portion of the Subleased Premises.
3. Tenant shall deliver the Subleased Premises in “broom clean” condition and ready for occupancy as reasonably determined by Tenant.
☐ As mutually agreed upon between Tenant and Subtenant as follows:
a. Within______ days (ten (10) days if not filled in) after mutual acceptance of the Sublease, Subtenant shall prepare and submit for Tenant’s review a preliminary sketch of the improvements to be performed by Tenant (“Preliminary Tenant Plan”). Tenant and Subtenant shall cooperate in good faith to adopt a mutually acceptable Preliminary Tenant Plan. Subtenant acknowledges that the timelines set forth in this Section 1 with respect to Tenant’s promulgation and approval of the Tenant Improvement Plans (as such term is defined herein) may be subject to reasonable extensions to the extent additional time is necessary to obtain any consent of Landlord that may be required under the Master Lease.
b. Upon Tenant’s approval of the Preliminary Tenant Plan, Tenant shall promptly prepare (or cause to be prepared) construction documents (i.e., those plans used for submittal to the appropriate governmental bodies for all necessary permits and approvals for Tenant’s Work, if any) for Subtenant’s review and approval, which approval shall not be unreasonably withheld, conditioned or delayed. The construction documents, once approved, shall then constitute “Tenant’s Improvement Plans.”
![]() |
Colliers International WA, LLC 11225 SE 6th St, Suite 240 Bellevue, WA 98004 Phone: 425-453-4545 Fax: 425-453-4540 |
© Commercial Brokers Association ALL RIGHTS RESERVED
Form: SUB_LS Sublease Agreement Rev. 9/2020 Page 18 of 20 |
|
SUBLEASE AGREEMENT
c. Tenant shall submit the Tenant’s Improvement Plans to the appropriate governmental body for plan checking and issuance of necessary permits and approvals, as applicable. Tenant and Subtenant shall cooperate and use commercially reasonable efforts to cause to be made any changes in the Tenant’s Improvement Plans necessary to obtain such permits and approvals; provided, however, any costs and expenses resulting from the foregoing changes to Tenant’s Work that exceed the Improvement Allowance shall be borne at Subtenant’s sole cost and expense.
B. Defects in Tenant’s Work. If Subtenant fails to notify Tenant of any defects in the Tenant’s Work within 30 days of delivery of possession of the Premises to Subtenant, Subtenant shall be deemed to have accepted the Subleased Premises in their then-existing condition. If Subtenant discovers any major defects in the Tenant’s Work during this 30-day period that would prevent Subtenant from using the Subleased Premises for the Permitted Use, Subtenant shall notify Tenant and the Sublease Commencement Date shall be delayed until after Tenant has notified Subtenant that Tenant has corrected the major defects and Subtenant has had five (5) days to inspect and approve the Subleased Premises. The Sublease Commencement Date shall not be delayed if Subtenant’s inspection reveals minor defects in the Tenant’s Work that will not prevent Subtenant from using the Subleased Premises for the Permitted Use. Subtenant shall prepare a punch list of all minor defects in Tenant’s Work and provide the punch list to Tenant, which Tenant shall promptly correct.
2. ☐ Improvements to be Completed by Subtenant
A. Performance of Improvements. Subject to the terms and conditions of the Sublease, the Master Lease, and any Improvement Allowance provided herein, Subtenant shall complete, at its sole cost and expense, the work identified in the Subtenant Improvement Plans (as such term is defined below) adopted by Tenant and Subtenant in accordance with the provisions below (“Subtenant’s Work”). Subtenant’s Work shall be performed lien free and in a workmanlike manner, without interference with other work, if any, being done in the Subleased Premises, Master Premises, or Property, including any of Tenant’s Work, and in compliance with all laws and reasonable rules promulgated from time to time by Tenant, its architect and contractors, Landlord or its property manager.
The work to be done by Subtenant in satisfying its obligation to complete Subtenant’s Work under the Sublease shall be limited to the following (check one):
☐ As identified below (check and describe all that apply);
☐ FLOOR: _______
☐ WALLS: _______
☐ CEILING: _______
☐ LIGHTING: _______
☐ WASHROOM(S): _______
☐ ELECTRICAL: _______
☐ HVAC: _______
☐ OTHER: _______
☐ As mutually agreed upon between Tenant and Subtenant as follows:
| a. | Within____days (ten (10) days if not filled in) after mutual acceptance of the Sublease, Subtenant shall prepare and submit for Tenant’s review a preliminary sketch of the Subtenant Improvements (“Preliminary Subtenant Plan”). Tenant and Subtenant shall cooperate in good faith to adopt a mutually acceptable Preliminary Subtenant Plan. Subtenant acknowledges that the timelines set forth in this Section 2 with respect to Tenant’s promulgation and approval of the Subtenant Improvement Plans (as such term is defined herein) may be subject to reasonable extensions to the extent additional time is necessary to obtain any consent of Landlord that may be required under the Master Lease. |
![]() |
Colliers International WA, LLC 11225 SE 6th St, Suite 240 Bellevue, WA 98004 Phone: 425-453-4545 Fax: 425-453-4540 |
© Commercial Brokers Association ALL RIGHTS RESERVED
Form: SUB_LS Sublease Agreement Rev. 9/2020 Page 19 of 20 |
|
SUBLEASE AGREEMENT
| b. | Upon approval of the Preliminary Subtenant Plan by Tenant, Subtenant shall promptly prepare construction documents (i.e., those plans used for submittal to the appropriate governmental bodies for all necessary permits and approvals for the Subtenant’s Work, if any) for Tenant’s review and approval. The construction documents, once approved, shall then constitute the “Subtenant Improvement Plans.” |
| c. | Upon approval by Tenant, Subtenant shall submit the Subtenant Improvements Plans to the appropriate governmental body for plan checking and issuance of necessary permits and approvals. Subtenant, with Tenant’s approval, shall cause to be made any changes in the Subtenant Improvements Plans necessary to obtain such permits and approvals. |
| d. | Tenant makes no warranty or representation of any type or nature with respect to the adequacy or sufficiency of the Subtenant Improvements Plans for any purpose. Tenant makes no warranty or representation of any type or nature with respect to the quality, suitability, or ability of contractor or the quality of the work or materials supplied or performed with respect to the Subtenant Improvements by contractor, the subcontractors, Subtenant’s agents, or any other person or entity. |
| B. | General Requirements. Subtenant shall submit to Tenant, prior to the commencement of the construction of Subtenant’s Work, the following information for Tenant’s review and approval (check all that apply): |
☐ The names, contact names, addresses, and license numbers of all general contractors and subcontractors Subtenant intends to use in the construction of Subtenant’s Work.
☐ A reasonably detailed schedule for Subtenant’s performance of Subtenant’s Work (including, without limitation, the date on which Subtenant’s Work will commence, the estimated date of completion of Subtenant’s Work, and the date on which Subtenant expects to open for business in the Premises).
☐ Evidence of insurance as required in the Sublease and Master Lease and any other insurance usual and customary for performance of Subtenant’s Work and requested by Tenant.
☐ Copies of all required governmental permits.
| C. | Contractor Qualifications. All contractors and subcontractors to perform Subtenant’s Work shall be licensed contractors, capable of performing quality workmanship and working in harmony with Tenant’s general contractor in the Building. Upon notice from Tenant, Subtenant shall stop using (or cause contractor or any subcontractor to stop using) any person or entity disturbing labor harmony with any work force or trade engaged in performing Subtenant’s Work or other work, labor, or services in or about the Building. All work shall be coordinated with any on-going construction work on the Building. Tenant shall have the right to disapprove, in Tenant’s reasonable discretion, any contractor or subcontractor which Subtenant desires to engage for Subtenant’s Work. |
3. Improvement Allowance
Provided there is no uncured Event of Default by Subtenant under the Sublease, upon completion of Tenant’s Work or Subtenant’s Work, as applicable, Tenant shall provide an allowance (“Improvement Allowance”) toward the costs and expenses associated with improvements to the Premises in accordance with the following (check one):
☐ $___per rentable square foot of the Premises. The Improvement Allowance shall be used only for (choose one): ☐ Tenant’s Work, or ☐ Subtenant’s Work, excepting_____. If costs associated with completing Subtenant’s Work exceed the Improvement Allowance, or if any costs of Subtenant’s Work are not to be paid out of the Improvement Allowance, then the excess or excluded amount shall be paid directly by Subtenant.
![]() |
Colliers International WA, LLC 11225 SE 6th St, Suite 240 Bellevue, WA 98004 Phone: 425-453-4545 Fax: 425-453-4540 |
© Commercial Brokers Association ALL RIGHTS RESERVED
Form: SUB_LS Sublease Agreement Rev. 9/2020 Page 20 of 20 |
|
SUBLEASE AGREEMENT
☐ None; Subtenant shall be obligated to pay all costs, expenses and fees associated with completing the Subtenant’s Work in accordance with the Subtenant Improvement Plans.
☐ None; Tenant shall be obligated to pay all costs, expenses and fees associated with completing the Tenant’s Work in accordance with the Tenant Improvement Plans, however, excepting any costs related to Subtenants’ furniture, cabling, fixtures and equipment, design services, and ____, and in no event in an amount exceeding $ _____.
4. ☐ Removal of Improvements/Surrender. The following scope of Subtenant’s Work (check one):
☐ shall become the property of Tenant
☐ shall be removed by Subtenant at its sole cost and expense
upon the expiration or earlier termination of the Sublease Term:___.
![]() |
Colliers International WA, LLC 11225 SE 6th St, Suite 240 Bellevue, WA 98004 Phone: 425-453-4545 Fax: 425-453-4540 |
© Commercial Brokers Association ALL RIGHTS RESERVED
Form: SUB-LA Sublease Addendum Rev. 4/2019 Page 1 of 1 |
|
ADDENDUM/AMENDMENT
TO
CBA SUBLEASE
CBA Text Disclaimer: Text deleted by licensee indicated by strike.
The following is part of the Sublease Agreement dated July 13, 2023,
Between JDL Digital Systems, Inc., a Washington corporation (“Subtenant”)
And Helion Energy, Inc., a Delaware corporation (“Tenant”)
regarding the lease of the Property known as: 8210 154th Ave NE 120 & 250, Redmond, WA 98052
IT IS AGREED BETWEEN THE TENANT AND SUBTENANT AS FOLLOWS: 1. Delivery Date: The date Tenant shall deliver the Subleased Premises to Subtenant shall be upon completion of Tenant’s Work and Landlord’s consent to the Sublease Agreement (the “Delivery Date”).
2. Early Possession: Subtenant may take possession of the Subleased Premises immediately following the Delivery Date, provided Subtenant has met all requirements of the Sublease Agreement, including but not limited to, payment of the Security Deposit and Prepaid Rent, and meeting all Insurance requirements under the Sublease Agreement.
3. The Sublease Commencement Date shall be the later of October 1, 2023 or thirty (30) days following the Delivery Date. Notwithstanding the foregoing, if Subtenant uses the Subleased Premises for any use or purpose other than installing furniture, fixtures, and equipment, then the Sublease Commencement Date shall automatically advance to the date that Subtenant used the Subleases Premises for any use or purpose other than installing furniture, fixtures, and equipment.
| AGENT (COMPANY): | Colliers International WA, LLC | By | /s/ Talor Okada |
ALL OTHER TERMS AND CONDITIONS of said Agreement remain unchanged
| INITIALS: | |||||||
| Tenant: | /s/ PG | Date | Jul 28, 2023 | Subtenant: | /s/ VH | Date | 7/26/2023 |
| Tenant: | Date | Subtenant: | Date |
Exhibit 2
LEASE
CALWEST INDUSTRIAL PROPERTIES, LLC,
a California limited liability company,
Landlord,
and
HELION ENERGY, INC.,
a Delaware corporation,
Tenant
Helion Energy, Inc.
TABLE OF CONTENTS
| Page | ||
| I . | USE AND RESTRICTIONS ON USE | 1 |
| 2. | TERM | 2 |
| 3. | RENT | 2 |
| 4. | RENT ADJUSTMENTS | 3 |
| 5. | SECURITY DEPOSIT | 6 |
| 6. | ALTERATIONS | 6 |
| 7. | REPAIR | 7 |
| 8. | LIENS | 8 |
| 9. | ASSIGNMENT AND SUBLETTING | 8 |
| 10. | INDEMNIFICATION | 10 |
| 11. | INSURANCE | 10 |
| 12. | WAIVER OF SUBROGATION | 11 |
| 13. | SERVICES AND UTILITIES | 11 |
| 14. | HOLDING OVER | 11 |
| 15. | SUBORDINATION | 12 |
| 16. | RULES AND REGULATIONS | 12 |
| 17. | REENTRY BY LANDLORD | 12 |
| 18. | DEFAULT | 12 |
| 19. | REMEDIES | 13 |
| 20. | TENANT’S BANKRUPTCY OR INSOLVENCY | 15 |
| 21. | QUIET ENJOYMENT | 16 |
| 22. | CASUALTY | 16 |
| 23. | EMINENT DOMAIN | 17 |
| 24. | SALE BY LANDLORD | 17 |
| 25. | ESTOPPEL CERTIFICATES | 18 |
| 26. | SURRENDER OF PREMISES | 18 |
| 27. | NOTICES | 18 |
| 28. | TAXES PAYABLE BY TENANT | 19 |
| 29. | RELOCATION OF TENANT [INTENTIONALLY OMITTED] | 19 |
| 30. | BUILDING DEMOLITION [INTENTIONALLY OMITTED] | 19 |
| 31. | DEFINED TERMS AND HEADINGS | 19 |
| 32. | TENANT’S AUTHORITY | 19 |
| 33. | FINANCIAL STATEMENTS AND CREDIT REPORTS | 20 |
| 34. | COMMISSIONS | 20 |
| 35. | TIME AND APPLICABLE LAW | 20 |
| 36. | SUCCESSORS AND ASSIGNS | 20 |
| 37. | ENTIRE AGREEMENT | 20 |
Hellion Energy, Inc.
i
TABLE OF CONTENTS
(continued)
| Page | ||
| 38. | EXAMINATION NOT OPTION | 20 |
| 39. | RECORDATION | 20 |
| 40. | SIGNAGE | 20 |
| 41. | BUILDING SIGNAGE | 20 |
| 42. | OPTION TO RENEW | 21 |
| 43. | ACCELERATION OPTION | 22 |
| 44. | HAZARDOUS MATERIALS | 23 |
| 45. | LIMITATION OF LANDLORD’S LIABILITY | 25 |
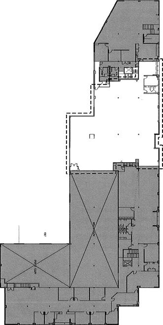
EXHIBIT A - FLOOR PLAN DEPICTING THE PREMISES
EXHIBIT A-1- SITE PLAN
EXHIBIT A-2 - LEGAL DESCRIPTION
EXHIBIT B - INITIAL ALTERATIONS
EXHIBIT C - COMMENCEMENT DATE MEMORANDUM
EXHIBIT D - RULES AND REGULATIONS
EXHIBIT E - TENANT SIGN CRITERIA
EXHIBIT F - HAZARDOUS MATERIALS QUESTIONNAIRE
EXHIBIT G - APPROVED HAZARDOUS MATERIALS
Helion Energy, Inc.
ii
MULTI-TENANT INDUSTRIAL NET LEASE
REFERENCE PAGES
| BUILDING: | Westpark, Building A 8210 154th Avenue NE Redmond, Washington 98052 |
| LANDLORD: | CALWEST INDUSTRIAL PROPERTIES, LLC. a California limited liability company |
| LANDLORD’S ADDRESS: | CalWest Industrial Properties, LLC
With a copy to:
CalWest Industrial Properties, LLC |
| WIRE INSTRUCTIONS AND/OR ADDRESS FOR RENT PAYMENT: |
CalWest Industrial Properties, LLC (Westpark) P.O. Box 740101 Los Angeles, CA 90074-0101 |
| LEASE REFERENCE DATE: | March 17, 2015 |
| TENANT: | HELION ENERGY, INC., a Delaware corporation |
| TENANT’S NOTICE ADDRESS: | |
| (a) As of beginning of Term: | The Premises |
| (b) Prior to beginning of Term (if different): | 8549 154th Avenue Redmond, Washington 98052 |
| PREMISES ADDRESS: | 8210 154th Avenue NE Redmond, Washington 98052 |
| PREMISES RENTABLE AREA: | Approximately 31,271 sq. ft., comprised of 5,385 sq. ft. of office space on the 1st floor, 10,657 sq. ft. of office space on the 2uct floor and 15,229 sq. ft. of warehouse space (for outline of Premises see Exhibit A) |
| USE: | General office, research, development, laboratory and warehouse purposes |
| COMMENCEMENT DATE: | June 1, 2015 |
| TERM OF LEASE: | Approximately sixty-two (62) months beginning on the Commencement Date and ending on the Termination Date. |
| TERMINATION DATE: | July 31, 2020 |
Helion Energy, Inc.
iii
ANNUAL RENT and MONTHLY INSTALLMENT OF
RENT (Article 3)
| Period | Rentable Square Footage |
Annual Rent Per Square Foot |
Annual Rent | Monthly Installment of Rent | |
| from | through | ||||
| 6/1/2015 | 5/31/2016 | 31,271 | $11.86 | $370,731.60 | $30,894.30 |
| 6/1/2016 | 5/31/2017 | 31,271 | $12.21 | $381,853.56 | $31,821.13 |
| 6/1/2017 | 5/31/2018 | 31,271 | $12.58 | $393,309.12 | $32,775.76 |
| 6/1/2018 | 5/31/2019 | 31,271 | $12.95 | $405,108.48 | $33,759.04 |
| 6/1/2019 | 5/31/2020 | 31,271 | $13.34 | $417,261.72 | $34,771.81 |
| 6/1/2020 | 7/31/2020 | 31,271 | $13.74 | $429,779.52 | $35,814.96 |
| * | Monthly Installment of Rent for the first two (2) full calendar months of the Term is subject to abatement as more particularly described in Section 3.3 below. |
| INITIAL ESTIMATED MONTHLY INSTALLMENT OF RENT ADJUSTMENTS (Article 4): | $10,006.72 |
| TENANT’S PROPORTIONATE SHARE: | 56.66% of the Building; 4.00% of the project in which the Building is located |
| SECURITY DEPOSIT: | $90,000.00 |
| ASSIGNMENT/SUBLETTING FEE: | $1,800.00 |
| REAL ESTATE BROKER: | Steve Balkman of NM Puget Sound Properties representing Tenant (“Tenant’s Broker”) and Todd Gauthier, Jason Bloom and Corentin Morel of Kidder Matthews, representing Landlord |
| TENANT’S NAICS CODE: | 541712 |
| AMORTIZATION RATE: | 10.00% |
The Reference Pages information is incorporated into and made a part of the Lease. In the event of any conflict between any Reference Pages information and the Lease, the Lease shall control. The Lease includes Exhibits A through if, all of which are made a part of the Lease.
[REMAINDER OF PAGE INTENTIONALLY LEFT BLANK]
Helion Energy, Inc.
iv
LEASE
By this Lease Landlord hereby leases to Tenant and Tenant hereby leases from Landlord the Premises in the Building as set forth and described on the Reference Pages (the “Premises”). This Lease is solely a lease of space in the Building and does not constitute a lease of any land. The Premises are depicted on the floor plan attached hereto as Exhibit A. and the Building is depicted on the site plan attached hereto as Exhibit A-1, and the real property upon which the Building is located is legally described on Exhibit A-2 attached hereto. The Reference Pages, including all terms defined thereon, are incorporated as part of this Lease.
1. USE AND RESTRICTIONS ON USE.
1.1 The Premises are to be used solely for the purposes set forth on the Reference Pages. Tenant shall not do or permit anything to be done in or about the Premises which will in any way obstruct or interfere with the rights of other tenants or occupants of the Building or injure, annoy, or disturb them, or allow the Premises to be used for any improper, immoral, unlawful, or objectionable purpose, or commit any waste. Tenant shall not do, permit or suffer in, on, or about the Premises the sale of any alcoholic liquor without the written consent of Landlord first obtained. Tenant shall comply with all federal, state and city laws, codes, ordinances, roles and regulations (collectively, “Regulations”) applicable to the use of the Premises and its occupancy and shall promptly comply with all governmental orders and directions for the correction, prevention and abatement of any violations in the Building or appurtenant land, caused or permitted by, or resulting from the specific use by, Tenant, or in or upon, or in connection with, the Premises, all at Tenant’s sole expense. Tenant shall not do or permit anything to be done on or about the Premises or bring or keep anything into the Premises which will in any way increase the rate of invalidate or prevent the procuring of any insurance protecting against loss or damage to the Building or any of its contents by fire or other casualty or against liability for damage to property or injury to persons in or about the Building or any part thereof.
1.2 Tenant shall not, and shall not direct, suffer or permit any of its agents, contractors, employees, licensees or invitees (collectively, the “Tenant Entities”) to at any time use, store, generate, treat, discharge, disburse, handle, manufacture, transport or dispose of (collectively, “Handle”) in or about the Premises or the Building any (collectively “Hazardous Materials”) flammables, explosives, radioactive materials, hazardous wastes or materials, toxic wastes or materials, or other similar substances, petroleum products or derivatives or any substance subject to regulation by or under any federal, state and local laws and ordinances relating to the protection of the environment or the keeping, use or disposition of environmentally hazardous materials, substances, or wastes, presently in effect or hereafter adopted, all amendments to any of them, and all rules and regulations issued pursuant to any of such laws or ordinances (collectively “Environmental Laws”), nor shall Tenant suffer or permit any Hazardous Materials to be used in any manner not fully in compliance with all Environmental Laws, in the Premises or the Building and appurtenant land or allow the environment to become contaminated with any Hazardous Materials. Notwithstanding the foregoing, Tenant may Handle products containing small quantities of Hazardous Materials (such as aerosol cans containing insecticides, toner for copiers, paints, paint remover and the like) to the extent customary and necessary for the use of the Premises for general office purposes; provided that Tenant shall always Handle any such Hazardous Materials in a safe and lawful manner and never allow such Hazardous Materials to contaminate the Premises, Building and appurtenant land or the environment. Tenant shall protect, defend, indemnify and hold each and all of the Landlord Entities (as defined in Article 31) harmless from and against any and all loss, claims, liability or costs (including court costs and attorney’s fees) incurred by reason of any actual or asserted failure of Tenant to fully comply with all applicable Environmental Laws, or the presence, handling, use or disposition in or from the Premises of any Hazardous Materials by Tenant or any Tenant Entity (even though permissible under all applicable Environmental Laws or the provisions of this Lease), or by reason of any actual or asserted failure of Tenant to keep, observe, or perform any provision of this Section 1.2 or Article 44 below. Prior to Tenant (and at least ten (10) days prior to any assignee or any subtenant of Tenant) taking possession of any part of the Premises, Tenant shall disclose to Landlord in writing the names and amounts of all Hazardous Materials, or any combination thereof, which Tenant desires to Handle on, in, under or about the Premises or Project during the Term by executing and delivering to Landlord a “Hazardous Materials Questionnaire”, in the form attached hereto as Exhibit F (as updated and modified by Landlord, from time to time). Landlord hereby approves the Hazardous Materials listed, and in the quantities set forth, on Exhibit G to this Lease, so long as Tenant strictly complies with the terms and conditions of this Lease respecting the Handling of such approved Hazardous Materials. Tenant’s disclosure obligations under this Section 1.2 shall include a requirement that, to the extent Tenant intends to increase the quantities or modify the types of Hazardous Materials listed on Exhibit G to this Lease in any material respect, Tenant shall, concurrently with Tenant’s order of such increased quantities and/or different types of Hazardous Materials, promptly deliver to Landlord a new updated Hazardous Materials Questionnaire, and Landlord shall, if applicable, disapprove Tenant’s use of the modified types and/or amounts of Hazardous Materials disclosed in Tenant’s new Hazardous Materials Questionnaire within ten (10) business days following Landlord’s receipt thereof.
Hellen Energy, inc.
1.3 Tenant and the Tenant Entities will be entitled to the non-exclusive use of the common areas of the Building as they exist from time to time during the Term, including the parking facilities, subject to Landlord’s rules and regulations regarding such use. However, in no event will Tenant or the Tenant Entities park more vehicles in the parking facilities than Tenant’s Proportionate Share of the total parking spaces available for common use. As of the date of this Lease, Tenant’s Proportionate Share of the total parking spaces is sixty-three (63) unreserved spaces. The foregoing shall not be deemed to provide Tenant with an exclusive right to any parking spaces or any guaranty of the availability of any particular parking spaces or any specific number of parking spaces; provided that Landlord shall not reduce the number of parking spaces provided hereunder to less than three (3) per 1,000 square feet of office space and one (1) per 1,000 square feet of warehouse space in the Project, except as may be required by Regulations.
2. TERM.
2.1 The Term of this Lease shall begin on the date (“Commencement Date”) which is the Commencement Date as shown on the Reference Pages, and shall terminate on the date as shown on the Reference Pages as the Termination Date (“Termination Date”), unless sooner terminated by the provisions of this Lease. Landlord shall tender possession of the Premises after this Lease has been fully executed by all parties. Tenant shall, at Landlord’s request, execute and deliver a memorandum agreement provided by Landlord in the form of Exhibit C attached hereto, setting forth the actual Commencement Date, Termination Date and, if necessary, a revised rent schedule. Should Tenant fail to do so within thirty (30) days after Landlord’s request, the information set forth in such memorandum provided by Landlord shall be conclusively presumed to be agreed and correct.
2.2 Tenant agrees that in the event of the inability of Landlord to deliver possession of the Premises on the Commencement Date set forth on the Reference Pages for any reason, Landlord shall not be liable for any damage resulting from such inability, but except to the extent such delay is the result of the acts or omissions of Tenant or any Tenant Entity, Tenant shall not be liable for any rent until the time when Landlord delivers possession of the Premises to Tenant. No such failure to give possession on the Commencement Date set forth on the Reference Pages shall affect the other obligations of Tenant under this Lease, except that the actual Commencement Date shall be postponed until the date that Landlord delivers possession of the Premises to Tenant unless such delay is caused by the acts or omissions of Tenant or any Tenant Entities. If any delay is the result of the acts or omissions of Tenant or any Tenant Entities, the Commencement Date and the payment of rent under this Lease shall be accelerated by the number of days of such delay. Notwithstanding anything to the contrary contained in this Lease, if Landlord fails to deliver the Premises to Tenant on or before July 1, 2015, then Tenant may, by delivering written notice to Landlord on or before the earlier of (i) July 5, 2015 and (ii) the date Landlord delivers the Premises to Tenant, terminate this Lease effective as of the date of such written notice, and Landlord shall immediately refund all stuns deposited to Tenant, and the parties shall thereafter have no further obligations under this Lease.
2.3 Subject to the terms of this Section 2.3, as of the date that is one (1) business day following the date that this Lease has been fully executed by all parties and Tenant has delivered all prepaid rental, the Security Deposit, and insurance certificates required hereunder, Landlord grants Tenant the right to enter the Premises, at Tenant’s sole risk solely for the purpose of installing telecommunications and data cabling, equipment, furnishings and other personalty and for performing the Tenant Alterations described in Exhibit B attached hereto. Such possession prior to the Commencement Date shall be subject to all of the terms and conditions of this Lease, except that Tenant shall not be required to pay Monthly Installment of Rent or Tenant’s Proportionate Share of Expenses and Taxes with respect to the period of time prior to the Commencement Date during which Tenant occupies the Premises solely for such purposes, and Tenant shall not be liable for any utilities provided to Tenant during such period. Said early possession shall not advance the Termination Date. Landlord may withdraw such permission to enter the Premises prior to the Commencement Date at any time that Landlord reasonably determines that such entry by Tenant is causing a dangerous situation for Landlord, Tenant or their respective contractors or employees.
3. RENT.
3.1 Tenant agrees to pay to Landlord the Annual Rent in effect from time to time by paying the Monthly Installment of Rent then in effect on or before the first day of each full calendar month during the Term, except that Tenant shall pay the sum of the following upon execution of this Lease: (i) Monthly Installment of Rent for the third full calendar month of the Term, (ii) Tenant’s Proportionate Share of Expenses and Taxes for the first full calendar month of the Term, (iii) an amount equal to $47,517.00 to be applied to the Monthly Installment of Rent and Tenant’s Proportionate Share of Expenses and Taxes for the month of June 2017. Any amounts in excess of the sum of the actual Monthly Installment of Rent and Tenant’s Proportionate Share of Expenses and Taxes for the month of June 2017 shall be applied to the Monthly Installment of Rent for July 2017. The Monthly Installment of Rent in effect at any time shall be one-twelfth (1/12) of the Annual Rent in effect at such time. Rent for any period during the Term which is less than a full month shall be a prorated portion of the Monthly Installment of Rent based upon the number of days in such month. Said rent shall be paid to Landlord, without deduction or offset and without notice or demand, at the Rent Payment Address, as set forth on the Reference Pages, or to such other person or at such other place as Landlord may from time to time designate in writing. If an Event of Default occurs, Landlord may require by notice to Tenant that all subsequent rent payments be made by an automatic payment from Tenant’s bank account to Landlord’s account, without cost to Landlord, and Tenant must implement such automatic payment system prior to the next scheduled rent payment or within ten (10) days after Landlord’s notice, whichever is later. Unless specified in this Lease to the contrary, all amounts and sums payable by Tenant to Landlord pursuant to this Lease shall be deemed additional rent.
Helion Energy, Inc.
2
3.2 Tenant recognizes that late payment of any rent or other sum due under this Lease will result in administrative expense to Landlord, the extent of which additional expense is extremely difficult and economically impractical to ascertain. Tenant therefore agrees that if rent or any other sum is not paid when due and payable pursuant to this Lease, a late charge shall be imposed in an amount equal to the greater of: (a) Fifty Dollars ($50.00), or (b) six percent (6%) of the unpaid rent or other payment; provided, however, that the foregoing late charge shall not apply to the first such late payment in any twelve (12) month period of the Term of this Lease or any extension thereto until following written notice to Tenant and the expiration of five (5) days thereafter without cure. The amount of the late charge to be paid by Tenant shall be reassessed and added to Tenant’s obligation for each successive month until paid. The provisions of this Section 3.2 in no way relieve Tenant of the obligation to pay rent or other payments on or before the date on which they are due, nor do the terms of this Section 3.2 in any way affect Landlord’s remedies pursuant to Article 19 of this Lease in the event said rent or other payment is unpaid after date due.
3.3 Notwithstanding anything in this Lease to the contrary, so long as Tenant is not in default under this Lease beyond any applicable notice and cure period, Tenant shall be entitled to an abatement of Monthly Installment of Rent with respect to the Premises, as originally described in this Lease, in the amount of $30,894.30 per month for the first two (2) full calendar months of the Tenn. The maximum total amount of Monthly Installment of Rent abated with respect to the Premises in accordance with the foregoing shall equal $61,788.60 (the “Abated Monthly Installment of Rent”). If Tenant defaults under this Lease at any time during the Term (as the same may be further extended) and fails to cure such default within any applicable cure period under this Lease, then all unamortized Abated Monthly Installment of Rent (i.e. based upon the amortization of the Abated Monthly Installment of Rent in equal monthly amounts, without interest, during the period commencing on the Commencement Date and ending on the original Termination Date) shall immediately become due and payable. Only Monthly Installment of Rent shall be abated pursuant to this Section, as more particularly described herein, and Tenant’s Proportionate Share of Expenses and Taxes and all other rent and other costs and charges specified in this Lease shall remain as due and payable pursuant to the provisions of this Lease.
4. RENT ADJUSTMENTS.
4.1 For the purpose of this Article 4, the following terms are defined as follows:
4.1.1 Lease Year: Each fiscal year (as determined by Landlord from time to time) falling partly or wholly within the Term.
4.1.2 Expenses: Landlord agrees to act in a commercially reasonable manner in incurring Expenses, taking into consideration the class and the quality of the Building and shall extrapolate Expenses in accordance with the methodology used to extrapolate Expenses in comparable buildings owned by Landlord and its affiliates in the geographic area in which the Building is located. “Expenses” shall include, but not be limited to: all costs of operation, maintenance, repair, replacement and management of the Building (including the amount of any credits which Landlord may grant to particular tenants of the Building in lieu of providing any standard services or paying any standard costs described in this Section 4.1.2 for similar tenants), as determined in accordance with generally accepted accounting principles, including the following costs by way of illustration, but not limitation: water and sewer charges; insurance charges of or relating to all insurance policies and endorsements deemed by Landlord to be reasonably necessary or desirable and relating in any manner to the protection, preservation, or operation of the Building or any part thereof; utility costs, including, but not limited to, the cost of heat, light, power, steam, gas and energy for the Building; waste disposal; recycling costs; the cost of janitorial services; the cost of security and alarm services (including any central station signaling system); costs of cleaning, repairing, replacing and maintaining the common areas, including parking and landscaping, window cleaning costs; labor costs; costs and expenses of managing the Building including management and/or administrative fees in an amount not to exceed three and one quarter percent 3.25% of the gross receipts for the Building; air conditioning maintenance costs; elevator maintenance fees and supplies; material costs; equipment costs including the cost of maintenance, repair and service agreements and rental and leasing costs; purchase costs of equipment; current rental and leasing costs of items which would be capital items if purchased; tool costs; licenses, permits and inspection fees; wages and salaries; employee benefits and payroll taxes; accounting and legal fees; any sales, use or service taxes incurred in connection therewith. In addition, Landlord shall be entitled to recover, as additional rent (which, along with any other capital expenditures constituting. Expenses, Landlord may either include in Expenses or cause to be billed to Tenant along with Expenses and Taxes but as a separate item), Tenant’s Proportionate Share of (a) an allocable portion of the cost of capital improvement items which are reasonably calculated to reduce operating expenses; (b) the cost of fire sprinklers and suppression systems and other life safety systems or enhance the environmental sustainability of the Property’s operations; and (c) other capital expenses which are required under any Regulations which were not applicable to the Building at the time it was constructed; but the costs described in this sentence shall be amortized over the reasonable life of such expenditures in accordance with such reasonable life and amortization schedules as shall be determined by Landlord in accordance with generally accepted accounting principles, with interest on the unamortized amount at one percent (1%) in excess of the Wall Street Journal prime lending rate announced from time to time.
Helion Energy. inc.
3
The following are also excluded from Expenses:
| (a) | Depreciation or amortization of the Building or equipment in the Building except as provided herein. |
| (b) | Loan principal payments and interest expenses on long-term borrowings. |
| (c) | Leasing commissions, fees and costs, advertising and promotional expenses and other costs incurred in procuring tenants or in selling the Building. |
| (d) | Advertising or promotional expenditures. |
| (e) | Legal fees or other expenses incurred in connection with enforcing leases with tenants in the Building. |
| (f) | Any “tenant allowances”, “tenant concessions” and other costs or expenses incurred in fixturing, furnishing, renovating or otherwise improving, decorating or redecorating space for tenants or other occupants of the Building, or vacant leaseable space in the Building, except in connection with general maintenance and repairs provided to the tenants of the Building in general. |
| (g) | Depreciation; principal payments of mortgage and other non operating debts of Landlord. |
| (h) | Ground lease rental. |
| (i) | Any cost or expense related to removal, cleaning, abatement or remediation of Hazardous Materials existing as of the date of this Lease in or about the Building, common areas or project in which the Building is a part except to the extent such removal, cleaning, abatement or remediation is related to the general repair and maintenance of the Building. |
| (j) | Costs incurred by Landlord for the repair of damage to the Building, to the extent that Landlord is reimbursed for such costs by insurance proceeds, contractor warranties, guarantees, judgments or other third party sources. |
| (k) | Any expenses for which Landlord has received actual reimbursement (other than through Expenses). |
| (1) | The cost of operating any commercial concession which is operated by Landlord at the Building. |
| (m) | Costs incurred by Landlord in connection with the correction of defects in the original construction of the Building. |
| (n) | Sums (other than management fees, it being agreed that the management fees included in Expenses are as described in Section 4.1.2 above) paid to subsidiaries or other affiliates of Landlord for services on or to the Building and/or Premises, but only to the extent that the costs of such services exceed the competitive cost for such services rendered by persons or entities of similar skill, competence and experience. |
| (o) | Except as may be specifically provided in Section 4.1.2, any capital improvement costs. |
| (p) | Late fees or charges incurred by Landlord due to late payment of expenses, except to the extent attributable to Tenant’s actions or inactions. |
| (q) | All costs associated with the operation of the business of the entity which constitutes “Landlord” (as distinguished from the costs of operating, maintaining, repairing and managing the Building) including, but not limited to, Landlord’s or Landlord’s managing agent’s general corporate overhead and general administrative expenses. |
Helion Energy, Inc.
4
| (r) | Cost of any work or service performed on an extra-cost basis for any tenant in the Building or the Project to a materially greater extent or in a materially more favorable manner than furnished generally to other tenants. |
| (s) | Fines or penalties incurred as a result of violation of Landlord of any applicable Regulation. |
4.1.3 Taxes: Real estate taxes and any other taxes, charges and assessments which are levied with respect to the Building or the land appurtenant to the Building, or with respect to any improvements, fixtures and equipment or other property of Landlord, real or personal, located in the Building and used in connection with the operation of the Building and said land, any payments to any ground lessor in reimbursement of tax payments made by such lessor; and all fees, expenses and costs incurred by Landlord in investigating, protesting, contesting or in any way seeking to reduce or avoid increase in any assessments, levies or the tax rate pertaining to any Taxes to be paid by Landlord in any Lease Year. Taxes shall be determined without regard to any “green building” credit and shall not include any corporate franchise, or estate, inheritance or net income tax, or documentary transfer tax imposed upon any transfer by Landlord of its interest in this Lease or any taxes to be paid by Tenant pursuant to Article 28. Any items excluded from the definition of Expenses shall likewise be excluded from the definition of Taxes.
4.2 Tenant shall pay as additional rent for each Lease Year Tenant’s Proportionate Share of Expenses and Taxes incurred for such Lease Year.
4.3 The annual determination of Expenses shall be made by Landlord and shall be binding upon Landlord and Tenant, subject to the provisions of this Section 4.3. Landlord shall use commercially reasonable efforts to furnish to Tenant the statement of actual Expenses and Taxes on or before April 1 of the calendar year immediately following the year to which the statement applies. Landlord may deliver such annual determination to Tenant via regular U.S. mail. During the Term, Tenant may review, at Tenant’s sole cost and expense, the books and records supporting such determination in an office of Landlord, or Landlord’s agent, during normal business hours, upon giving Landlord five (5) days advance written notice within sixty (60) days after receipt of such determination, but in no event more often than once in any one (1) year period, subject to execution of a confidentiality agreement reasonably acceptable to Landlord, and provided that if Tenant utilizes an independent accountant to perform such review it shall be one of national standing which is reasonably acceptable to Landlord, is not compensated on a contingency basis and is also subject to such confidentiality agreement. If Tenant fails to object to Landlord’s determination of Expenses within ninety (90) days after receipt, Tenant shall be deemed to have approved such determination and shall have no further right to object to or contest such determination. In the event that during all or any portion of any Lease Year, the Building is not fully rented and occupied Landlord shall make an appropriate adjustment in occupancy-related Expenses for such year for the purpose of avoiding distortion of the amount of such Expenses to be attributed to Tenant by reason of variation in total occupancy of the Building, by employing consistent and sound accounting and management principles to determine Expenses that would have been paid or incurred by Landlord had the Building been at least ninety-five percent (95%) rented and occupied, and the amount so determined shall be deemed to have been Expenses for such Lease Year.
4.4 Prior to the determination of actual Expenses and Taxes for a Lease Year, Landlord may from time to time estimate Tenant’s liability for Expenses and/or Taxes under Section 4.2, Article 6 and Article 28 for the Lease Year or portion thereof. Landlord will give Tenant written notification of the amount of such estimate and Tenant agrees that it will pay, by increase of its Monthly Installments of Rent due in such Lease Year, additional rent in the amount of such estimate. Any such increased rate of Monthly Installments of Rent pursuant to this Section 4.4 shall remain in effect until further written notification to Tenant pursuant hereto.
4.5 When the above mentioned actual determination of Tenant’s liability for Expenses and/or Taxes is made for any Lease Year and when Tenant is so notified in writing, then:
4.5.1 If the total additional rent Tenant actually paid pursuant to Section 4.3 on account of Expenses and/or Taxes for the Lease Year is less than Tenant’s liability for Expenses and/or Taxes, then Tenant shall pay such deficiency to Landlord as additional rent in one lump sum within thirty (30) days of receipt of Landlord’s bill therefor; and
4.5.2 If the total additional rent Tenant actually paid pursuant to Section 4.3 on account of Expenses and/or Taxes for the Lease Year is more than Tenant’s liability for Expenses and/or Taxes, then Landlord shall credit the difference against the then next due payments to be made by Tenant under this Article 4, or; if this Lease has terminated, refund the difference in cash within thirty (30) days of such determination.
Helion Energy, Inc.
5
4.6 If the Commencement Date is other than January 1 or if the Termination Date is other than December 31, Tenant’s liability for Expenses and Taxes for the Lease Year in which said Date occurs shall be prorated based upon a three hundred sixty-five (365) day year.
5. SECURITY DEPOSIT. Tenant shall deposit the Security Deposit with Landlord upon the execution of this Lease. Said sum shall be held by Landlord as security for the faithful performance by Tenant of all the terms, covenants and conditions of this Lease to be kept and performed by Tenant and not as an advance rental deposit or as a measure of Landlord’s damage in case of Tenant’s default. If (a) an Event of Default by Tenant occurs in the payment or performance of any of the terms, covenants or conditions of this Lease, including the payment of rent, or (b) Tenant fails to make any installment of rent within five (5) business days after the same is due (without any obligation on the part of Landlord to provide Tenant written notice of such failure), Landlord may apply or retain the whole or any part of the Security Deposit, to the extent required for the payment of any Monthly Installment of Rent or any other sum as to which Tenant is in default including (i) any sum which Landlord may expend or may be required to expend by reason of Tenant’s default, and/or (ii) any damages to which Landlord is entitled pursuant to this Lease, whether such damages accrue before or after summary proceedings or other reentry by Landlord. If any portion is so used, Tenant shall within five (5) business days after written demand therefor, deposit with Landlord an amount sufficient to restore the Security Deposit to its original amount and Tenant’s failure to do so shall be a material breach of this Lease. Except to such extent, if any, as shall be required by law, Landlord shall not be required to keep the Security Deposit separate from its general funds, and Tenant shall not be entitled to interest on such deposit. If Tenant shall fully and faithfully perform every provision of this Lease to be performed by it, the Security Deposit or any balance thereof shall be returned to Tenant sixty (60) days after the later of: (i) the date Tenant surrenders possession of the Premises to Landlord in accordance with the terms and conditions of this Lease, and (ii) date of the expiration or earlier termination of this Lease.
6. ALTERATIONS.
6.1 Except for those, if any, specifically provided for in Exhibit B to this Lease, Tenant shall not make or suffer to be made any alterations, additions, or improvements, including, but not limited to, the attachment of any fixtures or equipment in, on, or to the Premises or any part thereof or the making of any improvements as required by Article 7, without the prior written consent of Landlord. When applying for such consent, Tenant shall, if requested by Landlord, furnish complete plans and specifications for such alterations, additions and improvements. Landlord’s consent shall not be unreasonably withheld with respect to alterations which (a) are not structural in nature, (b) are not visible from the exterior of the Building, (c) do not affect or require modification of the Building’s electrical, mechanical, plumbing, HVAC or other systems, and (d) in aggregate do not cost more than $5.00 per rentable square foot of that portion of the Premises affected by the alterations in question.
6.2 In the event Landlord consents to the making of any such alteration, addition or improvement by Tenant, the same shall be made by using either Landlord’s contractor or a contractor reasonably approved by Landlord, in either event at Tenant’s sole cost and expense. If Tenant shall employ any contractor other than Landlord’s contractor and such other contractor or any subcontractor of such other contractor shall employ any non-union labor or supplier, Tenant shall be responsible for and hold Landlord harmless from any and all delays, damages and extra costs suffered by Landlord as a result of any dispute with any labor unions concerning the wage, hours, terms or conditions of the employment of any such labor_ In any event Landlord may charge Tenant a construction management fee equal to (i) five percent (5%) of the cost of such work for any work costing $100,000.00 or less in the aggregate, and (ii) to the extent the cost of such work exceeds $100,000.00 in the aggregate, three percent (3%) of the cost of any such work, to cover its overhead as it relates to such proposed work, plus third-party costs actually incurred by Landlord in connection with the proposed work and the design thereof, with all such amounts being due ten (10) days after Landlord’s demand.
6.3 All alterations, additions or improvements proposed by Tenant shall be constructed in accordance with all Regulations and with Landlord’s Building construction standards (if any) from time to time to the extent applicable (which standards shall be made available to Tenant by Landlord’s Building manager upon request. Tenant shall use Building standard materials where applicable, and Tenant shall, prior to construction, provide the additional insurance required under Article 11 in such case, and also all such assurances to Landlord as Landlord shall reasonably require to assure payment of the costs thereof, including but not limited to, notices of non-responsibility, waivers of lien, surety company performance bonds and funded construction escrows and to protect Landlord and the Building and appurtenant land against any loss from any mechanic’s, materialmen’s or other liens. Tenant shall pay in addition to any sums due pursuant to Article 4, any increase in real estate taxes attributable to any such alteration, addition or improvement for so long, during the Term, as such increase is ascertainable; at Landlord’s election said sums shall be paid in the same way as sums due under Article 4. In the event that following Landlord’s evaluation of Tenant’s then-current financial condition and performance history, Landlord determines in its good faith, prudent business judgment that the same is reasonably and prudently required, Landlord may, as a condition to its consent to any particular alterations or improvements (other than Tenant’s Work set forth on Exhibit B), require Tenant to deposit with Landlord the amount reasonably estimated by Landlord as sufficient to cover the cost of removing such alterations or improvements and restoring the Premises, to the extent required under Section 26.2.
Helion Energy, Inc.
6
6.4 Notwithstanding anything to the contrary contained herein, so long as Tenant’s written request for consent for a proposed alteration or improvements contains the following statement in large, bold and capped font “PURSUANT TO ARTICLE 6 OF THE LEASE, IF LANDLORD CONSENTS TO THE SUBJECT ALTERATION, LANDLORD SHALL NOTIFY TENANT IN WRITING WHETHER OR NOT LANDLORD WILL REQUIRE SUCH ALTERATION TO BE REMOVED AT THE EXPIRATION OR EARLIER TERMINATION OF THE LEASE.”, at the time Landlord gives its consent for any alterations or improvements, if it so does, Tenant shall also be notified whether or not Landlord will require that such alterations or improvements be removed upon the expiration or earlier termination of this Lease. Notwithstanding anything to the contrary contained in this Lease, at the expiration or earlier termination of this Lease and otherwise in accordance with Article 26 hereof, Tenant shall be required to remove all alterations or improvements made to the Premises except for any such alterations or improvements which Landlord expressly indicates or is deemed to have indicated shall not be required to be removed from the Premises by Tenant. If Tenant’s written notice strictly complies with the foregoing and if Landlord fails to so notify Tenant whether Tenant shall be required to remove the subject alterations or improvements at the expiration or earlier termination of this Lease, it shall be assumed that Landlord shall require the removal of the subject alterations or improvements.
7. REPAIR.
7.1 Landlord shall have no obligation to alter, remodel, improve, repair, decorate or paint the Premises, except as specified in Exhibit B attached to this Lease and except that Landlord shall repair and maintain the structural portions of the roof, foundation and walls of the Building at its sole cost and expense, and Landlord shall repair and maintain the internal and external common areas and all Building systems (other than those exclusively serving the Premises), the costs and expenses of which shall be treated as Expenses in accordance with the provisions of Article 4 hereof. By taking possession of the Premises, Tenant accepts them as being in good order, condition and repair and in the condition in which Landlord is obligated to deliver them. It is hereby understood and agreed that no representations respecting the condition of the Premises or the Building have been made by Landlord to Tenant, except as specifically set forth in this Lease. Landlord shall not be liable for any failure to make any repairs or to perform any maintenance unless such failure shall persist for an unreasonable time after written notice of the need of such repairs or maintenance is given to Landlord by Tenant.
7.2 Tenant shall at its own cost and expense keep and maintain all parts of the Premises and such portion of the Building and improvements as are within the exclusive control of Tenant in good condition, promptly making all necessary repairs and replacements, whether ordinary or extraordinary, with materials and workmanship of the same character, kind and quality as the original (including, but not limited to, repair and replacement of all fixtures installed by Tenant, water heaters exclusively serving the Premises, windows, glass and plate glass, doors, any special office entries, interior walls and finish work, floors and floor coverings, any elevator exclusively serving the. Premises, beating and air conditioning systems exclusively serving the Premises, electrical systems and fixtures exclusively serving the Premises, sprinkler systems exclusively serving the Premises, dock boards exclusively serving the Premises, truck doors exclusively serving the Premises, dock bumpers, plumbing work and fixtures exclusively serving the Premises, and performance of regular removal of trash and debris). Tenant as part of its obligations hereunder shall keep the Premises in a clean and sanitary condition. Tenant will, as far as possible keep all such parts of the Premises from deterioration due to ordinary wear and from falling temporarily out of repair, and upon termination of this Lease in any way Tenant will yield up the Premises to Landlord in good condition and repair, loss by fire or other casualty excepted (but not excepting any damage to glass). Notwithstanding the foregoing and except to the extent caused by Tenant or any of the Tenant Entities’ acts and/or omissions or as a result of casualty, during the initial Term only, to the extent Landlord is made aware and Landlord determines in its sole discretion that expenditures for full replacement of the heating, ventilating and air conditioning unit solely servicing the Premises (as opposed to the repair thereof) must be made, Landlord shall cause such work to be completed and Tenant shall pay the amortized potion of such expenditure in the manner described for capital expenses as set forth in Section 4.1.2 of this Lease. Tenant shall be responsible for paying amortized amounts due during the Term and any extension thereof. Tenant shall, at its own cost and expense, repair any damage to the Premises or the Building resulting from and/or caused in whole or in part by the negligence or misconduct of Tenant, its agents, employees, contractors, invitees, or any other person entering upon the Premises as a result of Tenant’s business activities or caused by Tenant’s default hereunder. Repair and maintenance work shall be undertaken in compliance with Landlord’s Building construction standards (if any) from time to time to the extent applicable (which standards shall be made available to Tenant by Landlord’s Building manager upon request).
7.3 Except as provided in Article 22, there shall be no abatement of rent and no liability of Landlord by reason of any injury to or interference with Tenant’s business arising from the making of any repairs, alterations or improvements in or to any portion of the Building or the Premises or to fixtures, appurtenances and equipment in the Building. Except to the extent, if any, prohibited by law, Tenant waives the right to make repairs at Landlord’s expense under any law, statute or ordinance now or hereafter in effect.
Helion Energy, Inc.
7
7.4 Landlord shall enter into a regularly scheduled preventive maintenance/service contract with a maintenance contractor for servicing any elevator which serves the Premises and all heating and air conditioning systems and equipment serving the Premises. The service contract shall include all services suggested by the equipment manufacturer in the operation/maintenance manual. Tenant shall pay its Proportionate Share of the cost of this preventative maintenance service as a part of the Rent Adjustments as described in Article 4 of this Lease.
8. LIENS. Tenant shall keep the Premises, the Building and appurtenant land and Tenant’s leasehold interest in the Premises free from any liens arising out of any services, work or materials performed, furnished, or contracted for by Tenant, or obligations incurred by Tenant. In the event that Tenant fails, within ten (10) days following the imposition of any such lien, to either cause the same to be released of record or provide Landlord with insurance against the same issued by a major title insurance company or such other protection against the same as Landlord shall accept (such failure to constitute an Event of Default), Landlord shall have the right to cause the same to be released by such means as it shall deem proper, including payment of the claim giving rise to such lien. All such sums paid by Landlord and all expenses incurred by it in connection therewith shall be payable to it by Tenant within ten (10) days of Landlord’s demand.
9. ASSIGNMENT AND SUBLETTING.
9.1 Except in connection with a Permitted Transfer (defined below), Tenant shall not have the right to assign or pledge this Lease or to sublet the whole or any part of the Premises whether voluntarily or by operation of law, or permit the use or occupancy of the Premises by anyone other than Tenant, and shall not make, suffer or permit such assignment. subleasing or occupancy without the prior written consent of Landlord, such consent not to be unreasonably withheld, conditioned or delayed, and said restrictions shall be binding upon any and all assignees of this Lease and subtenants of the Premises. In the event Tenant desires to sublet, or permit such occupancy of, the Premises, or any portion thereof, or assign this Lease, Tenant shall give written notice thereof to Landlord at least thirty (30) days but no more than one hundred twenty (120) days prior to the proposed commencement date of such subletting or assignment, which notice shall set forth the name of the proposed subtenant or assignee, the relevant terms of any sublease or assignment and copies of financial reports and other relevant financial information of the proposed subtenant or assignee.
9.2 Notwithstanding any assignment or subletting, permitted or otherwise, Tenant shall at all times remain directly, primarily and fully responsible and liable for the payment of the rent specified in this Lease and for compliance with all of its other obligations under the terms, provisions and covenants of this Lease. Upon the occurrence of an Event of Default, if the Premises or any part of them are then assigned or sublet, Landlord, in addition to any other remedies provided in this Lease or provided by law, may, at its option, collect directly from such assignee or subtenant all rents due and becoming due to Tenant under such assignment or sublease and apply such rent against any sums due to Landlord from Tenant under this Lease, and no such collection shall be construed to constitute a novation or release of Tenant from the further performance of Tenant’s obligations under this Lease.
9.3 In addition to Landlord’s right to approve of any subtenant or assignee, Landlord shall have the option, in its sole discretion, in the event of any proposed subletting or assignment other than a Permitted Transfer (defined below in Section 9.8), to terminate this Lease, or in the case of a proposed subletting of less than the entire Premises, to recapture the portion of the Premises to be sublet, as of the date the subletting or assignment is to be effective. The option shall be exercised, if at all, by Landlord giving Tenant written notice given by Landlord to Tenant within thirty (30) days following Landlord’s receipt of Tenant’s written notice as required above. However, if Tenant notifies Landlord, within five (5) business days after receipt of Landlord’s termination notice, that Tenant is rescinding its proposed assignment or sublease, the termination notice shall be void and this Lease shall continue in full force and effect. If this Lease shall be terminated with respect to the entire Premises pursuant to this Section, the Term of this Lease shall end on the date stated in Tenant’s notice as the effective date of the sublease or assignment as if that date had been originally fixed in this Lease for the expiration of the Term. If Landlord recaptures under this Section only a portion of the Premises, the rent to be paid from time to time during the unexpired Term shall abate proportionately based on the proportion by which the approximate square footage of the remaining portion of the Premises shall be less than that of the Premises as of the date immediately prior to such recapture. Tenant shall, at Tenant’s own cost and expense, discharge in full any outstanding commission obligation which may be due and owing as a result of any proposed assignment or subletting, whether or not the Premises are recaptured pursuant to this Section 9.3 and rented by Landlord to the proposed tenant or any other tenant.
Helion Energy, Inc.
8
9.4 Except with respect to a Permitted Transfer, in the event that Tenant sells, sublets, assigns or transfers this Lease, in connection with any such transfer other than a Permitted Transfer, Tenant shall pay to Landlord as additional rent an amount equal to fifty percent (50%) of any Increased Rent (as defined below), less the Costs Component (as defined below), when and as such Increased Rent is received by Tenant. As used in this Section, “Increased Rent” shall mean the excess of (a) all rent and other consideration which Tenant is entitled to receive by reason of any sale, sublease, assignment or other transfer of this Lease (other than a Permitted Transfer), over (b) the rent otherwise payable by Tenant under this Lease at such time. For purposes of the foregoing, any consideration received by Tenant in form other than cash shall be valued at its fair market value as determined by Landlord in good faith. The “Costs Component” is the reasonable costs incurred by Tenant for leasing commissions, attorney’s fees, any assignment and subletting fee incurred by Tenant in connection with Landlord’s review and consent, and tenant improvements in connection with such sublease, assignment or other transfer.
9.5 Notwithstanding any other provision hereof, it shall be considered reasonable for Landlord to withhold its consent to any assignment of this Lease or sublease of any portion of the Premises if at the time of either Tenant’s notice of the proposed assignment or sublease or the proposed commencement date thereof, there shall exist any uncured default of Tenant or matter which will become a default of Tenant with passage of time unless cured, or if the proposed assignee or sublessee is an entity: (a) with which Landlord is already in or has been in the prior thirty (30) days active negotiation (unless Landlord does not have space available for lease in the Building that is comparable to the space Tenant desires to sublet or assign_ Landlord shall be deemed to have comparable space if it has, or will have, space available on any floor of the Building that is approximately the same size as the space Tenant desires to sublet or assign within four (4) months, in the aggregate, of the proposed commencement of the proposed sublease or assignment, and for a comparable term); (b) is already an occupant of the Building unless Landlord is unable to provide space comparable to that required by such occupant; (c) is a governmental agency; (d) is incompatible with the character of occupancy of the Building; (e) with which the payment for the sublease or assignment is determined in whole or in part based upon its net income or profits; or (t) would subject the Premises to a use which would: (i) involve increased personnel or wear upon the Building; (ii) violate any exclusive right granted to another tenant of the Building; (iii) require any addition to or modification of the Premises or the Building in order to comply with building code or other governmental requirements (unless Tenant agrees to pay the cost thereof);; or, (iv) involve a violation of Section 1.2. Tenant expressly agrees that for the purposes of any statutory or other requirement of reasonableness on the part of Landlord, Landlord’s refusal to consent to any assignment or sublease for any of the reasons described in this Section 9.5, shall be conclusively deemed to be reasonable.
9.6 Upon any request to assign or sublet, Tenant will pay to Landlord the Assignment/Subletting Fee plus, on demand, a sum equal to all of Landlord’s reasonable costs, including reasonable attorney’s fees, incurred in investigating and considering any proposed or purported assignment or pledge of this Lease or sublease of any of the Premises, regardless of whether Landlord shall consent to, refuse consent, or determine that Landlord’s consent is not required for, such assignment, pledge or sublease. Any purported sale, assignment, mortgage, transfer of this Lease or subletting which does not comply with the provisions of this Article 9 shall be void.
9.7 If Tenant is a corporation, limited liability company, partnership or trust, any transfer or transfers of or change or changes within any twelve (12) month period in the number of the outstanding voting shares of the corporation or limited liability company, the general partnership interests in the partnership or the identity of the persons or entities controlling the activities of such partnership or trust resulting in the persons or entities owning or controlling a majority of such shares, partnership interests or activities of such partnership or trust at the beginning of such period no longer having such ownership or control shall be regarded as equivalent to an assignment of this Lease to the persons or entities acquiring such ownership or control and shall be subject to all the provisions of this Article 9 to the same extent and for all intents and purposes as though such an assignment.
9.8 So long as Tenant is not entering into the Permitted Transfer (as defined below) for the purpose of avoiding or otherwise circumventing the remaining terms of this Article 9, Tenant may assign its entire interest under this Lease, without the consent of Landlord, to (a) an affiliate, subsidiary, or parent of Tenant, or a corporation, partnership or other legal entity wholly owned by Tenant (collectively, an “Affiliated Party”), or (b) a successor to Tenant by purchase, merger, consolidation or reorganization, provided that all of the following conditions are satisfied (each such transfer a “Permitted Transfer” and any such assignee or sublessee of a Permitted Transfer, a “Permitted Transferee”): (1) Tenant is not in default under this Lease; (ii) the Permitted Use does not allow the Premises to be used for retail purposes; (iii) Tenant shall give Landlord written notice at least thirty (30) days prior to the effective date of the proposed Permitted Transfer (provided that, if prohibited by confidentiality or law in connection with a proposed purchase, merger, consolidation or reorganization, then Tenant shall give Landlord written notice within 10 days after the effective date of the proposed purchase, merger, consolidation or reorganization); (iv) with respect to a proposed Permitted Transfer to an Affiliated Party, Tenant continues to have a net worth equal to or greater than Tenant’s net worth at the date of this Lease; and (v) with respect to a purchase, merger, consolidation or reorganization or any Permitted Transfer which results in Tenant ceasing to exist as a separate legal entity, (A) Tenant’s successor shall own all or substantially all of the assets of Tenant, and (B) Tenant’s successor shall have a net worth which is at least equal to the greater of Tenant’s net worth at the date of this Lease or Tenant’s net worth as of the day prior to the proposed purchase, merger, consolidation or reorganization. Tenant’s notice to Landlord shall include information and documentation showing that each of the above conditions has been satisfied. If requested by Landlord, Tenant’s successor shall sign a commercially reasonable form of assumption agreement. As used herein, (1) “parent” shall mean a company which owns a majority of Tenant’s voting equity; (2) “subsidiary” shall mean an entity wholly owned by Tenant or at least fifty-one percent (51%) of whose voting equity is owned by Tenant; and (3) “affiliate” shall mean an entity controlled, controlling or under common control with Tenant. In addition, a sale or transfer of the memberships, interests, shares, or stock of Tenant shall be deemed a Permitted Transfer if such sale or transfer occurs in connection with any bona fide financing or capitalization for the benefit of Tenant, or Tenant is, or in connection with the proposed transfer becomes, a publicly traded entity.
Helion Energy, Inc.
9
10. INDEMNIFICATION. None of the Landlord Entities shall be liable and Tenant hereby waives all claims against them for any damage to any property or any injury to any person in or about the Premises or the Building by or from any cause whatsoever (including without limiting the foregoing, rain or water leakage of any character from the roof, windows, walls, basement, pipes, plumbing works or appliances, the Building not being in good condition or repair, gas, fire, oil, electricity or theft), except to the extent caused by or arising from the gross negligence or willful misconduct of Landlord or its agents, employees or contractors. Tenant shall protect, indemnify and hold the Landlord Entities harmless from and against any and all loss, claims, liability or costs (including court costs and attorney’s fees) incurred by reason of (a) any damage to any property (including but not limited to property of any Landlord Entity) or any injury (including but not limited to death) to any person occurring in, on or about the Premises or the Building to the extent that such injury or damage shall be caused by or arise from any actual or alleged act, neglect, fault, or omission by or of Tenant or any Tenant Entity to meet any standards imposed by any duty with respect to the injury or damage; (b) the conduct or management of any work or thing whatsoever done by the Tenant in or about the Premises or from transactions of the Tenant concerning the Premises; (c) Tenant’s actual or asserted failure to comply with any Regulations applicable to the condition or use of the Premises or its occupancy; or (d) any breach or default on the part of Tenant in the performance of any covenant or agreement on the part of the Tenant to be performed pursuant to this Lease. The provisions of this Article shall survive the termination of this Lease with respect to any claims or liability accruing prior to such termination.
To the extent necessary to fully indemnify Landlord and the Landlord Entities from claims made by Tenant or its employees, the indemnity set forth in this Article 10 constitutes a waiver of Tenant’s immunity under the Washington Industrial Insurance Act, RCW Title 51 and any successor statute.
| Tenant’s Initials: | /s/ DC | Tenant’s Initials: | /s/ DC |
11. INSURANCE.
11.1 Tenant shall keep in force throughout the Term: (a) a Commercial General Liability insurance policy or policies to protect the Landlord Entities against any liability to the public or to any invitee of Tenant or a Landlord Entity incidental to the use of or resulting from any accident occurring in or upon the Premises with a limit of not less than $1,000,000 per occurrence and not less than $2,000,000 in the annual aggregate, or such larger amount as Landlord may prudently require from time to time, covering bodily injury and property damage liability and $1,000,000 products/completed operations aggregate, and $1,000,000 personal injury and advertising injury liability, and including Premises/Operations liability, Products/Completed Operations Liability, Contractual Liability, Broad Form Property Damage Liability, and an Exception to a Pollution Exclusion for Bodily Injury or Property Damage Liability from a hostile fire; (b Business Auto Liability covering owned, leased, hired and non-owned vehicles used by or on behalf of the Tenant with a limit of not less than $1,000,000 per accident; (c) Worker’s Compensation Insurance with limits as required by statute; (d) Employers Liability with limits of $1,000,000 each accident, $1,000,000 disease policy limit, $1,000,000 disease—each employee; (e) All Risk Replacement Cost Property Insurance at not less than full replacement value or Special Form coverage protecting Tenant against loss of or damage to Tenant’s alterations, additions, improvements, carpeting, floor coverings, panelings, decorations, fixtures, inventory and other business personal property situated in or about the Premises to the full replacement value of the property so insured; (f) Business Interruption Insurance for 100% of twelve (12) months actual loss sustained; and (g) Excess General, Auto and Employer’s Liability in the amount of $3,000,000 per occurrence.
Helion Energy, Inc.
10
11.2 The aforesaid policies shall (a) be provided at Tenant’s expense; (b) name the Landlord Entities, and all other entities with an interest in the Property (as disclosed by Landlord) as additional insureds (General Liability, Auto Liability, and Excess Liability) and loss payee (Property-Special Form); (c) be issued by an insurance company with a minimum Best’s rating of “A-:VII” during the Term; (d) provide that said insurance shall not be canceled unless thirty (30) days prior written notice (ten days for non-payment of premium) shall have been given to Landlord; a certificate of Liability insurance on ACORD Form 25 (or comparable form acceptable to Landlord in its sole discretion) and a certificate of Property insurance on ACORD Form 28 (or comparable form acceptable to Landlord in its sole discretion) shall be delivered to Landlord by Tenant upon the Commencement Date and at least thirty (30) days prior to each renewal of said insurance; (e) be endorsed so that they are primary and non-contributing with other insurance available to the additional insureds (other than Worker’s Compensation); and (f) include a cross-liability or severability of interests clause (other than Worker’s Compensation).
11.3 Whenever Tenant shall undertake any alterations, additions or improvements in, to or about the Premises (“Work”) the aforesaid insurance protection must extend to and include injuries to persons and damage to property arising in connection with such Work, without limitation including liability under any applicable structural work act, and such other insurance as Landlord shall require; and the policies of or certificates evidencing such insurance must be delivered to Landlord prior to the commencement of any such Work.
12. WAIVER OF SUBROGATION. So long as their respective insurers so permit, Tenant and Landlord hereby mutually waive their respective rights of recovery against each other for any loss insured (or required to be insured pursuant to this Lease) by fire, extended coverage, All Risks or other insurance now or hereafter existing for the benefit of the respective party but only to the extent of the net insurance proceeds payable under such policies. Each party shall obtain any special endorsements required by their insurer to evidence compliance with the aforementioned waiver.
13. SERVICES AND UTILITIES. Tenant shall pay for all water, gas, heat, light, power, telephone, sewer, sprinkler system charges and other utilities and services used on or from the Premises, together with any taxes, penalties, and surcharges or the like pertaining thereto and any maintenance charges for utilities. Tenant shall furnish all electric light bulbs, tubes and ballasts, battery packs for emergency lighting and rue extinguishers. If any such services are not separately metered to Tenant, Tenant shall pay such proportion of all charges jointly metered with other premises as determined by Landlord, in its sole discretion, to be reasonable. Any such charges paid by Landlord and assessed against Tenant shall be immediately payable to Landlord within ten (10) days of demand and shall be additional rent hereunder. Tenant will not, without the written consent of Landlord, contract with a utility provider to service the Premises with any utility, including, but not limited ‘to, telecommunications, electricity, water, sewer or gas, which is not previously providing such service to other tenants in the Building. Landlord shall in no event be liable for any interruption or failure of utility services on or to the Premises. In addition, if applicable, Landlord may install and shall have access to the Premises to monitor a separate meter (or submeter) to determine the actual use of any utility in the Premises or any shared common area and may make available and share actual whole-project energy and water usage data as necessary to maintain the Building’s “green building” certification, if any. If there is no meter or submeter in the Premises, then, upon request, Tenant shall provide monthly utility usage to Landlord in electronic or paper format or provide permission for Landlord to request information regarding Tenant’s utility usage directly from the utility company. Notwithstanding the foregoing, if the Premises, or a material portion of the Premises, are made untenantable for a period in excess of seven (7) consecutive days solely as a result of an interruption, diminishment or termination of services due to Landlord’s gross negligence or willful misconduct and such interruption, diminishment or termination of services is otherwise reasonably within the control of Landlord to correct (a “Service Failure”), then Tenant, as its sole remedy, shall be entitled to receive an abatement of the Monthly Installment of Rent and Tenant’s Proportionate Share of Expenses and Taxes payable hereunder during the period beginning on the eighth (8th) business day of the Service Failure and ending on the day the interrupted service has been restored. If the entire Premises have not been rendered untenantable by the Service Failure, the amount of abatement shall be equitably prorated.
14. HOLDING OVER. Tenant shall pay Landlord for each day Tenant retains possession of the Premises or part of them after termination of this Lease by lapse of time or otherwise at the rate (“Holdover Rate”) which shall be One Hundred Fifty Percent (150%) of the amount of the Annual Rent for the last period prior to the date of such termination plus all Tenant’s Proportionate Share of Expenses and Taxes under Article 4, prorated on a daily basis, and also pay all damages sustained by Landlord by reason of such retention. If Landlord gives notice to Tenant of Landlord’s election to such effect, such holding over shall constitute renewal of this Lease for a period from month to month at the Holdover Rate, but if the Landlord does not so elect, no such renewal shall result notwithstanding acceptance by Landlord of any sums due hereunder after such termination; and instead, a tenancy at sufferance at the Holdover Rate shall be deemed to have been created. In any event, no provision of this Article 14 shall be deemed to waive Landlord’s right of reentry or any other right under this Lease or at law.
Helion Energy, Inc.
11
15. SUBORDINATION. Without the necessity of any additional document being executed by Tenant for the purpose of effecting a subordination, this Lease shall be subject and subordinate at all times to ground or underlying leases and to the lien of any mortgages or deeds of trust now or hereafter placed on, against or affecting the Building, Landlord’s interest or estate in the Building, or any ground or underlying lease; provided, however, that if the lessor, mortgagee, trustee, or holder of any such mortgage or deed of trust elects to have Tenant’s interest in this Lease be superior to any such instrument, then, by notice to Tenant, this Lease shall be deemed superior, whether this Lease was executed before or after said instrument. Notwithstanding the foregoing, Tenant covenants and agrees to execute and deliver within ten (10) days of Landlord’s request such further instruments evidencing such subordination or superiority of this Lease as may be required by Landlord. Notwithstanding the foregoing, upon written request by Tenant, Landlord will use reasonable efforts to obtain a non-disturbance, subordination and attornment agreement from Landlord’s then current mortgagee on such mortgagee’s then current standard form of agreement. “Reasonable efforts” of Landlord shall not require Landlord to incur any cost, expense or liability to obtain such agreement, it being agreed that Tenant shall be responsible for any fee or review costs charged by such mortgagee. Landlord’s failure to obtain a non-disturbance, subordination and attornment agreement for Tenant shall have no effect on the rights, obligations and liabilities of Landlord and Tenant or be considered to be a default by Landlord hereunder.
16. RULES AND REGULATIONS. Tenant shall faithfully observe and comply with all the rules and regulations as set forth in Exhibit D to this Lease and all reasonable and non-discriminatory modifications of and additions to them from time to time put into effect by Landlord. Landlord shall not be responsible to Tenant for the non-performance by any other tenant or occupant of the Building of any such rules and regulations. In the event of any conflict between any of the rules and regulations and this Lease, the terms of this Lease shall control.
17. REENTRY BY LANDLORD.
17.1 Landlord reserves and shall at all times have the right to re-enter the Premises to inspect the same, to show said Premises to prospective purchasers, mortgagees or tenants, and to alter, improve or repair the Premises and any portion of the Building, without abatement of rent, and may for that purpose erect, use and maintain scaffolding, pipes, conduits and other necessary structures and open any wall, ceiling or floor in and through the Building and Premises where reasonably required by the character of the work to be performed, provided entrance to the Premises shall not be blocked thereby, and further provided that the business of Tenant shall not be interfered with unreasonably. Landlord agrees that except in the event (a) Tenant is in default under this Lease, (b) Landlord and Tenant are negotiating for or have agreed to an early termination of this Lease, or (c) Landlord and Tenant otherwise mutually agree to the contrary, Landlord shall not show the Premises to prospective tenants except during the last twelve (12) months of the Term of this Lease. Landlord shall have the right at any time to change the arrangement and/or locations of entrances, or passageways, doors and doorways, and corridors, windows, elevators, stairs, toilets or other public parts of the Building and to change the name, number or designation by which the Building is commonly !mown. In the event that Landlord damages any portion of any wall or wall covering, ceiling, or floor or floor covering within the Premises, Landlord shall repair or replace the damaged portion to match the original as nearly as commercially reasonable but shall not be required to repair or replace more than the portion actually damaged. Tenant hereby waives any claim for damages for any injury or inconvenience to or interference with Tenant’s business, any loss of occupancy or quiet enjoyment of the Premises, and any other loss occasioned by any action of Landlord authorized by this Article 17.
17.2 For each of the aforesaid purposes, Landlord shall at all times have and retain a key with which to unlock all of the doors in the Premises, excluding Tenant’s vaults and safes or special security areas (designated in advance), and Landlord shall have the right to use any and all means which Landlord may deem proper to open said doors in an emergency to obtain entry to any portion of the Premises. As to any portion to which access cannot be had by means of a key or keys in Landlord’s possession, Landlord is authorized to gain access by such means as Landlord shall elect and the cost of repairing any damage occurring in doing so shall be borne by Tenant and paid to Landlord within ten (10) days of Landlord’s demand.
18. DEFAULT.
18.1 Except as otherwise provided in Article 20, the following events shall be deemed to be Events of Default under this Lease:
18.1.1 Tenant shall fail to pay when due any sum of money becoming due to be paid to Landlord under this Lease, whether such sum be any installment of the rent reserved by this Lease, any other amount treated as additional rent under this Lease, or any other payment or reimbursement to Landlord required by this Lease, whether or not treated as additional rent under this Lease, and such failure shall continue for a period of five (5) days after written notice that such payment was not made when due, but if any such notice shall be given., for the twelve (12) month period commencing with the date of such notice, the failure to pay within five (5) days after due any additional sum of money becoming due to be paid to Landlord under this Lease during such period shall be an Event of Default, without notice.
Helion Energy, Inc.
12
18.1.2 Tenant shall fail to comply with any term, provision or covenant of this Lease which is not provided for in another Section of this Article and shall not cure such failure within twenty (20) days (forthwith, if the failure involves a hazardous condition) after written notice of such failure to Tenant provided, however, that such failure shall not be an event of default if such failure could not reasonably be cured during such twenty (20) day period, Tenant has commenced the cure within such twenty (20) day period and thereafter is diligently pursuing such cure to completion, but the total cure period shall not exceed ninety (90) days for defaults under Article 44.
18.1.3 Tenant shall fail to vacate the Premises immediately upon termination of this Lease, by lapse of time or otherwise, or upon termination of Tenant’s right to possession only.
18.1.4 Tenant shall become insolvent, admit in writing its inability to pay its debts generally as they become due, file a petition in bankruptcy or a petition to take advantage of any insolvency statute, make an assignment for the benefit of creditors, make a transfer in fraud of creditors, apply for or consent to the appointment of a receiver of itself or of the whole or any substantial part of its property, or file a petition or answer seeking reorganization or arrangement under the federal bankruptcy laws, as now in effect or hereafter amended, or any other applicable law or statute of the United States or any state thereof.
18.1.5 A court of competent jurisdiction shall enter an order, judgment or decree adjudicating Tenant bankrupt, or appointing a receiver of Tenant, or of the whole or any substantial part of its property, without the consent of Tenant, or approving a petition filed against Tenant seeking reorganization or arrangement of Tenant under the bankruptcy laws of the United States, as now in effect or hereafter amended, or any state thereof, and such order, judgment or decree shall not be vacated or set aside or stayed within sixty (60) days from the date of entry thereof.
19. REMEDIES.
19.1 Except as otherwise provided in Article 20, upon the occurrence of any of the Events of Default described or referred to in Article 18, Landlord shall have the option to pursue any one or more of the following remedies without any notice or demand whatsoever, concurrently or consecutively and not alternatively:
19.1.1 Landlord may, at its election, terminate this Lease or terminate Tenant’s right to possession only. without terminating this Lease.
19.1.2 Upon any termination of this Lease, whether by lapse of time or otherwise, or upon any termination of Tenant’s right to possession without termination of this Lease, Tenant shall surrender possession and vacate the Premises immediately, and deliver possession thereof to Landlord, and Tenant hereby grants to Landlord full and free license to enter into and upon the Premises in such event and to repossess Landlord of the Premises as of Landlord’s former estate and to expel or remove Tenant and any others who may be occupying or be within the Premises and to remove Tenant’s signs and other evidence of tenancy and all other property of Tenant therefrom without being deemed in any manner guilty of trespass, eviction or forcible entry or detainer, and without incurring any liability for any damage resulting therefrom, Tenant waiving any right to claim damages for such re-entry and expulsion, and without relinquishing Landlord’s right to rent or any other right given to Landlord under this Lease or by operation of law.
19.1.3 Upon any termination of this Lease, whether by lapse of time or otherwise, Landlord shall be entitled to recover as damages, all rent, including any amounts treated as additional rent under this Lease, and other sums due and payable by Tenant on the date of termination, plus as liquidated damages and not as a penalty, an amount equal to the sum of: (a) an amount equal to the then present value of the rent reserved in this Lease for the residue of the stated Term of this Lease including any amounts treated as additional rent under this Lease and all other sums provided in this Lease to be paid by Tenant, minus the fair rental value of the Premises for such residue; (b) the value of the time and expense necessary to obtain a replacement tenant or tenants, and the estimated expenses described in Section 19.1.4 relating to recovery of the Premises, preparation for reletting and for reletting itself; and (c) the cost of performing any other covenants which would have otherwise been performed by Tenant.
19.1.4 Upon any termination of Tenant’s right to possession only without termination of this Lease:
19.1.4.1 Neither such termination of Tenant’s right to possession nor Landlord’s taking and holding possession thereof as provided in Section 19.1.2 shall terminate this Lease or release Tenant, in whole or in part, from any obligation, including Tenant’s obligation to pay the rent, including any amounts treated as additional rent, under this Lease for the full Term, and if Landlord so elects Tenant shall continue to pay to Landlord the entire amount of the rent as and when it becomes due, including any amounts treated as additional rent under this Lease, for the remainder of the Term plus any other sums provided in this Lease to be paid by Tenant for the remainder of the Term.
Helion Energy, Inc.
13
19.1.4.2 Landlord shall use commercially reasonable efforts to relet the Premises or portions thereof to the extent required by applicable law. Landlord and Tenant agree that nevertheless Landlord shall at most be required to use only the same efforts Landlord then uses to lease premises in the Building generally and that in any case that Landlord shall not be required to give any preference or priority to the showing or leasing of the Premises or portions thereof over any other space that Landlord may be leasing or have available and may place a suitable prospective tenant in any such other space regardless of when such other space becomes available and that Landlord shall have the right to relet the Premises for a greater or lesser term than that remaining under this Lease, the right to relet only a portion of the Premises, or a portion of the Premises or the entire Premises as a part of a larger area, and the right to change the character or use of the Premises. In connection with or in preparation for any reletting, Landlord may, but shall not be required to, make repairs, alterations and additions in or to the Premises and redecorate the same to the extent Landlord deems necessary or desirable, and Tenant shall pay the cost thereof, together with Landlord’s expenses of reletting, including, without limitation, any commission incurred by Landlord, within ten (10) days of Landlord’s demand. Landlord shall not be required to observe any instruction given by Tenant about any reletting or accept any tenant offered by Tenant unless such offered tenant has a credit-worthiness acceptable to Landlord and leases the entire Premises upon terms and conditions including a rate of rent (after giving effect to all expenditures by Landlord for tenant improvements, broker’s commissions and other leasing costs) all no less favorable to Landlord than as called for in this Lease, nor shall Landlord be required to make or permit any assignment or sublease for more than the current term or which Landlord would not be required to permit under the provisions of Article 9.
19.1.4.3 Until such time as Landlord shall elect to terminate this Lease and shall thereupon be entitled to recover the amounts specified in such case in Section 19.3, Tenant shall pay to Landlord upon demand the full amount of all rent, including any amounts treated as additional rent under this Lease and other sums reserved in this Lease for the remaining Term, together with the costs of repairs, alterations, additions, redecorating and Landlord’s expenses of reletting and the collection of the rent accruing therefrom (including reasonable attorney’s fees and broker’s commissions), as the same shall then be due or become due from time to time, less only such consideration as Landlord may have received from any reletting of the Premises; and Tenant agrees that Landlord may file suits from time to time to recover any sums falling due under this Article 19 as they become due. Any proceeds of reletting by Landlord in excess of the amount then owed by Tenant to Landlord from time to time shall be credited against Tenant’s future obligations under this Lease but shall not otherwise be refunded to Tenant or inure to Tenant’s benefit.
19.2 Upon the occurrence of an Event of Default, Landlord may (but shall not be obligated to) cure such default at Tenant’s sole expense. Without limiting the generality of the foregoing, Landlord may, at Landlord’s option, enter into and upon the Premises if Landlord determines in its sole discretion that Tenant is not acting within a commercially reasonable time to maintain, repair or replace anything for which Tenant is responsible under this Lease or to otherwise effect compliance with its obligations under this Lease and correct the same, without being deemed in any manner guilty of trespass, eviction or forcible entry and detainer and without incurring any liability for any damage or interruption of Tenant’s business resulting therefrom and Tenant agrees to reimburse Landlord within ten (10) days of Landlord’s demand as additional rent, for any expenses which Landlord may incur in thus effecting compliance with Tenant’s obligations under this Lease, plus interest from the date of expenditure by Landlord at the Wall Street Journal prime rate.
19.3 Tenant understands and agrees that in entering into this Lease, Landlord is relying upon receipt of all the Annual Rent and Monthly Installments of Rent to become due with respect to all the Premises originally leased hereunder over the full initial Term of this Lease for amortization, including interest at the Amortization Rate. For purposes hereof, the “Concession Amount” shall be defined as the aggregate of all amounts forgone or expended by Landlord as free rent under this Lease, under Exhibit B hereof for construction allowances (excluding therefrom any amounts expended by Landlord for Landlord Work, as defined in Exhibit B), and for brokers’ commissions payable by reason of this Lease. Accordingly, Tenant agrees that if this Lease or Tenant’s right to possession of the Premises leased hereunder shall be terminated as of any date (“Default Termination Date”) prior to the expiration of the full initial Term hereof by reason of a default of Tenant, there shall be due and owing to Landlord as of the day prior to the Default Termination Date, as rent in addition to all other amounts owed by Tenant as of such Date, the amount (“Unamortized Amount”) of the Concession Amount determined as set forth below; provided, however, that in the event that such amounts are recovered by Landlord pursuant to any other provision of this Article 19, Landlord agrees that it shall not attempt to recover such amounts pursuant to this Section 19.3. For the purposes hereof, the Unamortized Amount shall be determined in the same manner as the remaining principal balance of a mortgage with interest at the Amortization Rate payable in level payments over the same length of time as from the effectuation of the Concession Amount concerned to the end of the full initial Term of this Lease would be determined. The foregoing provisions shall also apply to and upon any reduction of space in the Premises, as though such reduction were a termination for Tenant’s default, except that (i) the Unamortized Amount shall be reduced by any amounts paid by Tenant to Landlord to effectuate such reduction and (ii) the manner of application shall be that the Unamortized Amount shall first be determined as though for a full termination as of the effective date of the elimination of the portion, but then the amount so determined shall be multiplied by the fraction of which the numerator is the rentable square footage of the eliminated portion and the denominator is the rentable square footage of the Premises originally leased hereunder; and the amount thus obtained shall be the Unamortized Amount.
Helion Energy, Inc.
14
19.4 If, on account of any breach or default by Tenant in Tenant’s obligations under the terms and conditions of this Lease, it shall become necessary or appropriate for Landlord to employ or consult with an attorney or collection agency concerning or to enforce or defend any of Landlord’s rights or remedies arising under this Lease or to collect any sums due from Tenant, Tenant agrees to pay all costs and fees so incurred by Landlord, including, without limitation, reasonable attorneys’ fees and costs. TENANT EXPRESSLY WAIVES ANY RIGHT TO: (A) TRIAL BY JURY; AND (B) SERVICE OF ANY NOTICE REQUIRED BY ANY PRESENT OR FUTURE LAW OR ORDINANCE APPLICABLE TO LANDLORDS OR TENANTS BUT NOT REQUIRED BY THE TERMS OF THIS LEASE.
19.5 Pursuit of any of the foregoing remedies shall not preclude pursuit of any of the other remedies provided in this Lease or any other remedies provided by law (all such remedies being cumulative), nor shall pursuit of any remedy provided in this Lease constitute a forfeiture or waiver of any rent due to Landlord under this Lease or of any damages accruing to Landlord by reason of the violation of any of the terms, provisions and covenants contained in this Lease.
19.6 No act or thing done by Landlord or its agents during the Term shall be deemed a termination of this Lease or an acceptance of the surrender of the Premises, and no agreement to terminate this Lease or accept a surrender of said Premises shall be valid, unless in writing signed by Landlord. No waiver by Landlord of any violation or breach of any of the terms, provisions and covenants contained in this Lease shall be deemed or construed to constitute a waiver of any other violation or breach of any of the terms, provisions and covenants contained in this Lease. Landlord’s acceptance of the payment of rental or other payments after the occurrence of an Event of Default shall not be construed as a waiver of such Default, unless Landlord so notifies Tenant in writing. Forbearance by Landlord in enforcing one or more of the remedies provided in this Lease upon an Event of Default shall not be deemed or construed to constitute a waiver of such Event of Default or of Landlord’s right to enforce any such remedies with respect to such Event of Default or any subsequent Event of Default.
19.7 To secure the payment of all rentals and other sums of money becoming due from Tenant under this Lease, Landlord shall have and Tenant grants to Landlord a first lien upon the leasehold interest of Tenant under this Lease, which lien may be enforced in equity. Tenant shall execute all such financing statements and other instruments as shall be deemed necessary or desirable in Landlord’s discretion to perfect the security interest hereby created.
19.8 Any and all property which may be removed from the Premises by Landlord pursuant to the authority of this Lease or of law, to which Tenant is or may be entitled, may be handled, removed and/or stored, as the case may be, by or at the direction of Landlord but at the risk, cost and expense of Tenant, and Landlord shall in no event be responsible for the value, preservation or safekeeping thereof. Tenant shall pay to Landlord, upon demand, any and all expenses incurred in such removal and all storage charges against such property so long as the same shall be in Landlord’s possession or under Landlord’s control. Any such property of Tenant not retaken by Tenant from storage within thirty (30) days after removal from the Premises shall, at Landlord’s option, be deemed conveyed by Tenant to Landlord under this Lease as by a bill of sale without further payment or credit by Landlord to Tenant.
19.9 If more than two (2) Events of Default occur during the Term or any renewal thereof, Tenant’s renewal options, expansion options, purchase options and rights of first offer and/or refusal, if any are provided for in this Lease, shall be null and void.
20. TENANT’S BANKRUPTCY OR INSOLVENCY.
20.1 If at any time and for so long as Tenant shall be subjected to the provisions of the United States Bankruptcy Code or other law of the United States or any state thereof for the protection of debtors as in effect at such time (each a “Debtor’s Law”):
20.1.1 Tenant, Tenant as debtor-in-possession, and any trustee or receiver of Tenant’s assets (each a “Tenant’s Representative”) shall have no greater right to assume or assign this Lease or any interest in this Lease, or to sublease any of the Premises than accorded to Tenant in Article 9, except to the extent Landlord shall be required to permit such assumption, assignment or sublease by the provisions of such Debtor’s Law. Without limitation of the generality of the foregoing, any right of any Tenant’s Representative to assume or assign this Lease or to sublease any of the Premises shall be subject to the conditions that:
Helion Energy, Inc.
15
20.1.1.1 Such Debtor’s Law shall provide to Tenant’s Representative a right of assumption of this Lease which Tenant’s Representative shall have timely exercised and Tenant’s Representative shall have fully cured any default of Tenant under this Lease.
20.1.1.2 Tenant’s Representative or the proposed assignee, as the case shall be, shall have deposited with Landlord as security for the timely payment of rent an amount equal to the larger of: (a) three (3) months’ rent and other monetary charges accruing under this Lease; and (b) any sum specified in Article 5; and shall have provided Landlord with adequate other assurance of the future performance of the obligations of the Tenant under this Lease. Without limitation, such assurances shall include, at least, in the case of assumption of this Lease, demonstration to the satisfaction of the Landlord that Tenant’s Representative has and will continue to have sufficient unencumbered assets after the payment of all secured obligations and administrative expenses to assure Landlord that Tenant’s Representative will have sufficient funds to fulfill the obligations of Tenant under this Lease; and, in the case of assignment, submission of current financial statements of the proposed assignee, audited by an independent certified public accountant reasonably acceptable to Landlord and showing a net worth and working capital in amounts determined by Landlord to be sufficient to assure the future performance by such assignee of all of the Tenant’s obligations under this Lease.
20.1.1.3 The assumption or any contemplated assignment of this Lease or subleasing any part of the Premises, as shall be the case, will not breach any provision in any other lease, mortgage, financing agreement or other agreement by which Landlord is bound.
20.13.4 Landlord shall have, or would have had absent the Debtor’s Law, no right under Article 9 to refuse consent to the proposed assignment or sublease by reason of the identity or nature of the proposed assignee or sublessee or the proposed use of the Premises concerned.
21. QUIET ENJOYMENT. Landlord represents and warrants that it has full right and authority to enter into this Lease and that Tenant, while paying the rental and performing its other covenants and agreements contained in this Lease, shall peaceably and quietly have, hold and enjoy the Premises for the Term without hindrance or molestation from Landlord subject to the terms and provisions of this Lease. Landlord shall not be liable for any interference or disturbance by other tenants or third persons, nor shall Tenant be released from any of the obligations of this Lease because of such interference or disturbance.
22. CASUALTY.
22.1 In the event the Premises or the Building are damaged by fire or other cause and in Landlord’s reasonable estimation such damage can be materially restored within one hundred eighty (180) days following the commencement of restoration, Landlord shall forthwith repair the same and this Lease shall remain in full force and effect, except that Tenant shall be entitled to a proportionate abatement in rent from the date of such damage. Such abatement of rent shall be made pro rata in accordance with the extent to which the damage and the making of such repairs shall interfere with the use and occupancy by Tenant of the Premises from time to time. Within forty-five (45) days from the date of such damage, Landlord shall notify Tenant, in writing, of Landlord’s reasonable estimation of the length of time within which material restoration can be made, and Landlord’s determination shall be binding on Tenant. For purposes of this Lease, the Building or Premises shall be deemed “materially restored” if they are in such condition as would not prevent or materially interfere with Tenant’s use of the Premises for the purpose for which it was being used immediately before such damage.
22.2 If such repairs cannot, in Landlord’s reasonable estimation, be made within one hundred eighty (180) days following the commencement of restoration, Landlord and Tenant shall each have the option of giving the other, at any time within thirty (30) days after Landlord’s notice of estimated restoration time, notice terminating this Lease as of the date of such damage. In the event of the giving of such notice, this Lease shall expire and all interest of the Tenant in the Premises shall terminate as of the date of such damage as if such date had been originally fixed in this Lease for the expiration of the Tenn. In the event that neither Landlord nor Tenant exercises its option to terminate this Lease, then Landlord shall repair or restore such damage, this Lease continuing in full force and effect, and the rent hereunder shall be proportionately abated as provided in Section 22.1.
Helion Energy, Inc.
16
22.3 Landlord shall not be required to repair or replace any damage or loss by or from fire or other cause to any panelings, decorations, partitions, additions, railings, ceilings, floor coverings, office fixtures or any other property or improvements installed on the Premises by, or belonging to, Tenant. Any insurance which may be carried by Landlord or Tenant against loss or damage to the Building or Premises shall be for the sole benefit of the party carrying such insurance and under its sole control.
22.4 In the event that Landlord should fail to complete such repairs and material restoration within sixty (60) days after the date estimated by Landlord therefor as extended by this Section 22.4, Tenant may at its option and as its sole remedy terminate this Lease by delivering written notice to Landlord, within fifteen (15) days after the expiration of said period of time, whereupon this Lease shall end on the date of such notice or such later date fixed in such notice as if the date of such notice was the date originally fixed in this Lease for the expiration of the Term; provided, however, that if construction is delayed because of changes, deletions or additions in construction requested by Tenant, strikes, lockouts, casualties, Acts of God, war, material or labor shortages, government regulation or control or other causes beyond the reasonable control of Landlord, the period for restoration, repair or rebuilding shall be extended for the amount of time Landlord is so delayed.
22.5 Notwithstanding anything to the contrary contained in this Article: (a) Landlord shall not have any obligation whatsoever to repair, reconstruct, or restore the Premises when the damages resulting from any casualty covered by the provisions of this Article 22 occur during the last twelve (12) months of the Term or any extension thereof, or for which sufficient insurance proceeds to fully cover the repairs and restoration are not received by Landlord, but if Landlord determines not to repair such damages Landlord shall notify Tenant and if such damages shall render any material portion of the Premises untenantable Tenant shall have the right to terminate this Lease by notice to Landlord within fifteen (15) days after receipt of Landlord’s notice; and (b) in the event the holder of any indebtedness secured by a mortgage or deed of trust covering the Premises or Building requires that any insurance proceeds be applied to such indebtedness, then Landlord shall have the right to terminate this Lease by delivering written notice of termination to Tenant within fifteen (15) days after such requirement is made by any such holder, whereupon this Lease shall end on the date of such damage as if the date of such damage were the date originally fixed in this Lease for the expiration of the Term.
22.6 In the event of any damage or destruction to the Building or Premises by any peril covered by the provisions of this Article 22, and to the extent reasonably possible under the circumstances, it shall be Tenant’s responsibility to properly secure the Premises and upon notice from Landlord to remove forthwith, at its sole cost and expense, such portion of all of the property belonging to Tenant or its licensees from. such portion or all of the Building or Premises as Landlord shall request in order to facilitate Landlord’s restoration.
23. EMINENT DOMAIN. If all or any substantial part of the Premises shall be taken or appropriated by any public or quasi-public authority under the power of eminent domain, or conveyance in lieu of such appropriation, either party to this Lease shall have the right, at its option, of giving the other, at any time within thirty (30) days after such taking, notice terminating this Lease, except that Tenant may only terminate this Lease by reason of taking or appropriation, if such taking or appropriation shall be so substantial as to materially interfere with Tenant’s use and occupancy of the Premises. If neither party to this Lease shall so elect to terminate this Lease, the rental thereafter to be paid shall be adjusted on a fair and equitable basis under the circumstances.. In addition to the rights of Landlord above, if any substantial part of the Building shall be taken or appropriated by any public or quasi-public authority under the power of eminent domain or conveyance in lieu thereof, and regardless of whether the Premises or any part thereof are so taken or appropriated, Landlord shall have the right, at its sole option, to terminate this Lease. Landlord shall be entitled to any and all income, rent, award, or any interest whatsoever in or upon any such sum, which may be paid or made in connection with any such public or quasi-public use or purpose, and Tenant hereby assigns to Landlord any interest it may have in or claim to all or any part of such sums, other than any separate award which may be made with respect to Tenant’s trade fixtures and moving expenses; Tenant shall make no claim for the value of any unexpired Term.
24. SALE BY LANDLORD. In event of a sale or conveyance by Landlord of the Building, the same shall operate to release Landlord from any future liability upon any of the covenants or conditions, expressed or implied, contained in this Lease in favor of Tenant, and in such event Tenant agrees to look solely to the responsibility of the successor in interest of Landlord in and to this Lease. Except as set forth in this Article 24, this Lease shall not be affected by any such sale and Tenant agrees to attorn to the purchaser or assignee. If any security has been given by Tenant to secure the faithful performance of any of the covenants of this Lease, Landlord may transfer or deliver said security, as such, to Landlord’s successor in interest and thereupon Landlord shall be discharged from any further liability with regard to said security.
Helion Energy, Inc.
17
25. ESTOPPEL CERTIFICATES. Within ten (10) days following any written request which Landlord may make from time to time, Tenant shall execute and deliver to Landlord or mortgagee or prospective mortgagee a sworn statement certifying (to Tenant’s actual knowledge, where applicable): (a) the date of commencement of this Lease; (b) the fact that this Lease is unmodified and in full force and effect (or, if there have been modifications to this Lease, that this Lease is in full force and effect, as modified. and stating the date and nature of such modifications); (c) the date to which the rent and other sums payable under this Lease have been paid; (d) the fact that there are no current defaults under this Lease by either Landlord or Tenant except as specified in Tenant’s statement; and (e) such other matters as may be reasonably requested by Landlord. Landlord and Tenant intend that any statement delivered pursuant to this Article 25 may be relied upon by any mortgagee, beneficiary or purchaser, and Tenant shall be liable for all loss, cost or expense resulting from the failure of any sale or funding of any loan caused by any material misstatement contained in such estoppel certificate. If Tenant fails to execute and deliver such certificate within such ten (10) day period, Landlord may provide to Tenant a second written request with respect to such estoppel certificate. Tenant irrevocably agrees that if Tenant fails to execute and deliver such certificate within a five (5) day period following the date of Landlord’s second written request therefor, Tenant irrevocably agrees that Landlord or Landlord’s beneficiary or agent may execute and deliver such certificate on Tenant’s behalf, and that such certificate shall be fully binding on Tenant.
26. SURRENDER OF PREMISES.
26.1 Tenant shall arrange to meet Landlord for two (2) joint inspections of the Premises, the first to occur at least thirty (30) days (but no more than sixty (60) days) before the last day of the Term, and the second to occur not later than forty-eight (48) hours after Tenant has vacated the Premises. In the event of Tenant’s failure to arrange such joint inspections and/or participate in either such inspection (except the extent such failure is caused by Landlord’s failure to participate), Landlord’s inspection at or after Tenant’s vacating the Premises shall be conclusively deemed correct for purposes of determining Tenant’s responsibility for repairs and restoration.
26.2 All alterations, additions, and improvements in, on, or to the Premises made or installed by or for Tenant, including, without limitation, carpeting (collectively, “Alterations”), shall be and remain the property of Tenant during the Term. Upon the expiration or sooner termination of the Term, all Alterations shall become a part of the realty and shall belong to Landlord without compensation, and title shall pass to Landlord under this Lease as by a bill of sale. At the end of the Term or any renewal of the Term or other sooner termination of this Lease, Tenant will peaceably deliver up to Landlord possession of the Premises, together with all Alterations by whomsoever made, in the same conditions received or first installed, broom clean and free of all debris, excepting only ordinary wear and tear and damage by fire or other casualty. Notwithstanding the foregoing, and subject to Section 6.4 above and this Section 26.2, if Landlord elects by notice given to Tenant at least ten (10) days prior to expiration of the Term, Tenant shall, at Tenant’s sole cost, remove any Alterations, including carpeting, so designated by Landlord’s notice, and repair any damage caused by such removal. Tenant must, at Tenant’s sole cost, remove upon termination of this Lease, any and all of Tenant’s furniture, furnishings, equipment, movable partitions of less than full height from floor to ceiling and other trade fixtures and personal property, as well as all data/telecommunications cabling and wiring installed by or on behalf of Tenant, whether inside walls, under any raised floor or above any ceiling (collectively, “Personalty”). Personalty not so removed shall be deemed abandoned by the Tenant and title to the same shall thereupon pass to Landlord under this Lease as by a bill of sale, but Tenant shall remain responsible for the cost of removal and disposal of such Personalty, as well as any damage caused by such removal.
26.3 All obligations of Tenant under this Lease not fully performed as of the expiration or earlier termination of the Term shall survive the expiration or earlier termination of the Term Upon the expiration or earlier termination of the Term. Tenant shall pay to Landlord the amount, as estimated by Landlord, necessary to repair and restore the Premises as provided in this Lease and/or to discharge Tenant’s obligation for unpaid amounts due or to become due to Landlord. All such amounts shall be used and held by Landlord for payment of such obligations of Tenant, with Tenant being liable for any additional costs upon demand by Landlord, or with any excess to be returned to Tenant after all such obligations have been determined and satisfied. Any otherwise unused Security Deposit shall be credited against the amount payable by Tenant under this Lease.
27. NOTICES. Any notice or document required or permitted to be delivered under this Lease shall be addressed to the intended recipient, by fully prepaid registered or certified United States Mail return receipt requested, or by reputable independent contract delivery service furnishing a written record of attempted or actual delivery, and shall be deemed to be delivered when tendered for delivery to the addressee at its address set forth on the Reference Pages, or at such other address as it has then last specified by written notice delivered in accordance with this Article 27, or if to Tenant at either its aforesaid address or its last known registered office or home of a general partner or individual owner, whether or not actually accepted or received by the addressee. Any such notice or document may also be personally delivered if a receipt is signed by and received from, the individual, if any, named in Tenant’s Notice Address.
Helion Energy, Inc.
18
28. TAXES PAYABLE BY TENANT. In addition to rent and other charges to be paid by Tenant under this Lease, Tenant shall reimburse to Landlord, upon demand, any and all taxes payable by Landlord (other than net income taxes) whether or not now customary or within the contemplation of the parties to this Lease: (a) upon, allocable to, or measured by or on the gross or net rent payable under this Lease, including without limitation any gross income tax or excise tax levied by the State, any political subdivision thereof, or the Federal Government with respect to the receipt of such rent; (b) upon or with respect to the possession, leasing, operation, management, maintenance, alteration, repair, use or occupancy of the Premises or any portion thereof, including any sales, use or service tax imposed as a result thereof; (c) upon or measured by the Tenant’s gross receipts or payroll or the value of Tenant’s equipment, furniture, fixtures and other personal property of Tenant or leasehold improvements, alterations or additions located in the Premises; or (d) upon this transaction or any document to which Tenant is a party creating or transferring any interest of Tenant in this Lease or the Premises. In addition to the foregoing, Tenant agrees to pay, before delinquency, any and all taxes levied or assessed against Tenant and which become payable during the term hereof upon Tenant’s equipment, furniture, fixtures and other personal property of Tenant located in the Premises.
29. RELOCATION OF TENANT. [INTENTIONALLY OMITTED]
30. BUILDING DEMOLITION. [INTENTIONALLY OMITTED]
31. DEFINED TERMS AND HEADINGS. The Article headings shown in this Lease are for convenience of reference and shall in no way define, increase, limit or describe the scope or intent of any provision of this Lease. Any indemnification or insurance of Landlord shall apply to and inure to the benefit of all the following “Landlord Entities”, being Landlord, Landlord’s investment manager, the California Public Employees Retirement System, and the trustees, boards of directors, officers, general partners, beneficiaries, stockholders, employees and agents of each of them. Any option granted to Landlord shall also include or be exercisable by Landlord’s trustee, beneficiary, agents and employees, as the case may be. In any case where this Lease is signed by more than one person, the obligations under this Lease shall be joint and several. The terms “Tenant” and “Landlord” or any pronoun used in place thereof shall indicate and include the masculine or feminine, the singular or plural number, individuals, firms or corporations, and their and each of their respective successors, executors, administrators and permitted assigns, according to the context hereof. The term “rentable area” shall mean the rentable area of the Premises or the Building as calculated by the Landlord on the basis of the plans and specifications of the Building including a proportionate share of any common areas. Landlord and Tenant hereby accept and agree to be bound by the figures for the rentable square footage of the Premises and Tenant’s Proportionate Share shown on the Reference Pages; however, Landlord may adjust either or both figures if there is manifest error, addition or subtraction to the Building or any business park or complex of which the Building is a part, remeasurement or other circumstance reasonably justifying adjustment; provided, however, the Premises and Tenant’s Proportionate Share shall in no event be increased during the initial Term of this Lease solely as a result of any such remeasurement. The term “Building” refers to the structure in which the Premises are located and the common areas (parking lots, sidewalks, landscaping, etc.) appurtenant thereto. If the Building is part of a larger complex of structures, the term “Building” may include the entire complex, where appropriate (such as shared Expenses or Taxes) and subject to Landlord’s reasonable discretion.
32. TENANT’S AUTHORITY.
32.1 If Tenant signs as a corporation, partnership, trust or other legal entity, Tenant represents and warrants that Tenant has been and is qualified to do business in the state in which the Building is located, that the entity has full right and authority to enter into this Lease, and that all persons signing on behalf of the entity were authorized to do so by appropriate actions. Tenant agrees to deliver to Landlord, simultaneously with the delivery of this Lease, a corporate resolution, proof of due authorization by partners, opinion of counsel or other appropriate documentation reasonably acceptable to Landlord evidencing the due authorization of Tenant to enter into this Lease.
32.2 Tenant hereby represents and warrants that neither Tenant, nor any persons or entities holding any legal or beneficial interest whatsoever in Tenant, are (i) the target of any sanctions program that is established by Executive Order of the President or published by the Office of Foreign Assets Control, U.S. Department of the Treasury (“OFAC”); (ii) designated by the President of OFAC pursuant to the Trading with the Enemy Act, 50 U.S.C. App, § 5, the International Emergency Economic Powers Act, 50 U.S.C. §§ 1701-06, the Patriot Act, Public Law 107-56, Executive Order 13224 (September 23, 2001) or any Executive Order of the President issued pursuant to such statutes; or (iii) named on the following list that is published by OFAC: “List of Specially Designated Nationals and Blocked Persons.” If the foregoing representation is untrue at any time during the Term, an Event of Default will be deemed to have occurred, without the necessity of notice to Tenant.
Helion Energy, Inc.
19
33. FINANCIAL STATEMENTS AND CREDIT REPORTS. At Landlord’s request, Tenant shall deliver to Landlord a copy, certified by an officer of Tenant as being a true and correct copy, of Tenant’s most recent audited financial statement, or, if unaudited, certified by Tenant’s chief financial officer as being true, complete and correct in all material respects. Tenant hereby authorizes Landlord to obtain one or more credit reports on Tenant at any time, and shall execute such further authorizations as Landlord may reasonably require in order to obtain a credit report.
34. COMMISSIONS. Each of the parties represents and warrants to the other that it has not dealt with any broker or finder in connection with this Lease, except as described on the Reference Pages. Landlord agrees to pay a brokerage commission to Tenant’s Broker in accordance with the terms of a separate written commission agreement to be entered into between Landlord and Tenant’s Broker, provided that in no event shall Landlord be obligated to pay a commission to Tenant’s Broker in connection with any extension of the Term or in connection with any additional space that is leased by Tenant pursuant to the terms of the Lease except as may be specifically provided otherwise in such written agreement or future written agreement between Landlord and Tenant’s Broker.
35. TIME AND APPLICABLE LAW. Time is of the essence of this Lease and all of its provisions. This Lease shall in all respects be governed by the laws of the state in which the Building is located. Whenever a period of time is prescribed for the taking of an action by Landlord, the period of time for the performance of such action shall be extended by the number of days that the performance is actually delayed due to strikes, acts of God, shortages of labor or materials, war, terrorist acts, pandemics, civil disturbances and other causes beyond the reasonable control of Landlord.
36. SUCCESSORS AND ASSIGNS. Subject to the provisions of Article 9, the terms, covenants and conditions contained in this Lease shall be binding upon and inure to the benefit of the heirs, successors, executors, administrators and assigns of the parties to this Lease.
37. ENTIRE AGREEMENT. This Lease, together with its exhibits, contains all agreements of the parties to this Lease and supersedes any previous negotiations. There have been no representations made by the Landlord or any of its representatives or understandings made between the parties other than those set forth in this Lease and its exhibits. This Lease may not be modified except by a written instrument duly executed by the parties to this Lease.
38. EXAMINATION NOT OPTION. Submission of this Lease shall not be deemed to be a reservation of the Premises. Landlord shall not be bound by this Lease until it has received a copy of this Lease duly executed by Tenant and has delivered to Tenant a copy of this Lease duly executed by Landlord, and until such delivery Landlord reserves the right to exhibit and lease the Premises to other prospective tenants. Notwithstanding anything contained in this Lease to the contrary, Landlord may withhold delivery of possession of the Premises from Tenant until such time as Tenant has paid to Landlord any security deposit required by Article 5, the third month’s rent as set forth in Article 3 and any sum owed pursuant to this Lease.
39. RECORDATION. Tenant shall not record or register this Lease or a short form memorandum hereof without the prior written consent of Landlord, and then shall pay all charges and taxes incident such recording or registration.
40. SIGNAGE. Landlord shall provide and install, at Landlord’s sole cost and expenses, the initial signage for Tenant in the Building lobby directory (if any) and at the entry to the Premises. Such signage shall consist of Building standard materials and shall comply with current Building specifications, including the Tenant Sign Criteria attached hereto as Exhibit E. Further, any signage installed by Tenant shall be subject to Landlord’s prior written approval, shall comply with all applicable Regulations and with the Tenant Sign Criteria.
41. BUILDING SIGNAGE.
41.1 Tenant shall be entitled to one tenant identification sign to be located on the Building above the entrance to the Premises with direct visibility to 154th Avenue NE (the “Building Signage”). The exact location of the Building Signage shall be subject to all applicable Regulations and Landlord’s prior written approval. The Building Signage shall not be illuminated. Such right to the Building Signage is subject to the following terms and conditions: (a) Tenant shall submit plans and drawings for the Building Signage to Landlord and to the City of Redmond and to any other public authorities having jurisdiction and shall obtain written approval from Landlord and each such jurisdiction prior to installation, and shall fully comply with all applicable Regulations; (b) Tenant shall, at Tenant’s sole cost and expense, design, construct and install the Building Signage; (c) the size, color and design of the Building Signage shall be subject to Landlord’s prior written approval; and (d) Tenant shall maintain the Building Signage in good condition and repair, and all costs of maintenance and repair shall be borne by Tenant. Maintenance shall include, without limitation, cleaning. Notwithstanding the foregoing, Tenant shall not be liable for any fee in connection with Tenant’s right to display the Building Signage in accordance with this Lease. At Landlord’s option, Tenant’s right to the Building Signage may be revoked and terminated upon occurrence of any of the following events: (i) Tenant shall be in default under this Lease beyond any applicable cure period; (ii) Tenant occupies less than one hundred percent (100%) of the Premises; or (iii) this Lease shall terminate or otherwise no longer be in effect.
Helion Energy, Inc.
20
41.2 Upon the expiration or earlier termination of this Lease or at such other time that Tenant’s signage rights are terminated pursuant to the terms hereof, if Tenant fails to remove the Building Signage and repair the Building in accordance with the terms of this Lease, Landlord shall cause the Building Signage to be removed from the Building and the Building to be repaired and restored to the condition which existed prior to the installation of the Building Signage (including, if necessary, the replacement of any precast concrete panels), all at the sole cost and expense of Tenant and otherwise in accordance with this Lease, without further notice from Landlord. Notwithstanding anything to the contrary contained in this Lease, Tenant shall pay all costs and expenses for such removal and restoration within five (5) business days following delivery of an invoice therefor. The rights provided in this Article 41 shall be non-transferable unless otherwise agreed by Landlord in writing in its sole discretion.
42. OPTION TO RENEW. Provided this Lease is in full force and effect and Tenant is not in default under any of the other terms and conditions of this Lease at the time of notification or commencement, Tenant shall have one (1) option to renew (the “Renewal Option”) this Lease for a term of five (5) years (the “Renewal Term”), for the portion of the Premises being leased by Tenant as of the date the Renewal Term is to commence, on the same terms and conditions set forth in this Lease, except as modified by the terms, covenants and conditions as set forth below:
42.1 If Tenant elects to exercise the Renewal Option, then Tenant shall provide Landlord with written notice no earlier than the date which is three hundred sixty five (365) days prior to the expiration of the Term of this Lease but no later than the date which is two hundred seventy (270) days prior to the expiration of the Term of this Lease. If Tenant fails to provide such notice, Tenant shall have no further or additional right to extend or renew the Term of this Lease.
42.2 The Annual Rent and Monthly Installment of Rent in effect at the expiration of the Term of this Lease shall be increased to reflect the Prevailing Market (defined in Section 42.9) rate. Landlord shall advise Tenant of the new Annual Rent and Monthly Installment of Rent for the Premises no later than thirty (30) days after receipt of Tenant’s written request therefor. Said request shall be made no earlier than thirty (30) days prior to the first date on which Tenant may exercise its Renewal Option under this Article 42. Said notification of the new Annual Rent and Monthly Installment of Rent may include a provision for its escalation to provide for a change in the Prevailing Market rate between the time of notification and the commencement of the Renewal Term. Notwithstanding anything to the contrary set forth herein, in no event shall the Annual Rent and Monthly Installment of Rent for the Renewal Term be less than the Annual Rent and Monthly Installment of Rent in the preceding period (the “Minimum Renewal Rental Rate”).
42.3 if Tenant and Landlord are unable to agree on a mutually acceptable Annual Rent and Monthly Installment of Rent for the Renewal Term not later than sixty (60) days prior to the expiration of the initial Term, then Landlord and Tenant, within five (5) days after such date, shall each simultaneously submit to the other, in a sealed envelope, its good faith estimate of the Prevailing Market rate for the Premises during the Renewal Term (collectively referred to as the “Estimates”), subject to the terms of Section 42.5 below regarding the Minimum Renewal Rental Rate. If the higher of such Estimates is not more than one hundred five percent (105%) of the lower of such Estimates, then the Prevailing Market rate shall be the average of the two Estimates. If the Prevailing Market rate is not established by the exchange of Estimates, then, within seven (7) days after the exchange of Estimates, Landlord and Tenant shall each select an appraiser to determine which of the two Estimates most closely reflects the Prevailing Market rate for the Premises during the Renewal Term. Each appraiser so selected shall be certified as an MAI appraiser or as an ASA appraiser and shall have had at least five (5) years experience within the previous ten (10) years as a real estate appraiser working in Redmond, Washington, with working knowledge of current rental rates and practices. For purposes hereof, an “MA1” appraiser means an individual who holds an MAI designation conferred by, and is an independent member of the American Institute of Real Estate Appraisers (or its successor organization, or in the event there is no successor organization, the organization and designation most similar), and an “ASA” appraiser means an individual who holds the Senior Member designation conferred by, and is an independent member of, the American Society of Appraisers (or its successor organization, or, in the event there is no successor organization, the organization and designation most similar).
42.4 Upon selection, Landlord’s and Tenant’s appraisers shall work together in good faith to agree upon which of the two Estimates most closely reflects the Prevailing Market rate for the Premises. The Estimates chosen by such appraisers shall be binding on both Landlord and Tenant, subject to the terms of Section 42.5 below regarding the Minimum Renewal Rental Rate. If either Landlord or Tenant fails to appoint an appraiser within the seven (7) day period referred to above, the appraiser appointed by the other party shall be the sole appraiser for the purposes hereof. If the two appraisers cannot agree upon which of the two Estimates most closely reflects the Prevailing Market rate within twenty (20) days after their appointment, then, within ten (10) days after the expiration of such twenty (20) day period, the two appraisers shall select a third appraiser meeting the aforementioned criteria. Once the third appraiser (i.e., the arbitrator) has been selected as provided for above, then, as soon thereafter as practicable but in any case within fourteen (14) days, the arbitrator shall make his or her determination of which of the two Estimates most closely reflects the Prevailing Market rate and such Estimate shall be binding on both Landlord and Tenant as the Prevailing Market rate for the Premises, subject to the terms of Section 42.5 below regarding the Minimum Renewal Rental Rate. If the arbitrator believes that expert advice would materially assist him or her, he or she may retain one or more qualified persons to provide such expert advice. The parties shall share equally in the costs of the arbitrator and of any experts retained by the arbitrator_ Any fees of any appraiser, counsel or experts engaged directly by Landlord or Tenant, however, shall be borne by the party retaining such appraiser, counsel or expert.
Helion Energy, Inc.
21
42.5 Notwithstanding anything to the contrary contained herein, the parties agree that Landlord shall not be obligated to renew this Lease if the Prevailing Market rate for the Premises during any year of the Renewal Term is less than the Minimum Renewal Rental Rate, regardless of any determination of Prevailing Market rate made by the appraisers or arbitrator, as described above.
42.6 If the Prevailing Market rate has not been determined by the commencement date of the Renewal Term, Tenant shall pay Monthly Installments of Rent upon the terms and conditions in effect during the last month of the initial Term until such time as the Prevailing Market rate has been determined. Upon such determination, the Annual Rent and Monthly Installments of Rent for the Premises shall be retroactively adjusted to the commencement of such Renewal Term for the Premises.
42.7 This Renewal Option is not transferable except in connection with a Permitted Transfer; the parties hereto acknowledge and agree that they intend that the Renewal Option shall be “personal” to Tenant and any assignee pursuant to a Permitted Transfer as set forth above and that in no event will any other assignee or sublessee have any rights to exercise this Renewal Option.
42.8 If the Renewal Option is validly exercised or if Tenant tails to validly exercise the Renewal Option. Tenant shall have no further right to extend the Term of this Lease.
42.9 For purposes of this Renewal Option, “Prevailing Market” shall mean the arms length fair market annual rental rate per rentable square foot under renewal leases and amendments entered into on or about the date on which the Prevailing Market is being determined hereunder for space comparable to the Premises in the Building and buildings comparable to the Building in the same rental market in the Redmond, Washington area as of the date the Renewal Term is to commence, taking into account the specific provisions of this Lease which will remain constant. The determination of Prevailing Market shall take into account any material economic differences between the terms of this Lease and any comparison lease or amendment, such as rent abatements, construction costs and other concessions and the manner, if any, in which the landlord under any such lease is reimbursed for operating expenses and taxes. The determination of Prevailing Market shall also take into consideration any reasonably anticipated changes in the Prevailing Market rate from the time such Prevailing Market rate is being determined and the time such Prevailing Market rate will become effective under this Lease.
43. ACCELERATION OPTION.
43.1 Tenant shall have the right to accelerate the Termination Date (“Acceleration Option”) of this Lease, with respect to the entire Premises only, effective as of the expiration of the thirty-sixty (36th) full calendar month of the Term (the “Accelerated Termination Date”), if
43.1.1 There is no default by Tenant under this Lease at the date Tenant provides Landlord with an Acceleration Notice (hereinafter defined); and
43.1.2 No part of the Premises is sublet for a term extending past the Accelerated Termination Date; and
43.1.3 This Lease has not been assigned; and
43.1.4 Landlord receives notice of acceleration (“Acceleration Notice”) not later than the end of the twenty-fourth (24th) full calendar month of the Term.
Helion Energy, Inc.
22
41.2 If Tenant exercises its Acceleration Option, concurrent with Tenant’s delivery to Landlord of Tenant’s Acceleration Notice, Tenant shall pay to Landlord the sum of an amount equal to the sum of the Monthly Installment of Rent and Tenant’s Proportionate Share of Expenses and Taxes applicable to the 37th through 48th full calendar months of the Term (the “Acceleration Fee”) as a fee in connection with the acceleration of the Termination Date and not as a penalty. Tenant shall remain liable for all Monthly Installments of Rent, Tenant’s Proportionate Share of Expenses and Taxes, additional rent and all other sums due under this Lease up to and including the Accelerated Termination Date even though billing for such may occur subsequent to the Accelerated Termination Date.
43.3 If Tenant, subsequent to providing Landlord with an Acceleration Notice, defaults in any of the provisions of this Lease (including, without limitation, a failure to pay the Acceleration Fee due hereunder), and such default is not cured within any applicable cure period under this Lease, Landlord, at its option, may (i) declare in writing Tenant’s exercise of the Acceleration Option to be null and void, and any Acceleration Fee paid to Landlord shall be returned to Tenant, after first applying such Acceleration Fee against any past due rent under this Lease, or (ii) continue to honor Tenant’s exercise of its Acceleration Option, in which case, Tenant shall remain liable for the payment of the Acceleration Fee and for all Monthly Installments of Rent, Tenant’s Proportionate Share of Expenses and Taxes, any additional rent and other sums due under this Lease up to and including the Accelerated Termination Date even though billings for such may occur subsequent to the Accelerated Termination Date. Further, in the event that Landlord shall declare Tenant’s exercise of the Acceleration Option to be null and void as provided in clause (i) above, Tenant shall protect, indemnify and hold Landlord and the Landlord Entities harmless from and against any and all loss, claims, liability or costs (including court costs and attorney’s fees) incurred by reason of such nullification of Tenant’s Acceleration Option, including, without limitation, any claims by any potential replacement tenants for the Premises.
43.4 As of the date Tenant provides Landlord with an Acceleration Notice, any unexercised rights or options of Tenant to renew the Term of this Lease or to expand the Premises (whether expansion options, rights of first or second refusal, rights of first or second offer, or other similar rights), and any outstanding tenant improvement allowance not claimed and properly utilized by Tenant in accordance with this Lease as of such date, shall immediately be deemed terminated and no longer available or of any further force or effect.
44. HAZARDOUS MATERIALS. The terms of this Article 44 supplement Article 1 of this Lease.
44.1 Tenant agrees that Tenant, its agents and contractors, licensees, or invitees shall not Handle any Hazardous Materials on, under, or about the Premises, without Landlord’s prior written consent (which consent shall not be unreasonably withheld, conditioned or delayed as long as Tenant demonstrates and documents to Landlord’s reasonable satisfaction (a) that such Hazardous Materials (i) are necessary or useful to Tenant’s business; and (ii) will be used, kept, and stored in compliance with all laws relating to any Hazardous Materials so brought or used or kept in or about the Premises; and (b) that Tenant will give all required notices concerning the presence in or on the Premises or the release of such Hazardous Materials from the Premises) provided that Tenant may handle, store, use or dispose of products containing small quantities of Hazardous Materials, which products are of a type customarily found in offices and households (such as aerosol cans containing insecticides, toner for copies, paints, paint remover, and the like), provided further that Tenant shall Handle any such Hazardous Materials in a safe and lawful manner and shall not allow such Hazardous Materials to contaminate the Premises or the Building or the property upon which the Building is located (“Property”).
44.2 Tenant further agrees that Tenant will not permit any substance suspected of causing cancer or reproductive toxicity to come into contact with groundwater under the Premises or Property. Any such substance coming into contact with groundwater shall be considered a Hazardous Material.
44.3 Notwithstanding the provisions of Section 44.1, and subject to the terms and conditions hereof, Tenant may Handle Hazardous Materials, limited to the types, amounts, and use identified on Exhibit G attached hereto. Tenant hereby certifies to Landlord that the information provided by Tenant pursuant to this Article 44 is true, correct, and complete. Tenant’s business and operations, and its handling, storage, use and disposal of Hazardous Materials shall at all times comply with all Environmental Laws. Tenant shall secure and abide by all permits necessary for Tenant’s operations on the Premises. Tenant shall give or post all notices required by all Environmental Laws. If Tenant shall at any time fail to comply with this Article 44, Tenant shall immediately notify Landlord in writing of such noncompliance.
44.4 Tenant shall provide Landlord with copies of any Material Safety Data Sheets (as required by the Occupational Safety and Health Act) relating to any Hazardous Materials to be used, kept, or stored at or on the Premises concurrently with Tenant’s order of such Hazardous Material to be delivered to the Premises.
Helion Energy, Inc.
23
44.5 Tenant shall not store hazardous wastes on the Premises for more than ninety (90) days; “hazardous waste” has the meaning given it by the Resource Conservation and Recovery Act of 1976, as amended. Tenant shall not install any underground or above ground storage tanks on the Premises. Tenant shall not dispose of any Hazardous Material or solid waste on the Premises. In performing any alterations of the Premises permitted by this Lease, Tenant shall not install any Hazardous Material in the Premises without the specific written consent of Landlord.
44.6 Any increase in the premiums for necessary insurance on the Building or the Property which arises from Tenant’s use and/or storage of Hazardous Materials shall be borne solely by Tenant. Tenant shall procure and maintain at its sole expense such additional insurance as may be necessary to comply with any requirement of any federal, state or local governmental agency with jurisdiction.
44.7 If Landlord, in its sole discretion, reasonably believes that the Premises, the Building or the Property have become contaminated with Hazardous Materials that must be removed under the laws of the State in which the Premises is located or otherwise in breach of the provisions of this Lease, Landlord, in addition to its other rights under this Lease, may enter upon the Premises and obtain samples from the Premises, including without limitation the soil and groundwater under the Premises, for the purposes of analyzing the same to determine whether and to what extent the Premises, the Building or the Property have become so contaminated. Tenant shall reimburse Landlord for the costs of any inspection, sampling and analysis that discloses contamination for which Tenant is liable under the terms of this Lease. Tenant may not perform any sampling, testing, or drilling to locate any Hazardous Materials on the Premises without Landlord’s prior written consent.
44.8 Without limiting the above, Tenant shall reimburse, defend, indemnify and hold Landlord and the Landlord Entities harmless from and against any and all claims, losses, liabilities, damages, costs and expenses, including without limitation, loss of rental income, loss due to business interruption, and attorneys fees and costs, arising out of or in any way connected with the use, manufacture, storage, or disposal of Hazardous Materials by Tenant, any Tenant Entities or Tenant’s contractors on, under or about the Premises including, without limitation, the costs of any required or necessary investigation, repair, cleanup or detoxification and the preparation of any closure or other required plans in connection herewith, whether voluntary or compelled by governmental authority. The indemnity obligations of Tenant under this Section shall survive the expiration or any termination of this Lease. At Landlord’s option, Tenant shall perform any required or necessary investigation, repair, cleanup, or detoxification of the Premises and the Property arising out of or in any way connected with the Handling of Hazardous Materials by Tenant, any Tenant Entities or Tenant’s contractor on or about the Premises, Building or Property. In such case, Landlord shall have the right, in its sole discretion, to approve all plans, consultants, and cleanup standards. Tenant shall provide Landlord on a timely basis with (a) copies of all documents, reports, and communications with governmental authorities; and (b) notice and an opportunity to attend all meetings with regulatory authorities. Tenant shall comply with all notice requirements and Landlord and Tenant agree to cooperate with governmental authorities seeking access to the Premises for purposes of sampling or inspection. No disturbance of Tenant’s use of the Premises resulting from activities conducted pursuant to this Section shall constitute an actual or constructive eviction of Tenant from the Premises. In the event that such cleanup arising out of or in any way connected with the Handling of Hazardous Materials by Tenant, any Tenant Entities or Tenant’s contractor on or about the Premises, Building or Property extends beyond the termination of this Lease, Tenant’s obligation to pay rent (including additional rent and percentage rent, if any) shall continue until such cleanup is completed and any certificate of clearance or similar document has been delivered to Landlord. Rent during such holdover period shall be at the Prevailing Market rate (as defined and determined by the provisions of Article 42); provided, in no event shall the rent for any holdover period be less than the rent due in the preceding period.
44.9 Notwithstanding anything set forth in this Lease, Tenant shall only be responsible for contamination of Hazardous Materials or any cleanup resulting directly therefrom, resulting directly from matters occurring or Hazardous Materials deposited (other than by contractors, agents or representatives controlled by Landlord or through the migration from adjacent properties through air, soil or groundwater, through no fault of Tenant) during the Term (as the same may be extended), and any other period of time during which Tenant or Tenant’s Entities are in actual or constructive occupancy of the Premises. Tenant shall take reasonable precautions to prevent the contamination of the Premises with Hazardous Materials by third parties.
44.10 It shall not be unreasonable for Landlord to withhold its consent to any proposed assignment or sublease if (a) the proposed assignee’s or sublessee’s anticipated use of the Premises involves the generation, storage, use, treatment or disposal of Hazardous Materials; (b) the proposed assignee or sublessee has been required by any prior landlord, lender, or governmental authority to take remedial action in connection with Hazardous Materials contaminating a property if the contamination resulted from such assignee’s or sublessee’s actions or use of the property in question; or (c) the proposed assignee or sublessee is subject to an enforcement order issued by any governmental authority in connection with the use, disposal, or storage of a hazardous material.
Helion Energy, Inc.
24
44.11 Any of Tenant’s insurance insuring against claims of the type dealt with in this Article 44 shall be considered primary coverage for claims against the Property arising out of or under this Article 44.
44.12 In the event of (a) any transfer of Tenant’s interest under this Lease; or (b) the termination of this Lease, by lapse of time or otherwise, Tenant shall be solely responsible for compliance with any and all then effective federal, state or local laws concerning (i) the physical condition of the Premises, Building, or the Property: or (ii) the presence of Hazardous Materials in or on the Premises, Building, or the Property, including but not limited to any reporting or filing requirements imposed by such Regulations, and to the extent Landlord is prevented or delayed from leasing the Premises, Tenant’s duty to pay any rent and additional rent shall continue until the obligations imposed by such Regulations are satisfied in full and any certificate of clearance or similar document has been delivered to Landlord.
44.13 All consents given by Landlord pursuant to this Article 44 shall be in writing and shall be attached as amendments to this Lease. If such consents are not attached to this Lease, then such consents will be deemed withheld.
45. LIMITATION OF LANDLORD’S LIABILITY. Redress for any claim against Landlord under this Lease shall be limited to and enforceable only against and to the extent of Landlord’s interest in the Building. The obligations of Landlord under this Lease are not intended to be and shall not be personally binding on, nor shall any resort be had to the private properties of, any of its or its investment manager’s trustees, directors, officers, partners, beneficiaries, members, stockholders, employees, or agents, and in no case shall Landlord be liable to Tenant hereunder for any lost profits, damage to business, or any form of special, indirect or consequential damages.
25
IN WITNESS WHEREOF, the parties hereto have caused this Lease to be executed as of the date and year first above written.
| LANDLORD: | TENANT: | ||
| CALWEST INDUSTRIAL PROPERTIES, LLC, | HELION ENERGY, INC., | ||
| a California limited liability company | a Delaware corporation | ||
| By: | Bentall Kennedy (U.S.) Limited Partnership, | ||
| a Washington limited partnership, | |||
| its Investment Manager | |||
| By: | Bentall Kennedy (U.S.) G.P. LLC | ||
| a Washington limited liability company, | |||
| its General Partner |
| By: | /s/ Brian J. Urback | By: | /s/ David Kirtley | |
| Name: | Brian J. Urback | Name: | Dr. David Kirtley | |
| Title: | Vice President | Title: | CEO, Helion Energy Inc. | |
| Dated: | 3-24-15 | Dated: | 3/18/2015 |
| By: | /s/ Joseph R. Shea | |
| Name: | Joseph R. Shea | |
| Title: | Senior Vice President | |
| Dated: | 3-24-15 |
Helion Energy, Inc.
26
LANDLORD ACKNOWLEDGEMENTS
| STATE OF WASHINGTON | ) | |
| ) | SS. | |
| COUNTY OF KING | ) |
I certify that I know or have satisfactory evidence that /s/ Brian J. Urback is the person who appeared before me. and said person acknowledged that he signed this instrument. on oath stated that he was authorized to execute the instrument and acknowledged it as the Vice Pres. of Bentall Kennedy (U.S.) G.P. LLC, a Washington limited liability company, the general partner of Bentall Kennedy (U.S.) Limited Partnership, a Washington limited partnership, the manager of CALWEST INDUSTRIAL PROPERTIES, LLC, a California limited liability company to be the free and voluntary act of such party for the uses and purposes mentioned in the instrument.
| Dated: 3-24-15 | /s/ Florence Haugen |
| (Signature) | |
| (Seal or stamp) | |
| Notary Public | |
| Title | |
| My appointment expires 8-19-18 |
| STATE OF WASHINGTON | ) | |
| ) | SS. | |
| COUNTY OF KING | ) |
I certify that I know or have satisfactory evidence that Joseph R. Shea is the person who appeared before me, and said person acknowledged that he signed this instrument, on oath stated that he was authorized to execute the instrument and acknowledged it as the Sr. Vice Pres. of Bentall Kennedy (U.S.) G.P. LLC, a Washington limited liability company, the general partner of Bentall Kennedy (U.S.) Limited Partnership, a Washington limited partnership, the manager of CALWEST INDUSTRIAL PROPERTIES, LLC, a California limited liability company to be the free and voluntary act of such party for the uses and purposes mentioned in the instrument.
| Dated: 3-24-15 | /s/ Florence Haugen |
| (Signature) | |
| (Seal or stamp) | |
| Notary Public | |
| Title | |
| My appointment expires 8-19-18 |
Helion Energy, Inc.
27
TENANT ACKNOWLEDGEMENT
| STATE OF WASHINGTON | ) | |
| ) | ss. | |
| COUNTY OF KING | ) |
I certify that I know or have satisfactory evidence that David E. Kirtley is the person who appeared before me, and said person acknowledged that he/she signed this instrument, on oath stated that he/she was authorized to execute the instrument and acknowledged it as the CEO of Helion Energy, Inc. to be the free and voluntary act of such party for the uses and purposes mentioned in the instrument.
Dated: 3-18-2015
/s/ Victor Manuel Rivera | |
| (Signature) | |
| Notary Public | |
| Title | |
| My appointment expires 6-23-2015 |
(Seal or stamp)
Helion Energy, Inc.
28
EXHIBIT A - FLOOR PLAN DEPICTING THE PREMISES
attached
to and made a part of the Lease bearing the
Lease Reference Date of March 17, 2015 between
CALWEST INDUSTRIAL PROPERTIES, LLC, a California limited liability company, as Landlord and
HELION ENERGY, INC., a Delaware corporation, as Tenant
Premises Address: Westpark, Building A, 8210 154th Avenue ND, Redmond, Washington 98052 Approximate Square Footage: 31,272 sq. ft.
Exhibit A is intended only to show the general layout of the Premises as of the beginning of the Term of the Lease. It does not in any way supersede any of Landlord’s rights set forth in Article 17 of the Lease with respect to arrangements and/or locations of public parts of the Building and changes in such arrangements and/or locations. It is not to be scaled; any measurements or distances shown should be taken as approximate.
Helion Energy, Inc.
A-1
EXHIBIT A-1—SITE PLAN
attached
to and made a part of the Lease bearing the
Lease Reference Date of March 17, 2015 between
CALWEST INDUSTRIAL PROPERTIES, LLC, a California limited liability company, as Landlord and
HELION ENERGY, INC., a Delaware corporation, as Tenant
Premises Address: Westpark, Building A, 8210 154th Avenue ND, Redmond, Washington 98052
Exhibit A-1 is intended only to show the general location of the Building and/or the project of which the Building is a part as of the beginning of the Term of the Lease. It does not in any way supersede any of Landlord’s rights set forth in Article 17 of the Lease with respect to arrangements and/or locations of public parts of the Building and changes in such arrangements and/or locations. It is not to be scaled; any measurements or distances shown should be taken as approximate.
Helion Energy, Inc.
A-1-1
EXHIBIT A-2 - LEGAL DESCRIPTION
attached
to and made a part of the Lease bearing the
Lease Reference Date of March 17, 2015 between
CALWEST INDUSTRIAL PROPERTIES, LLC, a California limited liability company, as Landlord and
HELION ENERGY, INC., a Delaware corporation, as Tenant
Lot 4 of City of Redmond short plat No. SS-85-11R, recorded under Recording No. 8912190943. said short plat being a revision of short plat recorded under Recording No. 8512260700, said short plat being a subdivision of the east half of the southwest quarter of Section 2, township 25 north, range 5 east, W.M., in King County, Washington.
Except those portions of said lots conveyed to the City of Redmond by deed recorded under Recording No. 8810070396 and 8907120649.
Helion Energy, Inc.
A-2-1
EXHIBIT B - INITIAL ALTERATIONS
attached
to and made a part of the Lease bearing the
Lease Reference Date of March 17, 2015 between
CALWEST INDUSTRIAL PROPERTIES, LLC, a California limited liability company, as Landlord and
HELION ENERGY, INC., a Delaware corporation, as Tenant
1. Tenant Alterations
A. Immediately following the delivery of the Premises by Landlord and the full and final execution and delivery of the Lease to which this Exhibit B is attached and all prepaid rental, the Security Deposit and insurance certificates required under the Lease, Tenant shall have the right to perform alterations and improvements in the Premises (the “Tenant’s Work”). Notwithstanding the foregoing, Tenant and its contractors shall not have the right to perform the Tenant’s Work in the Premises unless and until Tenant has complied with all of the terms and conditions of Article 6 of the Lease, including, without limitation, approval by Landlord of the final plans for the Tenant’s Work and the contractors to be retained by Tenant to perform such Tenant’s Work. Tenant shall be responsible for all elements of the design of Tenant’s plans (including, without limitation, compliance with law, functionality of design, the structural integrity of the design, the configuration of the Premises and the placement of Tenant’s furniture, appliances and equipment), and Landlord’s approval of Tenant’s plans shall in no event relieve Tenant of the responsibility for such design. In addition to the foregoing (but without limiting Landlord’s obligation to disburse the Allowance and/or the Space Planning Allowance in accordance with this Exhibit B), Tenant shall be solely liable for all costs and expenses associated with or otherwise caused by Tenant’s performance and installment of the Tenant’s Work (including, without limitation, any legal compliance requirements arising outside of the Premises). Landlord’s approval of the contractors to perform the Tenant’s Work shall not be unreasonably withheld, conditioned or delayed. The parties agree that Landlord’s approval of the general contractor to perform the Tenant’s Work shall not be considered to be unreasonably withheld if any such general contractor (a) does not have trade references reasonably acceptable to Landlord, (b) does not maintain insurance as required pursuant to the terms of the Lease, (c) does not have the ability to be bonded for the work in an amount of no less than one hundred fifty percent (150%) of the total estimated cost of the Tenant’s Work, (d) does not provide current financial statements reasonably acceptable to Landlord, or (e) is not licensed as a contractor in the state/municipality in which the Premises is located. Tenant acknowledges the foregoing is not intended to be an exclusive list of the reasons why Landlord may reasonably withhold its consent to a general contractor. Notwithstanding the foregoing, Landlord hereby approves Pattison General Contractors as Tenant’s general contractor for the construction of the Tenant’s Work.
B. Provided Tenant is not in default beyond any applicable notice and cure period under the Lease, Landlord agrees to contribute up to the sum of $275,125.48 (the “Allowance”) toward the cost of performing the Tenant’s Work in preparation of Tenant’s occupancy of the Premises. The Allowance may only be used for the cost of preparing design and construction documents and mechanical and electrical plans and normal and customary permitting costs for the Tenant’s Work and for hard costs in connection with the Tenant’s Work. The Allowance shall be paid to Tenant or, at Landlord’s option, to the order of the general contractor that performed the Tenant’s Work, within fourteen (14) days following receipt by Landlord of (a) receipted bills covering all labor and materials expended and used in the Tenant’s Work; (b) a sworn contractor’s affidavit from the general contractor and a request to disburse from Tenant containing an approval by Tenant of the work done; (c) full and final waivers of lien; (d) as-built plans of the Tenant’s Work; and (e) the certification of Tenant and its architect that the Tenant’s Work have been installed in a good and workmanlike manner in accordance with the approved plans, and in accordance with applicable laws, codes and ordinances; and (f) Tenant’s receipt from the appropriate governmental authorities, with respect to the Tenant’s Work performed by Landlord or its contractors in the Premises, all approvals necessary for the occupancy of the Premises. The Allowance shall be disbursed in the amount reflected on the receipted bills meeting the requirements above. Notwithstanding anything herein to the contrary, Landlord shall not be obligated to disburse any portion of the Allowance during the continuance of an uncured default under the Lease, and Landlord’s obligation to disburse shall only resume when and if such default is cured.
C. In no event shall the Allowance be used for the purchase of cabling, equipment, furniture or other items of personal property of Tenant. If Tenant does not submit a request for payment of the entire Allowance to Landlord in accordance with the provisions contained in this Exhibit B by December 30, 2015, any unused amount shall accrue to the sole benefit of Landlord, it being understood that Tenant shall not be entitled to any credit, abatement or other concession in connection therewith. Tenant shall be responsible for all applicable state sales or use taxes, if any, payable in connection with the Tenant’s Work and/or Allowance. Landlord shall be entitled to deduct from the Allowance a construction management fee for Landlord’s oversight of the Tenant’s Work in an amount equal to three percent (3%) of the total cost of the Tenant’s Work.
Helion Energy, Inc.
B-1
D. Provided Tenant is not in default after the expiration of any applicable notice and cure periods, then in addition to the Allowance, Landlord shall provide Tenant with an allowance (the “Space Planning Allowance”) in an amount not to exceed $4,690.65 (i.e. $0.15 per rentable square foot in the Premises) to be applied toward preparation of the initial space plan for the Tenant’s Work in the Premises and one (1) revision thereto (the “Space Planning Costs”). Landlord shall disburse the Space Planning Allowance, or applicable portion thereof, to Tenant within thirty (30) days after the later to occur of (A) receipt of paid invoices from Tenant with respect to Tenant’s actual Space Planning Costs, and (B) the Commencement Date. However, in no event shall Landlord have any obligation to disburse any portion of the Space Planning Allowance after December 30, 2015.
E. Tenant agrees to accept the Premises in its “as-is” condition and configuration, it being agreed that Landlord shall not be required to perform any work except for the Landlord’s Work described below or, except as provided above with respect to the Allowance and Space Planning Allowance, incur any costs in connection with the construction or demolition of any improvements in the Premises.
Landlord Work
A. Landlord, at its sole cost and expense (subject to the terms of Section B below), shall construct an elevator (the “Elevator”) in the Premises in the location depicted on Schedule I to Exhibit B attached hereto using Building standard methods, materials and finishes (the “Landlord Work”). Landlord shall enter into a direct contract for the Landlord Work with a general contractor selected by Landlord. In addition, Landlord shall have the right to select and/or approve of any subcontractors used in connection with the Landlord Work.
B. All other work and upgrades, subject to Landlord’s approval, shall be at Tenant’s sole cost and expense, plus any applicable state sales or use tax thereon, payable upon demand as additional rent. Notwithstanding anything to the contrary set forth herein, Landlord, at its sole cost and expense (except to the extent properly included in Expenses), shall be responsible for correcting any violations of applicable Regulations in effect (and as interpreted and enforced) as of the date of the Lease with respect to the Premises, to the extent that (a) the correction of any such violation is necessary for Tenant to use the Premises for general office and warehouse use in a normal and customary manner, or (b) such modifications are required by Regulations, including Title III of the Americans with Disabilities Act, in order for Tenant to obtain a building permit for the Tenant’s Work or a certificate of occupancy for Tenant’s occupancy of the Premises for general office and warehouse use or (c) Landlord’s failure to correct any such violation would impose liability upon Tenant under any Regulation. Landlord shall have the right to contest any alleged violation of Regulation in good faith, including, without limitation, the right to apply for and obtain a waiver or deferment of compliance, the right to assert any and all defenses allowed by Regulation and the right to appeal any decisions, judgments or rulings to the fullest extent permitted by Regulation. Landlord, after the exhaustion of any and all rights to appeal or contest, will make all repairs, additions, alterations or improvements necessary to comply with the terms of any final order or judgment. Notwithstanding the foregoing, Tenant, not Landlord, shall be responsible for the correction of any violations of Regulations that arise out of or in connection with any claims brought under any provision of the Americans With Disabilities Act other than Title III thereof, the specific nature of Tenant’s use of or business in the Premises (other than general office or warehouse use), the acts or omissions of Tenant or any Tenant Entities, the presence of one or more persons with a particular disability at the Premises, Tenant’s arrangement of any furniture, equipment or other property in the Premises, any repairs, alterations, additions or improvements performed by or on behalf of Tenant (including the Tenant’s Work, but other than the Landlord’s Work), any design or configuration of the Premises specifically requested by Tenant after being informed that such design or configuration may not be in strict compliance with applicable Regulation, and any changes in Regulation after the date of this Lease that are applicable to the Premises.
C. Tenant acknowledges that the Landlord Work shall be performed by Landlord in the Premises during normal business hours for the Building prior to, and may be performed subsequent to, the Commencement Date. Landlord and Tenant agree to reasonably and in good faith cooperate with each other in order to enable the Landlord Work to be performed in a timely manner and with as little inconvenience to the operation of Tenant’s business as is reasonably possible_ Any delay in the completion of the Landlord Work or inconvenience suffered by Tenant during the performance of the Landlord Work shall not delay the Commencement Date nor shall it subject Landlord to any liability for any loss or damage resulting therefrom or entitle Tenant to any credit, abatement or adjustment of rent or other sums payable under the Lease. During Landlord’s performance of the Landlord Work, Tenant shall provide unencumbered access to Landlord and its contractors to the Premises to enable Landlord to perform all or any portion of the Landlord Work, as reasonably determined by Landlord, and Tenant shall, at its sole cost and expense, immediately fallowing request by Landlord (which may be written or oral) relocate any of its personal property, furniture, fixtures and equipment from the portion of the Premises identified by Landlord as such space is needed to enable Landlord to perform the Landlord Work (as determined by Landlord).
Helion Energy, Inc.
B-2
Miscellaneous
This Exhibit B shall not be deemed applicable to any additional space added to the Premises at any time or from time to time, whether by any options under the Lease or otherwise, or to any portion of the original Premises or any additions to the Premises in the event of a renewal or extension of the original Term of the Lease, whether by any options under the Lease or otherwise, unless expressly so provided in the Lease or any amendment or supplement to the Lease.
[REMAINDER OF PAGE INTENTIONALLY LEFT BLANK]
Helion Energy, Inc.
B-3
Schedule 1

Helion Energy, Inc.
B-4
EXHIBIT C — COMMENCEMENT DATE MEMORANDUM
attached
to and made a part of the Lease bearing the
Lease Reference Date of March 17, 2015 between
CALWEST INDUSTRIAL PROPERTIES, LLC, a California limited liability company, as Landlord and
HELION ENERGY, INC., a Delaware corporation, as Tenant
COMMENCEMENT DATE MEMORANDUM
THIS
MEMORANDUM, made as of____________ , 201___, by and between CALWEST INDUSTRIAL
PROPERTIES, LLC, a California limited liability company (“Landlord”) and HELION ENERGY, INC., a Delaware
corporation (“Tenant”).
Recitals:
| A. | Landlord and Tenant are parties to that certain Lease, dated for reference March 17, 2015 (the “Lease”) for certain premises (the “Premises”) consisting of approximately 31,272 square feet at the building commonly known as Westpark, Building A. |
| B. | Tenant is in possession of the Premises and the Term of the Lease has commenced. |
| C. | Landlord and Tenant desire to enter into this Memorandum confirming the Commencement Date, the Termination Date and other matters under the Lease. |
NOW, THEREFORE, Landlord and Tenant agree as follows:
| 1. | The actual Commencement Date is _______ |
| 2. | The actual Termination Date is ________ |
| 3. | The schedule of the Annual Rent and the Monthly Installment of Rent set forth on the Reference Pages is deleted in its entirety, and the-following is substituted therefor: |
[insert rent schedule]
| 4. | Capitalized terms not defined herein shall have the same meaning as set forth in the Lease. |
[SIGNATURES ON FOLLOWING PAGE]
Helion Energy, Inc.
C-1
IN WITNESS WHEREOF, the parties hereto have caused this Agreement to be executed as of the date and year first above written.
| LANDLORD: | TENANT: | ||
| CALWEST INDUSTRIAL PROPERTIES, LLC, | HELION ENERGY, INC., | ||
| a California limited liability company | a Delaware corporation | ||
| By: | Bentall Kennedy (U.S.) Limited Partnership, | ||
| a Washington limited partnership, | |||
| its Investment Manager | |||
| By: | Bentall Kennedy (U.S.) G.P. LLC, | ||
| a Washington limited liability company, | |||
| its General Partner |
| By: | By: | /s/ David Kirtley | ||
| Name: | Name: | Dr. David Kirtley | ||
| Title: | Title: | CEO Helion Energy Inc. | ||
| Dated: | 3/18/2015 |
| By: | ||
| Name: | ||
| Title: | ||
| Dated: |
Helion Energy, Inc.
C-2
EXHIBIT D - RULES AND REGULATIONS
attached
to and made a part of Lease bearing the
Lease Reference Date of March 17, 2015 between
CALWEST INDUSTRIAL PROPERTIES, LLC, a California limited liability company, as Landlord and
HELION ENERGY, INC., a Delaware corporation, as Tenant
1. No sign, placard, picture, advertisement, name or notice (collectively referred to as “Signs”) shall be installed or displayed on any part of the outside of the Building without the prior written consent of the Landlord which consent shall be in Landlord’s sole discretion. Landlord, at Landlord’s sole cost and expense, shall provide Tenant with Building standard suite signage. All approved Signs shall be printed, painted, affixed or inscribed at Tenant’s expense by a person or vendor approved by Landlord and shall be removed by Tenant at Tenant’s expense upon vacating the Premises. Landlord shall have the right to remove any Sign installed or displayed in violation of this rule at Tenant’s expense and without notice.
2. If Landlord objects in writing to any curtains, blinds, shades or screens attached to or hung in or used in connection with any window or door of the Premises or Building, Tenant shall immediately discontinue such use. No awning shall be permitted on any part of the Premises. Tenant shall not place anything or allow anything to be placed against or near any glass partitions or doors or windows which may appear unsightly, in the opinion of Landlord, from outside the Premises.
3. Tenant shall not alter any lock or other access device or install a new or additional lock or access device or bolt on any door of its Premises without the prior written consent of Landlord. Tenant, upon the termination of its tenancy, shall deliver to Landlord the keys or other means of access to all doors.
4. If Tenant requires telephone, data, burglar alarm or similar service, the cost of purchasing, installing and maintaining such service shall be borne solely by Tenant. No boring or cutting for wires will be allowed without the prior written consent of Landlord. Landlord shall direct electricians as to where and how telephone, data, and electrical wires are to be introduced or installed. The location of burglar alarms, telephones, call boxes or other office equipment affixed to the Premises shall be subject to the prior written approval of Landlord.
5. Tenant shall not place a load upon any floor of its Premises, including mezzanine area, if any, which exceeds the load per square foot that such floor was designed to carry and that is allowed by law. Heavy objects shall stand on such platforms as determined by Landlord to be necessary to properly distribute the weight. Landlord will not be responsible for loss of or damage to any such equipment or other property from any cause, and all damage done to the Building by maintaining or moving such equipment or other property shall be repaired at the expense of Tenant.
6. Tenant shall not install any radio or television antenna, satellite dish, loudspeaker or other device on the roof or exterior walls of the Building without Landlord’s prior written consent which consent shall be in Landlord’s sole discretion.
7. Tenant shall not mark, drive nails, screw or drill into the partitions, woodwork, plaster or drywall (except for pictures and general office uses) or in any way deface the Premises or any part thereof. Tenant shall not affix any floor covering to the floor of the Premises or paint or seal any floors in any manner except as approved by Landlord. Tenant shall repair any damage resulting from noncompliance with this rule.
8. No cooking shall be done or permitted on the Premises, except that Underwriters’ Laboratory approved microwave ovens or equipment for brewing coffee, tea, hot chocolate and similar beverages shall be permitted, provided that such equipment and use is in accordance with all applicable Regulations.
9. Tenant shall not use any hand trucks except those equipped with the rubber tires and side guards, and may use such other material-handling equipment as Landlord may approve, which approval shall not be unreasonably withheld, conditioned or delayed. Tenant shall not bring any other vehicles of any kind into the Building. Forklifts which operate on asphalt areas shall only use tires that do not damage the asphalt.
10. Tenant shall not use the name of the Building or any photograph or other likeness of the Building in connection with or in promoting or advertising Tenant’s business except that Tenant may include the Building name in Tenant’s address. Landlord shall have the right, exercisable without notice and without liability to any tenant, to change the name and address of the Building.
Helion Energy, Inc.
D-1
11. All trash and refuse shall be contained in suitable receptacles at locations approved by Landlord. Tenant shall not place in the trash receptacles any personal trash or material that cannot be disposed of in the ordinary and customary manner of removing such trash without violation of any law or ordinance governing such disposal.
12. Tenant shall comply with all safety, fire protection and evacuation procedures and regulations established by Landlord or any governing authority.
13. Tenant assumes all responsibility for securing and protecting its Premises and its contents including keeping doors locked and other means of entry to the Premises closed.
14. Tenant shall not use any method of heating or air conditioning other than that supplied by Landlord without Landlord’s prior written consent. Tenant shall not permit space heaters in the Premises.
15. No person shall go on the roof without Landlord’s permission.
16. Tenant shall not permit any animals (including birds and other fowl), reptiles, amphibians or fish (including fish tanks), other than service animals, e.g. seeing-eye dogs, to be brought or kept in or about the Premises or any common area of the Building.
17. Tenant shall not permit any motor vehicles to be washed or mechanical work or maintenance of motor vehicles to be performed on any portion. of the Premises or parking lot without Landlord prior written approval, which may be withheld in Landlord’s sole but reasonable discretion.
18. These Rules and Regulations are in addition to, and shall not be construed to in any way modify or amend, in whole or in part, the terms, covenants, agreements and conditions of any lease of any premises in the Building. Landlord may waive any one or more of these Rules and Regulations for the benefit of any tenant or tenants, and any such waiver by Landlord shall not be construed as a waiver of such Rules and Regulations for any or all tenants.
19. Landlord reserves the right to make such other and reasonable rules and regulations as in its judgment may from time to time be needed for safety and security, for care and cleanliness of the Building and for the preservation of good order in and about the Building. Tenant agrees to abide by all such rules and regulations herein stated and any additional rules and regulations which are adopted; provided that in the event of a conflict between any rules and regulations and the other terms and conditions of this Lease, the terms of the Lease shall control. Tenant shall be responsible for the observance of all of the foregoing rules by Tenant’s employees, agents, clients, customers, invitees and guests.
20. Any toilet rooms, toilets, urinals, wash bowls and other apparatus shall not be used for any purpose other than that for which they were constructed and no foreign substance of any kind whatsoever shall be thrown into them. The expense of any breakage, stoppage or damage resulting from the violation of this rule shall be borne by the Tenant who, or whose employees or invitees, shall have caused it.
21. Tenant shall not permit smoking or carrying of lighted cigarettes or cigars in areas reasonably designated by Landlord or any applicable governmental agencies as non-smoking areas.
22. Any directory of the Building or project of which the Building is a part (“Project Area”), if provided, will be exclusively for the display of the name and location of tenants only and Landlord reserves the right to charge for the use thereof and to exclude any other names.
21 Canvassing, soliciting, distribution of handbills or any other written material in the Building or Project Area is prohibited and each tenant shall cooperate to prevent the same. No tenant shall solicit business from other tenants or permit the sale of any goods or merchandise in the Building or Project Area without the written consent of Landlord.
24. Any equipment belonging to Tenant which causes noise or vibration that may be transmitted to the structure of the Building or to any space therein to such a degree as to be objectionable to Landlord or to any tenants in the Building shall be placed and maintained by Tenant, at Tenant’s expense, on vibration eliminators or other devices sufficient to eliminate the noise or vibration.
Helion Energy, Inc.
D-2
25. Tenant shall reasonably comply with Landlord’s recycle policy for the Building, including, without limitation, Tenant shall sort and separate its trash into separate recycling containers as required by law or which may be furnished by Landlord and located in the Premises. Tenant shall comply with all rules and regulations regarding the collection, sorting, separation, and recycling of garbage, waste products, trash and other refuse at the Building. Landlord reserves the right to refuse to collect or accept from Tenant any trash that is not separated and sorted as required by law or pursuant to Landlord’s recycling policy, and to require Tenant to arrange for such collection at Tenant’s cost, utilizing a contractor reasonably satisfactory to Landlord.
26. Tenant acknowledges that the Building, at Landlord’s option, may be operated in accordance with standards for the certification of environmentally sustainable, high performance buildings or aspects of their performance, including the U.S. EPA’s Energy Star® rating and, U.S. Green Building Council’s Leadership in Energy and Environmental Design program’s standards, as the same are amended or replaced from time to time and similar “green building” standards (hereinafter collectively referred to as “Green Building Standards”). To support Landlord’s sustainability practices, Tenant is encouraged to use reasonable efforts to use proven energy, water carbon reduction, and other sustainable measures, such as for example using energy efficient bulbs in task lighting, installing lighting controls, such as automatic sensors; turning off lights at the end of the work day; and utilizing water filtration systems to avoid the use of bottled water.
27. Driveways, sidewalks, halls, passages, exits, entrances and stairways (“Access Areas”) shall not be obstructed by tenants or used by tenants for any purpose other than for ingress to and egress from their respective premises. Access areas are not for the use of the general public and Landlord shall in all cases retain the right to control and prevent access thereto by all persons whose presence, in the judgment of Landlord, shall be prejudicial to the safety, character, reputation and interests of the Building or its tenants.
28. Landlord reserves the right to designate the use of parking areas and spaces. Tenant shall not park in visitor, reserved, or unauthorized parking areas. Tenant and Tenant’s guests shall park between designated parking lines only and shall not park motor vehicles in those areas designated by Landlord for loading and unloading. Vehicles in violation of the above shall be subject to being towed at the vehicle owner’s expense. Vehicles parked overnight without prior written consent of the Landlord shall be deemed abandoned and shall be subject to being towed at vehicle owner’s expense. Tenant will from time to time, upon the request of Landlord, supply Landlord with a list of license plate numbers of vehicles owned or operated by its employees or agents.
29. No trucks, tractors or similar vehicles can be parked anywhere other than in Tenant’s own truck dock area. Tractor-trailers which must be unhooked or parked with dolly wheels beyond the concrete loading areas must use steel plates or wood blocks under the dolly wheels to prevent damage to the asphalt paving surfaces. No parking or storing of such trailers will be permitted in the parking areas or on streets adjacent thereto.
30. During periods of loading and unloading, Tenant shall not unreasonably interfere with traffic flow and loading and unloading areas of other tenants. All products, materials or goods must be stored within the Tenant’s Premises and not in any exterior areas, including, but not limited to, exterior dock platforms, against the exterior of the Building, parking areas and driveway areas. Tenant agrees to keep the exterior of the Premises clean and free of nails, wood, pallets, packing materials, barrels and any other debris produced from their operation.
Helion Energy, Inc.
D-3
EXHIBIT E - TENANT SIGN CRITERIA
attached
to and made a part of the Lease bearing the
Lease Reference Date of March 17, 2015 between
CALWEST INDUSTRIAL PROPERTIES, LLC, a California limited liability company, as Landlord and
HELION ENERGY, INC., a Delaware corporation, as Tenant
The following signage criteria (these “Criteria”) have been established for the purpose of allowing sufficient business identification for businesses locating within the project of which the building is a part (the “Project”). The criteria have also been established for the purpose of maintaining the overall appearance by providing maximum continuity with the environment and an architectural integration with the Project. The signage guidelines are in accordance with the Redmond Community Development Code, Section 20c.20.230. No deviation from these criteria will be permitted without Landlord’s prior written approval. Landlord requires strict compliance with these Criteria and shall strictly enforce the same. Any sign installed without the prior written approval of the Landlord shall, at Landlord’s option, be removed at Tenant’s sole cost and expenses or brought into conformance the Tenant’s sole cost and expense. The following Criteria are guidelines for installation of signage at the Project but shall in no event be deemed express consent to such installation by Landlord unless expressly stated herein.
REQUIREMENTS
| A. | Landlord’s Cost and Criteria of Signage —Premises Identification Signage |
| 1. | Landlord shall provide one the following signage options at no cost to Tenant |
| a) | Tenant’s name and suite number on Premises front door only on those suites whose primary entrance is off a common corridor or lobby. |
| b) | Tenant’s suite number on front entry transom glass where Premises entry is visible from the exterior of the Building. |
Method of attachment, location, color and size shall be in standard conformance as determined by Landlord and is subject to Landlord’s prior approval.
| B | Tenant’s Cost and Criteria of Signage — Exterior Signage |
| 1. | Tenant shall have one (I) exterior sign for the Premises. No additional Tenant exterior signage shall be allowed on the face of the Building. |
| 2. | No signage is allowed except for Tenant’s company name (as it appears on the Lease). |
| 3. | Tenant shall be responsible for coordinating the construction, installation and payment of the Building-mounted company signs through Landlord’s approved vendor. |
| 4. | Tenant shall submit a copy of exterior Building signage layout to Landlord for final approval prior to allowing vendor to proceed with fabrication and/or installation. |
| 5. | All signs must be approved in writing by Landlord, including both interior and exterior signage. |
| 6. | Upon Lease expiration, Tenant shall be responsible for all costs related to the removal of their signage and the restoration of the sign band area including sanding adhesive, patching and painting, all to Landlord’s reasonable satisfaction. |
| C. | Building Standard Specifications |
The following specifications vary depending on the type of building structure, the floor level, and the location of the leased premises in the building.
In accordance with the previously established and adopted sign program for The Project, the following specifications outline more specifically the nature of the intended signage.
| 1. | Tenants’ names will be limited to the upper facade of the individual tenant Premises. First-floor-only tenants may locate signage over main entry doors where possible and with Landlord’s written approval. Tenants on the second floor and 2-story tenants shall locate signage on the panel designated by Landlord. |
Helion Energy, Inc.
E-1
| 2. | The building-mounted company signage shall consist of dimensional foam letters, a maximum of 2” deep and no larger than 12”, painted a uniform color, either black or a color to match the building trim as may be changed from time to time by Landlord. Application is limited to adhesives, no drilling into building facade. The letter type style shall be of Tenant’s choice. Maximum sign coverage may vary depending on the building, but in general (and unless otherwise approved in writing by Landlord) will be no more than 20 or 25 square feet determined on a case-by-case basis dependent upon Tenant’s location within the subject building and the available frontage. Tenant signage may contain no more than two lines of information and shall consist of Tenant name only provided that the total designated sign area is not exceeded and the number of rows of information and presents a professional appearance. All signage must be submitted to Landlord for Landlord’s approval. |
| 3. | Subject to Landlord’s prior written approval, separate logos may be allowed and shall not exceed 24” X 24”. Approved logos will be included in the designated square feet allowed in signage area as indicated in item I (d) of this Section. The building type and location in the Project determines the specific parameters of the sign. |
| D. | Window Graphics |
| 1. | The signs will be located on the window closest to the front door of the Premises. The copy color shall be white; logo style and color to be approved by Landlord and City of Redmond if applicable. |
| 2 | The style, color and size of the individual tenant company’s name shall be standard and in conformance the Project standards and subject to Landlord’s approval. Landlord reserves the right to modify window signage design based on Tenant’s corporate type style and/or format. |
| 3. | No electrical or audible signs will be permitted except those which presently exist in the Project or which may be required by the 2003 American National Standard, ICC/ANSI Al 17.1-2003. |
| 4. | Except as provided herein, no advertising placards, banners, pennants, names, insignia trademarks, “sandwich boards” or other descriptive material shall be affixed or maintained upon the Building or Project glass, exterior walls, landscaped area, street, or parking areas. |
The following is an example of a standard layout for window identification graphics for the Project. Note: the example is a flush-left layout. A tenant’s layout may not be flush left depending on the position of the subject premises window.
EXTERIOR BUILDING SIGNAGE:
The following is an example of a standard layout for exterior building signage on buildings with two or more floors.
The following is an example of a standard layout for exterior building signage on one story buildings.
Helion Energy, Inc.
E-2
WINDOW SIGNAGE:
The following is an example of a standard layout for window identification graphics for the Project.
NOTE: the example is a flush-left layout. A tenant’s layout may not be flush left depending on the position of the subject premises window.
IS LOGO CAMERA READY ARTWORK PROVIDED? YES ☐ NO ☐
| ● | LOGO SYMBOL IN COLOR, ALL OTHER COPY MUST BE IN WHITE |
| ● | IF NO ARTWORK PROVIDED, HELVETICA MEDIUM TYPE WILL BE USED |
| ● | LETTER/COPY SIZE SHALL NOT EXCEED 3.5” AND SHALL NOT EXCEED TWO (2) LINES |
Helion Energy, Inc.
E-3
EXHIBIT F - HAZARDOUS MATERIALS Q1UESTI O NNA IR E
attached to and made a part of the Lease bearing the
Lease Reference Date of March 17, 2015 between
CALWEST INDUSTRIAL PROPERTIES, LLC, a California limited liability company, as Landlord and
HELION ENERGY, INC., a Delaware corporation, as Tenant
This questionnaire is designed to solicit information regarding Tenant’s proposed use, generation, treatment, storage, transfer or disposal of hazardous or toxic materials, substances or wastes. If this questionnaire is attached to or provided in connection with a lease, the reference herein to any such items shall include all items defined as “Hazardous Materials,” “Hazardous Substances,” “Hazardous Wastes,” “Toxic Materials,” “Toxic Substances, “Toxic Wastes,” or such similar definitions contained in such lease. Please complete the questionnaire and return it to Landlord for evaluation. If your use of materials or substances, or generation of wastes is considered to be significant, further information may be requested regarding your plans for hazardous and toxic materials management. Submission to Landlord of this Hazardous Materials Questionnaire or Landlord’s request for additional information shall not deemed consent by Landlord to Tenant’s use of the materials disclosed herein. Your cooperation in this matter is appreciated. If you have any questions, do not hesitate to call us for assistance.
| 1. | PROPOSED TENANT |
| Name (Corporation, Individual, Corporate or Individual DBA, or Public Agency): Helion Energy Inc. | ||
| Standard Industrial Classification Code (SIC): 8733 Noncommercial Research Organizations | ||
| Street Address: | 8551 154th Ave NE | |
| City, State, Zip Code: | Redmond, WA 98103 | |
| Contact Person & Title: | Dr. David Kirtley, CEO | |
| Telephone Number | (425) 332-7463 | |
| Facsimile Number: | (425) 332-7463 | |
| 2. | LOCATION AND ADDRESS OF PROPOSED LEASE |
| Street Address: | ||
| City, State, Zip Code: | 8210 154th Avenue NE | |
| Bordering Streets: | 154th Ave NE | |
| Streets to which Premises has Access: 154th Ave NE | ||
| 3. | DESCRIPTION OF PREMISES |
| Floor Area: | Approximately 31,272 sq. ft.. comprised of 5,385 so. ft. of office space on the 1st floor. 10.657 sq. ft. of office space on the 2nd floor and 15,229 so. ft. of warehouse space |
| Number of Parking Spaces: | |
| Date of Original Construction: | |
| Past Uses of Premises: | |
| Dates and Descriptions of Significant Additions, Alterations or Improvements: |
Helion Energy, Inc.
F-1
| Proposed Additions, Alterations or Improvements, if any: |
| 4. | DESCRIPTION OF PROPOSED PREMISES USE |
Describe proposed use and operation of Premises including (i) services to be performed. (ii) nature and types of manufacturing or assembly processes, if any, and (iii) the materials or products to be stored at the Premises.
Helion Energy. Inc. will be conducting, research and development on electronics in support of renewable energy. This R&D and engineering will utilize typical laboratory and industrial electronics and chemicals associated with electronics R&D. No manufacturing, assembly. or products will be developed on the premises. A list of typical hazardous chemicals and quantities is given below.
Will the operation of your business at the Premises involve the use, generation, treatment, storage, transfer or disposal of hazardous wastes or materials? Do they now? Yes ☐ No ☒ If the answer is “yes,” or if your SIC code number is between 2000 to 4000. please complete Section S.
| 5. | PERMIT DISCLOSURE |
Does or will the operation of any facet of your business at the Premises require any permits, licenses or plan approvals from any of the following agencies?
| U.S. Environmental Protection Agency | Yes ☐ | No ☒ | |
| City or County Sanitation District | Yes ☐ | No ☒ | |
| State Department of Health Services | Yes ☐ | No ☒ | |
| U.S. Nuclear Regulatory Commission | Yes ☐ | No ☒ | |
| Air Quality Management District | Yes ☐ | No ☒ | |
| Bureau of Alcohol, Firearms and Tobacco | Yes ☐ | No ☒ | |
| City or County Fire Department | Yes ☒ | No ☐ | |
| Regional Water Quality Control Board | Yes ☐ | No ☒ | |
| Other Governmental Agencies (if yes, | Yes ☐ | No ☐ | |
| identify:________________________) |
lithe answer to any of the above is “yes,” please indicate permit or license numbers, issuing agency and expiration date or renewal date, if applicable.
We typically and expect to require a Redmond Fire Department permit for compressed and flammable gases. Through previous organizations and businesses in Redmond. the executive team has a close relationship with the RFD and have been permitted every year since 1993.
If your answer to any of the above is “yes,” please complete Sections 6 and 7.
Helion Energy, Inc.
F-2
| 5. | HAZARDOUS MATERIALS DISCLOSURE |
Will any hazardous or toxic materials or substances be stored on the Premises? Yes ☒ No☐ If the answer is “yes,” please describe the materials or substances to be stored, the quantities thereof and the proposed method of storage of the same (i.e.. drums, aboveground or underground storage tanks, cylinders, other), and whether the material is a Solid (S), Liquid (L) or Gas (G):
Additional Sheets Attached.
Is any modification of the Premises improvements required or planned to mitigate the release of toxic or hazardous materials substance or wastes into the environment? Yes☐ No ☒ If the answer is “yes,” please describe the proposed Premises modifications:
| 6. | HAZARDOUS WASTE DISCLOSURE |
Will any hazardous waste, including recyclable waste, be generated by the operation of your business at the Premises? Yes ☐ No ☒
If the answer is “yes,” please list the hazardous waste which is expected to be generated (or potentially will be generated) at the Premises. its hazard class and volume/frequency of generation on a monthly basis.
| Waste Name | Hazard Class | Volume/Month | Maximum
Period of Premises Storage |
|||||
Attach additional sheets if necessary_
If the answer is “yes,” please also indicate if any such wastes are to be stored within the Premises and the proposed method of storage (Le., drums, aboveground or underground storage tanks, cylinders, other).
| Waste Name | Storage Method | |||
Attach additional sheets if necessary.
If the answer is “yes,” please also describe the method(s) of disposal for each waste. Indicate where disposal will take place including the methods, equipment and companies to be used to transport the waste:
| N/A | |
Helion Energy, Inc.
F-3
Is any treatment or processing of hazardous wastes to be conducted at the Premises? Yes ☐ No ☒ If the answer is“yes,” please describe proposed treatment/processing methods:
| N/A | |
Which agencies are responsible for monitoring and evaluating compliance with respect to the storage and disposal of hazardous materials or wastes at or from the Premises? (Please list all agencies):
| N/A | |
Have there been any agency enforcement actions regarding Tenant (or any affiliate thereof), or any existing Tenant’s (or any affiliate’s) facilities, or any past, pending or outstanding administrative orders or consent decrees with respect to Tenant or any affiliate thereof? Yes ☐ No ☒ If the answer is “yes,” have there been any continuing compliance obligations imposed on Tenant or its affiliates as a result of the decrees or orders? Yes ☐ No ☐ If the answer is “yes,” please describe:
| N/A | |
Has Tenant or any of its affiliates been the recipient of requests for information, notice and demand letters, cleanup and abatement orders, or cease and desist orders or other administrative inquiries? Yes ☐ No ☒ If the answer is “yes,” please describe:
| N/A | |
Are there any pending citizen lawsuits, or have any notices of violations been provided to Tenant or its affiliates or with respect to any existing facilities pursuant to the citizens suit provisions of any statute? Yes ☐ No ☒ If the answer is “yes,” please describe:
| N/A | |
Have there been any previous lawsuits against the company regarding environmental concerns? Yes ☐ No ☒ If the answer is “yes,” please describe how these lawsuits were resolved:
| N/A | |
Helion Energy, Inc.
F-4
Has an environmental audit ever been conducted at any of your company’s existing facilities? Yes ☐ No ☒ If the answer is “yes,” please describe:
Does your company carry environmental impairment insurance? Yes ☐ No ☒ If the answer is “yes.” what is the name of the carrier and what are the effective periods and monetary limits of such coverage?
| 6. | EQUIPMENT LOCATED OR TO BE LOCATED AT THE PREMISES |
Is (or will there be) any electrical transformer or other equipment containing polychlorinated biphenyls located at the Premises? Yes ☐ No ☒ If the answer is “yes,” please specify the size, number and location (or proposed location):
| N/A | |
Is (or will there be) any tank for storage of a petroleum product located at the Premises? Yes ☐ No ☒ If the answer is “yes,” please specify capacity and contents of tank; permits, licenses and/or approvals received or to be received therefor and any spill prevention control or conformance plan to be taken in connection therewith:
| N/A | |
| 7. | ONGOING ACTIVITIES (APPLICABLE TO TENANTS IN POSSESSION) |
Has any hazardous material, substance or waste spilled, leaked, discharged leached, escaped or otherwise been released into the environment at the Premises? Yes ☐ No ☒ If the answer is “yes,” please describe including (i) the date and duration of each such release, (ii) the material, substance or waste released, (iii) the extent of the spread of such release into or onto the air, soil and/or water, (iv) any action to clean up the release, (v) any reports or notifications made of filed with any federal, state, or local agency, or any quasi-governmental agency (please provide copies of such reports or notifications) and (vi) describe any legal, administrative or other action taken by any of the foregoing agencies or by any other person as a result of the release:
| N/A | |
Helion Energy, Inc.
F-5
This Hazardous Materials Questionnaire is certified as being true and accurate and has been completed by the party whose signature appears below on behalf of Tenant as of the date set forth below.
| DATED: | 3/18/2015 |
| Signature | /s/ David Kirtley | ||
| Print Name | Dr. David Kirtley | ||
| Title | CEO, Helion Energy Inc. |
Helion Energy, Inc.
F-6
| Material | Quantity | Storage | Monthly Quantity | Period | Permit Required | |||||
| Alcohol-based products (isopropanol, ethanol, acetone, windex, etc) (L) | 5 Gallons | Flammables Cabinet | 5 Gallons | 1 Year | ||||||
| Interior and exterior latex paint (L) | 20 Gal or less | Warehouse | 20 Gal. or Less | 1 Year | N | |||||
| Spray paint (G) | 6 Cans | Flammables Cabinet | 6 Cans | 1 Year | N | |||||
| General compressed gases (air, etc) (G) | 1000 L | Compressed Gas Storage | 100 L or less | 3 Years | N | |||||
| Compressed inert gases (nitrogen, etc) (G) | 4000 L | Compressed Gas Storage | 4000 L | 3 Years | Y | |||||
| Compressed flammable gasses (hydrogen, etc) (G) | 2000 L | Compressed Gas Storage | 2000 L | 3 Years | Y | |||||
| Radiologic materials (such as exit signs, smoke detectors, scientific detectors) (S) | Below OSHA, etc reporting limits | Warehouse, etc. | Below OSHA, etc reporting limits | 3 Years | N | |||||
| Insulating oils (such as diala or caster oil) (L) | 100 Gal | Warehouse | 100 Gal | 5 Years | N | |||||
| Mechanical/pump oils (L) | 55 Gal. | Warehouse Acids | 55 Gal. | 5 Years | N | |||||
| Acids (Etching solvents) (L) | 16 oz. | Cabinet | 16 oz. | 5 Years | N | |||||
| Leak detector fluids (L) | 16 oz. | Warehouse | 16 oz. | 3 Years | N | |||||
| Electronics fluids (Rosin, flux, thermal compounds) (L) | 16 oz. | Flammables Cabinet | 16 oz. | 3 Years | N | |||||
| Epoxies (L) | 128 oz. | Flammables Cabinet | 128 oz. | 1 Years | N | |||||
| Enamel coatings (L) | 64 oz. | Warehouse | 64 oz. | 5 Years | N | |||||
| General solvents (L) | 128 oz. | Flammables Cabinet | 128 oz. | 1 Years | N | |||||
| Medical supplies (peroxide, isopropyl) (L) | 64 oz. | Warehouse and Office | 64 oz. | 3 Years | N | |||||
| General laboratory supplies (carpet cleaner, paint remover, lens cleaners) (L) | 5 Gal. | Warehouse | 5 Gal. | 5 Years | N | |||||
| Printer toner and supplies (S) | 64 oz. | Office | 64 oz. | 1 Year | N | |||||
| Liquid or spray lubricant (WD-40, machine oil, cutting fluid, PTE spray lubricant) (L, G) | 64 oz. | Flammables Cabinet | 64 oz. | 5 Years | N | |||||
| Greases (vacuum grease, machine grease, silicone greases) (S) | 64 oz. | Warehouse | 64 oz. | 5 Years | N | |||||
| Adhesives (single, multiple-part tube adhesives) (L) | 128 oz. | Flammables Cabinet | 128 oz. | 1 Years | N |
Helion Energy, Inc.
F-7
FIRST AMENDMENT TO LEASE
This First Amendment to Lease (this “First Amendment”) is made and entered into by and between KORE WESTPARK LLC, a Delaware limited liability company (“Landlord”), and HELION ENERGY, INC., a Delaware corporation (“Tenant”), effective on and as of the date on which the Landlord executes this First Amendment as set forth on the signature page hereto (the “Effective Date”).
WITNESSETH:
WHEREAS, Landlord and Tenant are parties to that certain Lease dated March 17, 2015, originally entered into by and between Calwest Industrial Properties, LLC, a California limited liability company (the “Original Landlord”), as landlord, and Tenant, as tenant (the “Lease”), pursuant to which Tenant currently leases certain space designated as Suite 100 and Suite 200, being further depicted on Exhibit “A” attached hereto, and having an address of 8210 154th Avenue NE, Redmond, Washington 98052 (the “Existing Premises”), located in Building A (the “Building”), in the fourteen (14) building project commonly known as the Westpark Business Park (the “Building Complex”), in the twenty-one (21) building project comprised of the following: (i) the Building Complex (Westpark Business Park), (ii) the two (2) building office and industrial building complex, commonly known as Redmond Center Court, and (iii) the five (5) building office and industrial building complex commonly known as Pacific Business and Technology Center (collectively referred to as the “Project”); and
WHEREAS, Landlord has succeeded to all of the rights, title and interests of the “Landlord” under the Lease; and
WHEREAS, Landlord and Tenant desire to amend the terms of the Lease to, among other things, extend the Term of the Lease and expand the size of the Existing Premises, all as more particularly set forth herein below;
NOW, THEREFORE, pursuant to the foregoing, and in consideration of the mutual covenants and agreements contained herein and in the Lease, and other good and valuable consideration paid by each of Landlord and Tenant to the other, the receipt and sufficiency of which are hereby acknowledged, Landlord and Tenant agree that the Lease is hereby ratified and amended as follows:
1. Defined Terms. All capitalized terms used herein shall have the same meaning as defined in the Lease, unless otherwise defined in this First Amendment.
2. Re-Measurement. The Project, Building Complex, Building and the Existing Premises have been re-measured, and Landlord and Tenant hereby agree that as a result of such re-measurement, and notwithstanding anything to the contrary in the Lease, as of the Effective Date of this First Amendment, (i) the Project shall contain 782,185 rentable square feet of space; (ii) the Building Complex shall contain 583,817 rentable square feet of space in the Project; (iii) the Building shall contain 54,560 rentable square feet of space in the Building Complex; and (iv) the Existing Premises shall contain a total of 31,372 rentable square feet (being comprised of 16,072 rentable square feet of office space (5,397 rentable square feet in Suite 100 and 10,675 rentable square feet in Suite 200) and 15,300 rentable square feet of warehouse space) in the Building; provided, however, in no event shall such re-measurement affect the parties respective obligations under the Lease with respect to any period prior to the First Amendment Commencement Date (as hereinafter defined).
3. Extension of Term. The Term of the Lease (currently scheduled to expire on July 31, 2020) is hereby extended for an additional period of twenty-four (24) months, commencing on August 1, 2020 and continuing through and expiring on July 31, 2022 (the “First Amendment Termination Date”), upon and subject to all of the existing terms of the Lease, as amended by this First Amendment.
4. Expansion of Existing Premises. Effective on and as of May 1, 2020 (the “First Amendment Commencement Date”) and continuing through and expiring on the First Amendment Termination Date (July 31, 2022) (with the period from the First Amendment Commencement Date through the First Amendment Termination Date being referred to herein as the “First Amendment Term”), the Existing Premises shall be expanded to include that certain 7,375 rentable square feet (being comprised of 3,720 rentable square feet of office space and 3,655 rentable square feet of warehouse space), designated as Suite 120 in the Building, being further depicted on Exhibit “B” attached hereto (the “Suite 120 Premises”), upon and subject to all the existing terms of the Lease, except as hereinafter provided. As of the First Amendment Commencement Date, the Existing Premises and the Suite 120 Premises shall contain a total of 38,747 rentable square feet (being comprised of 19,792 rentable square feet of office space and 18,955 rentable square feet of warehouse space), designated as Suite 100, Suite 120 and Suite 200 in the Building (the Existing Premises and the Suite 120 Premises being collectively referred to herein as the “First Amendment Premises”). From and after the First Amendment Commencement Date, references in the Lease to the “Premises” (as such term is defined in the Lease) shall be construed to mean the First Amendment Premises.
5. Monthly Installments of Rent. Tenant shall continue to pay Annual Rent and Monthly Installments of Rent in accordance with the existing terms of the Lease applicable thereto; provided, however, commencing on the First Amendment Commencement Date (May 1, 2020) and continuing through the First Amendment Termination Date (July 31, 2022), the Annual Rent and Monthly Installments of Rent for the First Amendment Premises (being the Existing Premises and the Suite 120 Premises, combined) shall be amended to be due and payable in monthly installments as follows:
(a) Suite 120 Premises. Commencing on and as of the First Amendment Commencement Date (May 1, 2020), and continuing through the expiration of the First Amendment Term (ending on July 31, 2022), Tenant shall pay Annual Rent and Monthly Installments of Rent for the Suite 120 Premises only as set forth below:
| Period |
Approximate rate/rsf/annum for office space (3,720 rsf) |
Approximate rate/rsf/annum for warehouse space (3,655 rsf) |
Total Monthly Installments of Rent (office space and warehouse space) | |
| From | Through | |||
| 05/01/2020 | 04/30/2021 | $24.25, plus NNN ($7,517.50/month) |
$11.00, plus NNN ($3,350.42/month) |
$10,867.92, plus NNN |
2
| Period |
Approximate rate/rsf/annum for office space (3,720 rsf) |
Approximate rate/rsf/annum for warehouse space (3,655 rsf) |
Total Monthly Installments of Rent (office space and warehouse space) | |
| From | Through | |||
| 05/01/2021 | 04/30/2022 | $24.98, plus NNN ($7,743.80/month) |
$11.33, plus NNN ($3,450.93/month) |
$11,194.73, plus NNN |
| 05/01/2023 | 07/31/2022 | $25.73, plus NNN ($7,976.30/month) |
$11.67, plus NNN ($3,554.49/month) |
$11,530.79, plus NNN |
(b) Existing Premises. In addition to the Annual Rent and Monthly Installments of Rent for the Suite 120 Premises, as set forth in Paragraph 5(a) above, Tenant shall continue to pay Annual Rent and Monthly Installments of Rent in accordance with, and as further set forth in, the Reference Pages of the Lease through July 31, 2020. Commencing on August 1, 2020 and continuing through the expiration of the First Amendment Term (ending on July 31 2022), Tenant shall pay Annual Rent and Monthly Installments of Rent for the Existing Premises as set forth below:
| Period |
Approximate rate/rsf/annum for office space (16,072 rsf) |
Approximate rate/rsf/annum for warehouse space (15,300 rsf) |
Total Monthly Installments of Rent (office space and warehouse space) | |
| From | Through | |||
| 08/01/2020 | 07/31/2021 | $24.25, plus NNN ($32,478.83/month) |
$11.00, plus NNN ($14,025.00/month) |
$46,503.83, plus NNN |
| 08/01/2021 | 07/31/2022 | $24.98, plus NNN ($33,456.55/month) |
$11.33, plus NNN ($14,445.75/month) |
$47,902.30, plus NNN |
6. Additional Rent. Landlord and Tenant acknowledge and agree that throughout the First Amendment Term, in addition to the Monthly Installments of Rent for the First Amendment Premises (being the Existing Premises and the Suite 120 Premises, combined), as set forth in Paragraph 4 above, Tenant shall be continue to be obligated to pay, on a “net” basis for each Lease Year, the Rent Adjustments as additional rent, as follows:
(a) Tenant shall pay, as additional rent, Tenant’s Proportionate Share of Expenses and Taxes (as more fully described in Article 4 of the Lease) with respect to the Premises and all other rent and other costs and charges specified in the Lease for each such Lease Year throughout the First Amendment Term, in accordance with the existing terms and provisions of the Lease applicable thereto (including, specifically, Article 4 of the Lease). Additionally, throughout the First Amendment Term, Tenant shall continue to pay for all water, gas, heat, light, power, telephone, sewer, sprinkler system charges and other utilities and services used on or from the First Amendment Premises, in accordance with and subject to the terms of the Lease, including, but not limited to, Article 13 of the Lease.
(b) Notwithstanding anything contained in the Lease to the contrary, Landlord and Tenant acknowledge and agree that commencing on and as of the First Amendment Commencement Date (May 1, 2020) and continuing throughout the remainder of the Term of the Lease (as extended by this First Amendment), the Lease shall be amended in connection with the Expenses under the Lease to add the following at the end of Paragraph 4.1.2 (Expenses) of the Lease: “In connection with the operation, management, repair or maintenance of and for the Building and the Premises, Landlord has agreed to perform the following, the costs and expenses of which are anticipated to be incurred by Landlord and shall be included in the Expenses charges under the Lease: the quarterly maintenance of the heating, ventilating and air conditioning system located within the Premises (but excluding any supplemental heating, ventilating and air conditioning system providing supplemental service to the Premises).”
3
(c) Landlord and Tenant acknowledge and agree that commencing on and as of the First Amendment Commencement Date (May 1, 2020) and continuing through the expiration of the First Amendment Term (ending on July 31, 2022), Tenant’s Proportionate Share (as defined in the Reference Pages of the Lease) for the First Amendment Premises (being the Existing Premises and the Suite 120 Premises, combined) shall be amended to be as follows:(i) 71.0172% (38,747 rsf/54,560 rsf) of the Building; (ii) 6.6368% (38,747 rsf/583,817 rsf) of the Building Complex, and (iii) 4.9537% (38,747 rsf/782,185 rsf) of the Project.
7. Condition of Premises. Tenant is currently in possession of the Existing Premises, and Tenant shall continue to accept the Existing Premises in its existing “AS-IS”, “WHERE-IS” and “WITH ALL FAULTS” condition throughout the First Amendment Term, and, except as otherwise expressly set forth in this First Amendment, Landlord shall have no obligation whatsoever to refurbish or otherwise improve the Existing Premises at any time during the First Amendment Term. Tenant shall accept the Suite 120 Premises, in its existing “AS-IS”, “WHERE-IS” and “WITH ALL FAULTS” condition, and Landlord shall have no obligation whatsoever to refurbish or otherwise improve the Suite 120 Premises at any time during the First Amendment Term; provided, however, Landlord agrees to provide an allowance of up to $67,000.00 (the “First Amendment Allowance”) towards the cost of Landlord performing the First Amendment Improvements (defined in Exhibit “C”) in the First Amendment Premises (either the Existing Premises or the Suite 120 Premises) pursuant to the Work Letter attached hereto as Exhibit “C”. Tenant further acknowledges and agrees that any obligations of Landlord existing in the Lease to complete leasehold improvements and/or furnish allowance(s) with respect to the Existing Premises, including, but not limited to, Exhibit B attached to the Lease, have been completed and/or satisfied in their entirety, and any provisions in the Lease providing for such obligations are hereby null and void and of no further force or effect. Landlord and Tenant agree that Landlord will use commercially reasonable efforts to deliver the Suite 120 Premises to Tenant such that the heating, ventilating and air conditions systems (the “HVAC Systems”) in the Suite 120 Premises, as well as the HVAC Systems in the Existing Premises, are in good working order as of the First Amendment Commencement Date. If Tenant notifies Landlord in writing within ninety (90) days following the First Amendment Commencement Date of any material defects in the HVAC Systems serving either the Suite 120 Premises and/or the Existing Premises, then, provided (i) Landlord, acting in good faith, does not dispute Tenant’s claim of a material defect in the HVAC Systems, and (ii) such material defect was not caused by the acts, omissions, negligence or willful misconduct of Tenant, its agents, employees, contractors or invitees, then Landlord, at Landlord’s sole cost and expense, shall use commercially reasonable efforts to repair such material defect serving the Suite 120 Premises and/or the Existing Premises (or replace such HVAC Units, if needed, but only in the event that such HVAC Units are at the end of their useful life in accordance with generally accepted accounting principles). Tenant covenants to Landlord that it shall promptly notify Landlord of Tenant’s or its agents, representative’s or contractor’s discovery of any material defects in the HVAC Systems serving the Suite 120 Premises or the Existing Premises as set forth above.
4
8. Renewal and Expansion Options. Landlord and Tenant acknowledge and agree that Tenant shall have the right to (i) extend the Term of the Lease for one (1) additional period of five (5) years following the expiration of the First Amendment Term, in accordance with, and subject to, the terms and conditions set forth in Exhibit “D” (One Renewal Option at Market) attached hereto and incorporated herein for all purposes, and (ii) further expand the size of the First Amendment Premises into Suite 250 in the Building in accordance with, and subject to, the terms and conditions set forth in Exhibit “E” (Right of First Offer) attached hereto and incorporated herein for all purposes. Landlord and Tenant further agree that (i) Paragraph 41 (Option to Renew), and (ii) Paragraph 43 (Acceleration Option) of the Lease are hereby deleted in their entirety and of no further force and effect.
9. No Preferential Rights or Options. Notwithstanding anything to the contrary contained in the Lease, with the exception of the (i) renewal option, as described and expressly set forth in Paragraph 8 above and Exhibit “D” (One Renewal Option at Market) attached hereto, and (ii) right of first offer, as described and expressly set forth in Paragraph 8 above and Exhibit “E” (Right of First Offer) attached hereto, Landlord and Tenant acknowledge and agree that, as of the Effective Date of this First Amendment, Tenant has no renewal, termination, expansion, first offer or first refusal rights under the Lease, and any provisions in the Lease providing for such rights, including, but not limited to, (i) Paragraph 41 (Option to Renew), and (ii) Paragraph 43 (Acceleration Option) of the Lease, are hereby null and void and of no further force or effect.
10. Parking. Landlord and Tenant acknowledge and agree that Tenant shall continue to have non-exclusive parking rights in and to the Building Complex’s parking facilities, as more fully set forth in the Lease, including, but not limited to Section 1.3 of the Lease. Effective on and as of the First Amendment Commencement Date, and continuing through the expiration of the First Amendment Term, in addition to the current parking stipulated in Lease, Landlord shall make available to Tenant an additional thirteen (13) uncovered, unreserved, surface parking spaces (being approximately (i) three (3) parking spaces per 1,000 rentable square feet of office space, plus and (ii) one-half (.5) parking spaces per 1,000 rentable square feet of warehouse space contained within the Suite 120 Premises), at no additional charge to Tenant through the expiration of the First Amendment Term.
11. Security Deposit. Landlord and Tenant acknowledge and agree that, as of the Effective Date, Landlord is currently holding the sum of $90,000.00 as the Security Deposit under the Lease, which Security Deposit shall remain on deposit with Landlord pursuant to the terms and conditions of the Lease and no additional Security Deposit shall be required in connection with this First Amendment.
12. Signage. Landlord and Tenant acknowledge and agree that Tenant shall continue to have the signage rights set forth in the Lease, including, but not limited to Section 40 of the Lease. Effective on and as of the First Amendment Commencement Date, and continuing through the expiration of the First Amendment Term, Tenant shall also have the right to one (1) interior building standard suite sign located outside of (but near the entrance to) the Suite 120 Premises (the “Interior Suite Sign”), the location of which Interior Suite Sign shall be reasonably designated by Landlord. Landlord shall pay for the initial Interior Suite Sign, and Tenant shall be responsible for the cost of all replacements or repairs thereto.
5
13. Force Majeure. In addition to the provisions set forth in Section 22.4 of the Lease, the following shall be added to the Lease as a new Section 46 to the Lease:
“46. Force Majeure. Any prevention, delay or stoppage due to strikes, lockouts, labor disputes, acts of God, acts of war, terrorism, terrorist activities, inability to obtain services, labor, or materials or reasonable substitutes therefore, governmental actions, civil commotions, fire, flood, earthquake or other casualty, any restrictions, shutdowns, closures, or shortages related to COVID-19 or any similar viruses, epidemics or pandemics, and other causes beyond the reasonable control of the party obligated to perform, except with respect to the obligations imposed with regard to Monthly Installments of Rent, additional rent (including, but not limited to, Tenant’s Proportionate Share of Expenses and Taxes) and other charges to be paid by Tenant pursuant to this Lease and except as to Tenant’s obligations under Section 10 (Indemnification) and Section 11 (Insurance) of the Lease and Section 14 (Holding Over) of the Lease (collectively, a “Force Majeure”), notwithstanding anything to the contrary contained in the Lease, shall excuse the performance of such party for a period equal to any such prevention, delay or stoppage and, therefore, if the Lease specifies a time period for performance of an obligation of either party, that time period shall be extended by the period of any delay in such party’s performance caused by a Force Majeure.”
14. OFAC Compliance. Tenant certifies, represents, warrants and covenants that: (i) it is not acting and will not act, directly or indirectly, for or on behalf of any person, group, entity, or nation named by any Executive Order or the United States Treasury Department as a terrorist, “Specially Designated National and Blocked Person”, or other banned or blocked person, entity, nation or transaction pursuant to any law, order, rule, or regulation that is enforced or administered by the Office of Foreign Assets Control; and (ii) it is not engaged in this transaction, directly or indirectly on behalf of, or instigating or facilitating this transaction, directly or indirectly on behalf of, any such person, group, entity or nation. Tenant hereby agrees to defend (with counsel reasonably acceptable to Landlord), indemnify and hold harmless Landlord and its designated property management company, and their respective partners, members, affiliates and subsidiaries, and all of their respective officers, directors, shareholders, employees, servants, partners, representatives, insurers and agents from and against any and all claims or damages arising from or related to any such breach of the foregoing certifications, representations, warranties and covenants.
6
15. Cannabis. Tenant agrees that the Premises shall not be used for the use, growing, producing, processing, storing (short or long term), distributing, transporting, or selling of cannabis, cannabis derivatives, or any cannabis containing substances (“Cannabis”), or any office uses related to the same, nor shall Tenant permit, allow or suffer, any of Tenant’s officers, employees, agents, servants, licensees, subtenants, concessionaires, contractors and invitees to bring onto the Premises, any Cannabis. Without limiting the foregoing, the prohibitions in this paragraph shall apply to all Cannabis, whether such Cannabis is legal for any purpose whatsoever under state or federal law or both. Notwithstanding anything to the contrary, any failure by Tenant to comply with each of the terms, covenants, conditions and provisions of this paragraph shall automatically and without the requirement of any notice be an Event of Default that is not subject to cure, and Tenant agrees that upon the occurrence of any such Event of Default, Landlord may elect, in its sole discretion, to exercise all of its rights and remedies under this Lease, at law or in equity with respect to such Event of Default
16. Tenant’s Entity Information. Tenant acknowledges and agrees that a copy of the entity information available for Tenant, as a Delaware corporation, from the Delaware Secretary of State’s website is attached hereto as Exhibit “F” and made a part hereof for all purposes. Additionally, Tenant certifies to Landlord that David Kirtley is the chief executive officer of Tenant and Chris Pihl is chief financial officer of Tenant.
17. Notice Address. As of the Effective Date, Landlord’s address for notice purposes under the Lease shall be amended to the following:
KORE Westpark LLC
c/o Transwestern
8441 154th Avenue NE, Suite 100
Redmond, Washington 98052
Attn: Property Manager
With a copy to:
KORE Westpark LLC
c/o Pacific Oak Capital Advisors, LLC
3200 Park Center Drive, Suite 600
Costa Mesa, California 92626
Attn: Jason Espiritu, Vice President
18. Rent Payment Address. As of the Effective Date, the Rent Payment Address, as set forth on the Reference Pages of the Lease, shall be amended to provide that all payments of rent payable under the Lease shall be made payable to Landlord and sent to Landlord at the following address:
Via US Mail:
KORE Westpark LLC
c/o Transwestern Commercial Services WA, LLC
P.O. Box 842715
Dallas, Texas 75284-2715
7
Via Overnight Courier:
Bank of America Lockbox Services
KORE Westpark LLC
Lockbox 842715, 1950 N. Stemmons Freeway, Suite 5010
Dallas, Texas 75207
or to such other address as Landlord may designate in writing.
19. Brokers. Tenant warrants that it has had no dealings with any broker or agent other than Jones Lang LaSalle and Kidder Mathews (collectively, the “Brokers”) in connection with the negotiation or execution of this First Amendment, and Tenant agrees to indemnify Landlord and hold Landlord harmless from and against any and all costs, expenses or liability for commissions or other compensations or charges claimed by any broker or agent, other than the Brokers, with respect to this First Amendment or the transactions evidenced hereby.
20. With the exception of those terms and conditions specifically modified and amended herein, the herein referenced Lease shall remain in full force and effect in accordance with all its terms and conditions. In the event of any conflict between the terms and provisions of this First Amendment and the terms and provisions of the Lease, the terms and provisions of this First Amendment shall supersede and control.
21. This First Amendment may be executed in any number of counterparts, each of which shall be deemed an original, and all of such counterparts shall constitute one agreement. To facilitate execution of this First Amendment, the parties may execute and exchange facsimile counterparts of the signature pages and facsimile counterparts shall serve as originals.
[SIGNATURE PAGE TO FOLLOW]
8
FIRST AMENDMENT TO LEASE
BY AND BETWEEN KORE WESTPARK LLC, AS LANDLORD,
AND HELION ENERGY, INC., AS TENANT
IN WITNESS WHEREOF, Landlord and Tenant, acting herein by duly authorized individuals, have caused these presents to be executed on the respective dates set forth below, to be effective for all purposes, however, as of the Effective Date first set forth above.
| LANDLORD: | ||
| KORE WESTPARK LLC, | ||
| a Delaware limited liability company | ||
| By: | Pacific Oak Capital Advisors, LLC, a | |
| Delaware limited liability company, | ||
| as its authorized agent | ||
| By: | /s/ Jason Espiritu | |
| Jason Espiritu, Vice President | ||
| Date: | May 4, 2020 |
| TENANT: | ||
| HELION ENERGY, INC., | ||
| a Delaware corporation | ||
| By: | /s/ David Kirtley | |
| Name: | David Kirtley | |
| Title: | CEO | |
| Date: | April 17, 2020 | |
9
FIRST AMENDMENT TO LEASE
BY AND BETWEEN KORE WESTPARK LLC, AS LANDLORD,
AND HELION ENERGY, INC., AS TENANT
STATE OF CALIFORNIA
§ ss.
COUNTY OF ORANGE
I certify that I know or have satisfactory evidence that JASON ESPIRITU is the person who appeared before me, and said person acknowledged that he signed this instrument, on oath stated that he was authorized to execute the instrument and acknowledged it as the Vice President of Pacific Oak Capital Advisors, LLC, a Delaware limited liability company, as the authorized agent of KORE WESTPARK LLC, a Delaware limited liability company, to be the free and voluntary act of such party for the uses and purposes mentioned in the instrument.
Dated: ________________ , 2020.
| (Signature) | ||
| (Print Name) | ||
| Notary Public, in and for the State | ||
| of California, residing at | ||
| My Commission Expires | ||
| STATE OF WASHINGTON | § |
| § ss. | |
| COUNTY OF _____________ | § |
I certify that I know or have satisfactory evidence that______________________________ is the person who appeared before me, and said person acknowledged that he/she signed this instrument, on oath stated that he/she was authorized to execute the instrument and acknowledged it as the ________________________ of HELION ENERGY, INC., a Delaware corporation, to be the free and voluntary act of such party for the uses and purposes mentioned in the instrument.
Dated: _________________ , 2020.
| (Signature) | ||
| (Print Name) | ||
| Notary Public, in and for the State | ||
| of Washington, residing at | ||
| My Commission Expires | ||
10
EXHIBIT “A”
DESCRIPTION OF THE EXISTING PREMISES

A-1
EXHIBIT “B”
SUITE 120 PREMISES

B-1
EXHIBIT “C”
WORK LETTER
THIS WORK LETTER is attached as Exhibit “C” to the First Amendment to Lease between KORE WESTPARK LLC, a Delaware limited liability company, as Landlord, and HELION ENERGY, INC., a Delaware corporation, as Tenant, and constitutes the further agreement between Landlord and Tenant as follows:
(a) First Amendment Improvements. Landlord, at Tenant’s sole cost and expense, agrees to furnish or perform those items of construction and those improvements (the “First Amendment Improvements”) specified in the Final Plans to be agreed to by Landlord and Tenant as set forth in Paragraph (b) below; provided, however, Landlord shall pay for the cost of such First Amendment Improvements up to the extent of the First Amendment Allowance as set forth in Paragraph (e) below.
(b) Space Planner. Landlord has retained a space planner (the “Space Planner”) to prepare certain plans, drawings and specifications (the “Temporary Plans”) for the construction of the First Amendment Improvements to be installed in the First Amendment Premises (being either the Existing Premises and/or the Suite 120 Premises, at Tenant’s election) by a general contractor selected by Landlord pursuant to this Work Letter. Tenant shall deliver to Space Planner within ten (10) days after the execution of this First Amendment, all necessary information required by the Space Planner to complete the Temporary Plans. Tenant shall have five (5) business days after its receipt of the proposed Temporary Plans to review the same and notify Landlord in writing of any comments or required changes, or to otherwise give its approval or disapproval of such proposed Temporary Plans. If Tenant fails to give written comments to or approve the Temporary Plans within such five (5) business day period, then Tenant shall be deemed to have approved the Temporary Plans as submitted. Landlord shall have five (5) business days following its receipt of Tenant’s comments and objections to redraw the proposed Temporary Plans in compliance with Tenant’s request and to resubmit the same for Tenant’s final review and approval or comment within five (5) business days of Tenant’s receipt of such revised plans. Such process shall be repeated twice and if at such time final approval by Tenant of the proposed Temporary Plans has not been obtained, then Landlord shall complete such Temporary Plans, at Tenant’s sole cost and expense, and it shall be deemed that Tenant has approved the Temporary Plans. Once Tenant has approved or has been deemed to have approved the Temporary Plans, then the approved (or deemed approved) Temporary Plans shall be thereafter known as the “Final Plans”. The Final Plans shall include the complete and final layout, plans and specifications for the First Amendment Premises showing all doors, light fixtures, electrical outlets, telephone outlets, wall coverings, plumbing improvements (if any), data systems wiring, floor coverings, wall coverings, painting, any other improvements to the First Amendment Premises beyond the shell and core improvements provided by Landlord and any demolition of existing improvements in the First Amendment Premises. The improvements shown in the Final Plans shall (i) utilize Landlord’s building standard materials and methods of construction, (ii) be compatible with the shell and core improvements and the design, construction and equipment of the First Amendment Premises, and (iii) comply with all applicable laws, rules, regulations, codes and ordinances.
C-1
(c) Bids. As soon as practicable following the approval of the Final Plans, Landlord shall (i) obtain a written non-binding itemized estimate of the costs of all First Amendment Improvements shown in the Final Plans as prepared by a general contractor selected by Landlord, and (ii) if required by applicable law, codes or ordinances, submit the Final Plans to the appropriate governmental agency for the issuance of a building permit or other required governmental approvals prerequisite to commencement of construction of such First Amendment Improvements (“Permits”). Tenant acknowledges that any cost estimates are prepared by the general contractor and Landlord shall not be liable to Tenant for any inaccuracy in any such estimate. Within five (5) business days after receipt of the written non-binding cost estimate prepared by the general contractor, Tenant shall either (A) give its written approval thereof and authorization to proceed with construction or (B) immediately request the Space Planner to modify or revise the Final Plans in any manner desired by Tenant to decrease the cost of the First Amendment Improvements. If Tenant is silent during such five (5) business day period, then Tenant shall be deemed to have approved such non-binding cost estimate as set forth in Clause (A) above. If the Final Plans are revised pursuant to Clause (B) above, then Landlord shall request that the general contractor provide a revised cost estimate to Tenant based upon the revisions to the Final Plans. Such modifications and revisions shall be subject to Landlord’s reasonable approval and shall be in accordance with the standards set forth in Paragraph (b) of this Work Letter. Within ten (10) business days after receipt of the general contractor’s original written cost estimate and the description, if any, of any Tenant Delay, Tenant shall give its final approval of the Final Plans to Landlord which shall constitute authorization to commence the construction of the First Amendment Improvements in accordance with the Final Plans, as modified or revised. Tenant shall signify its final approval by signing a copy of each sheet or page of the Final Plans and delivering such signed copy to Landlord.
(d) Construction. Landlord shall commence construction of the First Amendment Improvements within ten (10) days following the later of (i) the approval of the Final Plans, or (ii) Landlord’s receipt of any necessary Permits. Landlord shall diligently pursue completion of construction of the First Amendment Improvements and use its commercially reasonable efforts to complete construction of the First Amendment Improvements as soon as reasonably practicable. Notwithstanding anything in this First Amendment or in this Work Letter to the contrary, the First Amendment Allowance shall be used only for the construction of the First Amendment Improvements, and if construction of the First Amendment Improvements is not completed within twelve (12) months following the Effective Date of this First Amendment (the “Construction Termination Date”), then Landlord’s obligation to provide the First Amendment Allowance shall terminate and become null and void, and Tenant shall be deemed to have waived its rights in and to said First Amendment Allowance.
(e) First Amendment Allowance. Subject to the terms and provisions of this Work Letter, Landlord shall pay the cost of the First Amendment Improvements (the “Work”) up to the amount of the First Amendment Allowance. If the amount of the lowest qualified bid to perform the Work exceeds the First Amendment Allowance, Tenant shall bear the cost of such excess and shall pay the estimated cost of such excess to Landlord prior to commencement of construction of such First Amendment Improvements and a final adjusting payment based upon the actual costs of the First Amendment Improvements shall be made when the First Amendment Improvements are completed. If the cost of the Work is less than such amount, then Tenant shall not receive any credit whatsoever for the difference between the actual cost of the Work and the First Amendment Allowance. All remaining amounts due to Landlord shall be paid upon the earlier of Substantial Completion of the First Amendment Improvements or presentation of a written statement of the sums due, which statement may be an estimate of the cost of any component of the Work. The cost of the permits, working drawings, hard construction costs, mechanical and electrical planning, fees, permits, general contract overhead, and a coordination fee payable to Landlord equal to three percent (3%) of the actual costs of construction and such costs or permits, fees, planning and contractor overhead shall be payable out of the First Amendment Allowance and shall be included in the cost of the Work. The cost of the Work shall not include any other fees payable to Landlord.
C-2
(f) Change Order. If Tenant shall desire any changes to the Final Plans, Tenant shall so advise Landlord in writing and Landlord shall determine whether such changes can be made in a reasonable and feasible manner. Any and all costs of reviewing any requested changes, and any and all costs of making any changes to the First Amendment Improvements which Tenant may request and which Landlord may agree to shall be at Tenant’s sole cost and expense and shall be paid to Landlord upon demand and before execution of the change order. In no event shall Landlord be obligated to perform any First Amendment Improvements which would extend the construction period past the Construction Termination Date, unless such extension was mutually agreed to in writing by Landlord and Tenant prior to the commencement of said construction. If Landlord approves Tenant’s requested change, addition, or alteration, the Space Planner, at Tenant’s sole cost and expense, shall complete all working drawings necessary to show the change, addition or alteration being requested by Tenant.
(g) Substantial Completion. “Substantial Completion” (or any grammatical variant thereof) of construction of the First Amendment Improvements shall be defined as the date upon which the Space Planner or other consultant engaged by Landlord determines that the First Amendment Improvements have been substantially completed in accordance with the Final Plans except for Punch List items (defined below), unless the completion of such improvements was delayed due to any Tenant Delay (defined below), in which case the date of Substantial Completion shall be the date such improvements would have been completed, but for the Tenant Delays. The term “Punch List” items shall mean items that constitute minor defects or adjustments which can be completed after occupancy without causing any material interference with Tenant’s use of the First Amendment Premises. After the completion of the First Amendment Improvements, Tenant shall, upon demand, execute and deliver to Landlord a letter of acceptance of improvements performed on the First Amendment Premises. The term “Tenant Delay” shall include, without limitation, any delay in the completion of construction of First Amendment Improvements resulting from (i) Tenant’s failure to comply with the provisions of this Work Letter, (ii) any additional time as reasonably determined by Landlord required for ordering, receiving, fabricating and/or installing items or materials or other components of the construction of First Amendment Improvements, including, without limitation, mill work, (iii) delay in work caused by submission by Tenant of a request for any change order (defined below) following Tenant’s approval of the Final Plans, or for the implementation of any change order, or (iv) any delay by Tenant in timely submitting comments or approvals to the Temporary Plans or Final Plans. The failure of Tenant to take possession of or to occupy the Suite 120 Premises shall not serve to relieve Tenant of obligations arising on the First Amendment Commencement Date or delay the payment of Rent by Tenant.
(h) First Amendment Improvements. Tenant acknowledges that the First Amendment Improvements will be completed while Tenant occupies the Existing Premises and may be completed after Tenant occupies the Suite 120 Premises. The First Amendment Improvements will be performed during normal business hours for the Building. Tenant agrees to cooperate with Landlord and to make the First Amendment Premises reasonably available, excluding Tenant’s vaults and safes or special security areas (designated in advance), to Landlord and its contractors for the performance of such First Amendment Improvements so that First Amendment Improvements can be completed on or prior to the Construction Termination Date. Tenant agrees to cooperate with Landlord and make reasonable accommodations (including movement of Tenant’s furniture, fixtures and equipment, if necessary), for Landlord to complete such First Amendment Improvements in a timely and efficient manner; provided, however, and notwithstanding the foregoing to the contrary, Tenant, at Tenant’s sole cost and expense, shall be responsible for packing and moving all of Tenant’s, and/or Tenant’s employees, personal property and belongings (including, but not limited to, artwork and valuables) necessitated by the construction of the First Amendment Improvements in the Existing Premises (and the Suite 120 Premises, to the extent applicable).
C-3
EXHIBIT “D”
ONE RENEWAL OPTION AT MARKET
(a) Provided that as of the time of the giving of the Extension Notice and the Commencement Date of the Extension Term, (i) Tenant is the Tenant originally named herein, (ii) Tenant actually occupies all of the First Amendment Premises demised under this First Amendment (being the Existing Premises and the Suite 120 Premises combined) and any space added to the First Amendment Premises, and (iii) no Event of Default exists or would exist but for the passage of time or the giving of notice, or both; then Tenant shall have the right to further extend the Term of the Lease for an additional period of five (5) years (such additional period is hereinafter called the “Extension Term”) commencing on the day following the expiration of the First Amendment Term (hereinafter referred to as the “Commencement Date of the Extension Term”). Tenant shall give Landlord notice (hereinafter called the “Extension Notice”) of its election to extend the Term of the Lease at least nine (9) months, but not more than twelve (12) months, prior to the scheduled expiration date of the First Amendment Term.
(b) The Annual Rent and Monthly Installments of Rent payable by Tenant to Landlord during the Extension Term shall be the greater of (i) the Annual Rent and Monthly Installments of Rent applicable to the last year of the First Amendment Term, and (ii) the then prevailing market rate for comparable space in the Project and comparable buildings in the vicinity of the Project, taking into account the size of the Lease, the length of the renewal term, market escalations and the credit of Tenant. The Annual Rent and Monthly Installments of Rent shall not be reduced by reason of any costs or expenses saved by Landlord by reason of Landlord’s not having to find a new tenant for such premises (including, without limitation, brokerage commissions, costs of improvements, rent concessions or lost rental income during any vacancy period). In the event Landlord and Tenant fail to reach an agreement on such rental rate and execute the Renewal Amendment (defined below) at least eight (8) months prior to the expiration of the First Amendment Term, then Tenant’s exercise of this renewal option shall be deemed withdrawn and the Lease shall terminate on the expiration date of the First Amendment Term.
(c) The determination of Annual Rent and Monthly Installments of Rent does not reduce the Tenant’s obligation to pay or reimburse Landlord for additional rent, including, Tenant’s Proportionate Share of Expenses and Taxes, and other reimbursable items as set forth in the Lease, and Tenant shall reimburse and pay Landlord as set forth in the Lease with respect to such additional rent, including, Tenant’s Proportionate Share of Expenses and Taxes, and other items with respect to the First Amendment Premises during the Extension Term without regard to any cap on such expenses set forth in the Lease.
(d) Except for the Annual Rent and Monthly Installments of Rent as determined above, Tenant’s occupancy of the First Amendment Premises during the Extension Term shall be on the same terms and conditions as are in effect immediately prior to the expiration of the First Amendment Term; provided, however, Tenant shall have no further right to any allowances, credits or abatements or any options to expand, contract, terminate, renew or extend the Lease.
(e) If Tenant does not give the Extension Notice within the period set forth in Paragraph (a) above, Tenant’s right to extend the Term of the Lease shall automatically terminate. Time is of the essence as to the giving of the Extension Notice.
D-1
(f) Landlord shall have no obligation to refurbish or otherwise improve the First Amendment Premises for the Extension Term. The First Amendment Premises shall be tendered on the Commencement Date of the Extension Term in “as-is” condition.
(g) If the Lease is extended for the Extension Term, then Landlord shall prepare and Tenant shall execute an amendment to the Lease confirming the extension of the Term of the Lease and the other provisions applicable thereto (the “Renewal Amendment”).
(h) If Tenant exercises its right to extend the Term of the Lease for the Extension Term pursuant to this Exhibit “D”, the defined word “Term” as used in the Lease, shall be construed to include, when practicable, the Extension Term except as provided in Paragraph (d) above.
D-2
EXHIBIT “E”
RIGHT OF FIRST OFFER
(a) “Offered Space” shall mean approximately 8,192 square feet of office space, designated as Suite 250, located on the second (2nd) floor of the Building, as shown on Exhibit “E-1” attached to this First Amendment.
(b) Provided that as of the date of the giving of the First Offer Notice, (i) Tenant is the Tenant originally named herein, (ii) Tenant actually occupies all of the First Amendment Premises demised under this First Amendment and any premises added to the First Amendment Premises, and (iii) no Event of Default or event which but for the passage of time or the giving of notice, or both, would constitute an event of default has occurred and is continuing, if at any time during the Term of the Lease, as extended by this First Amendment, any portion of the Offered Space is vacant and unencumbered by any rights of any third party, then Landlord, before offering such Offered Space to anyone, other than the tenant then occupying such space (or its affiliates), shall offer to Tenant the right to include the Offered Space within the First Amendment Premises on the same terms and conditions upon which Landlord intends to offer the Offered Space for lease. Notwithstanding anything to the contrary in the Lease, the right of first offer granted to Tenant under this Exhibit “E” shall be subject and subordinate to (i) the rights of all tenants at the Project under existing leases, and (ii) the herein reserved right of Landlord to renew or extend the term of any lease with the tenant then occupying such space (or any of its affiliates), whether pursuant to a renewal or extension option in such lease or otherwise.
(c) Such offer shall be made by Landlord to Tenant in a written notice (hereinafter called the “First Offer Notice”) which offer shall designate the space being offered and shall specify the terms which Landlord intends to offer with respect to any such Offered Space. Tenant may accept the offer set forth in the First Offer Notice by delivering to Landlord an unconditional acceptance (hereinafter called “Tenant’s Notice”) of such offer within five (5) business days after delivery by Landlord of the First Offer Notice to Tenant. Time shall be of the essence with respect to the giving of Tenant’s Notice. If Tenant does not accept (or fails to timely accept) an offer made by Landlord pursuant to the provisions of this Exhibit “E” with respect to the Offered Space designated in the First Offer Notice and execute the ROFO Amendment (defined below) within thirty (30) days after the delivery of the First Offer Notice, then Landlord shall be under no further obligation with respect to such space by reason of this Exhibit “E”.
(d) Tenant must accept all Offered Space offered by Landlord at any one time if it desires to accept any of such Offered Space and may not exercise its right with respect to only part of such space. In addition, if Landlord desires to lease more than just the Offered Space to one tenant, Landlord may offer to Tenant pursuant to the terms hereof all such space which Landlord desires to lease, and Tenant must exercise its rights hereunder with respect to all such space and may not insist on receiving an offer for just the Offered Space.
(e) If Tenant does not accept (or fails to timely accept) an offer made by Landlord pursuant to the provisions of this Exhibit “E” with respect to the Offered Space designated in the First Offer Notice, then Landlord shall be under no further obligation with respect to such space by reason of this Exhibit “E”. Additionally, if Tenant timely accepts such offer and fails to execute the ROFO Amendment (defined below) within thirty (30) days after the delivery of the First Offer Notice, then, at Landlord’s sole option, Landlord shall be under no further obligation with respect to such space by reason of this Exhibit “E”.
(f) In the event that Tenant exercises its rights to any Offered Space pursuant to this Exhibit “E”, then Landlord shall prepare, and Tenant shall execute, an amendment to the Lease which confirms such expansion of the First Amendment Premises and the other provisions applicable thereto (the “ROFO Amendment”).
E-1
EXHIBIT “E-1”
DESCRIPTION OF OFFERED SPACE
E-1-1
EXHIBIT “F”
TENANT’S ENTITY INFORMATION
F-1
SECOND AMENDMENT TO LEASE
This Second Amendment to Lease (this “Second Amendment”) is made and entered into by and between KORE WESTPARK LLC, a Delaware limited liability company (“Landlord”), and HELION ENERGY, INC., a Delaware corporation (“Tenant”), effective on and as of the date on which the Landlord executes this Second Amendment as set forth on the signature page hereto (the “Effective Date”).
WITNESSETH:
WHEREAS, Landlord and Tenant are parties to that certain Lease dated March 17, 2015, originally entered into by and between Calwest Industrial Properties, LLC, a California limited liability company (the “Original Landlord”), as landlord, and Tenant, as tenant (the “Original Lease”), as subsequently amended by that certain First Amendment to Lease dated as of May 4, 2020, between Landlord, as landlord, and Tenant, as tenant (the “First Amendment”; with the Original Lease, as amended by the First Amendment, being collectively referred to herein as the “Lease”), pursuant to which Tenant currently leases a total of 38,747 rentable square feet (being comprised of 19,792 rentable square feet of office space and 18,955 rentable square feet of warehouse space), being comprised of the following spaces (i) a total of 31,372 rentable square feet (being comprised of 16,072 rentable square feet of office space (5,397 rentable square feet in Suite 100 and 10,675 rentable square feet in Suite 200) and 15,300 rentable square feet of warehouse space) in the Building (such space being defined in the First Amendment, and referred to herein as the “Existing Premises”), and (ii) 7,375 rentable square feet (being comprised of 3,720 rentable square feet of office space and 3,655 rentable square feet of warehouse space), designated as Suite 120 in the Building (such space being defined in the First Amendment, and referred to herein as the “Suite 120 Premises”; with the Existing Premises and the Suite 120 Premises being collectively defined in the First Amendment, and referred to herein as the “First Amendment Premises”), and having an address of 8210 154th Avenue NE, Redmond, Washington 98052, located in. Building A (the “Building”), in the fourteen (14) building project commonly known as the Westpark Business Park (the “Building Complex”), in the twenty-one (21) building project comprised of the following: (i) the Building Complex (Westpark Business Park), (ii) the two (2) building office and industrial building complex, commonly known as Redmond Center Court, and (iii) the five (5) building office and industrial building complex commonly known as Pacific Business and Technology Center (collectively referred to as the “Project”); and
WHEREAS, Landlord has succeeded to all of the rights, title and interests of the “Landlord” under the Lease; and
WHEREAS, pursuant to the terms of the First Amendment, the Term of the Lease was extended for an additional period (the “First Amendment Term”), which First Amendment Term expires on July 31, 2022 (such date being defined in the First Amendment, and referred to herein, as the “First Amendment Termination Date” or the “FATD”), and
WHEREAS, Landlord and Tenant desire to amend the terms of the Lease to, among other things, further expand the size of the First Amendment Premises, all as more particularly set forth herein below;
NOW, THEREFORE, pursuant to the foregoing, and in consideration of the mutual covenants and agreements contained herein and in the Lease, and other good and valuable consideration paid by each of Landlord and Tenant to the other, the receipt and sufficiency of which are hereby acknowledged, Landlord and Tenant agree that the Lease is hereby ratified and amended as follows:
1. Defined Terms. All capitalized terms used herein shall have the same meaning as defined in the Lease, unless otherwise defined in this Second Amendment.
2. Expansion of First Amendment Premises. Effective on and as of the Second Amendment Commencement Date (as hereinafter defined), the First Amendment Premises shall be further expanded to include that certain 8,192 rentable square feet of office space, designated as Suite 250 in the Building, being further depicted on Exhibit “A” attached hereto (the “Suite 250 Premises”), upon and subject to all the existing terms of the Lease, except as hereinafter provided. The Second Amendment Commencement Date shall occur on the earlier of (i) the date on which the Second Amendment Improvements being performed in the Suite 250 Premises are Substantially Completed, or (ii) the date on which the Second Amendment Improvements being performed in the Suite 250 Premises would have been Substantially Completed except for Tenant Delays, or (iii) the date that Tenant commences business operations in the Suite 250 Premises, or (iv) March 1, 2021 (with such earlier date being defined herein as the “Second Amendment Commencement Date” or the “SACD”). The Second Amendment Term shall commence on the Second Amendment Commencement Date and shall continue throughout the remainder of, and be co-terminus with the expiration of the First Amendment Term (expiring on the First Amendment Termination Date (July 31, 2022), with the period from the Second Amendment Commencement Date through the First Amendment Termination Date, being referred to herein as the “Second Amendment Term”) The terms “Second Amendment Improvements” and “Substantial Completion” or “Substantially Completed” are defined in the attached Exhibit “B” Work Letter. “Tenant Delays” consist of those delays defined in Exhibit “B”. Promptly following the Second Amendment Commencement Date, Landlord and Tenant shall execute a written declaration specifying the Second Amendment Commencement Date, which Tenant shall acknowledge by executing a copy and returning it to Landlord. If Tenant fails to sign and return the certificate to Landlord within ten (10) days of its receipt from Landlord, the certificate as sent by Landlord shall be deemed to have correctly set forth the Second Amendment Commencement Date and the other matters addressed in the certificate. Failure of Landlord to send the certificate shall have no effect on the Second Amendment Commencement Date.
3. Confirmation of Second Amendment Premises. From and after the Second Amendment Commencement Date, the First Amendment Premises (being comprised of the Existing Premises and the Suite 120 Premises, combined) and the Suite 250 Premises shall contain a total of 46,939 rentable square feet (being comprised of 27,984 rentable square feet of office space and 18,955 rentable square feet of warehouse space), designated as Suite 100, Suite 120, Suite 200 and Suite 250 in the Building (the First Amendment Premises and the Suite 250 Premises being collectively referred to herein as the “Second Amendment Premises”). From and after the Second Amendment Commencement Date, references in the Lease to the “Premises” (as such term is defined in the Lease) shall be construed to mean the Second Amendment Premises.
2
4. Monthly Installments of Rent. Tenant shall continue to pay Annual Rent and Monthly Installments of Rent in accordance with the existing terms of the Lease applicable thereto; provided, however, commencing on the Second Amendment Commencement Date and continuing through the First Amendment Termination Date (July 31, 2022), the Annual Rent and Monthly Installments of Rent for the Second Amendment Premises (being the First Amendment Premises and the Suite 250 Premises, combined) shall be amended to be due and payable in monthly installments as follows:
(a) Suite 250 Premises. Commencing on and as of the Second Amendment Commencement Date (or the “SACD”, as defined above), and continuing through the expiration of the Second Amendment Term (ending on July 31, 2022, or the “FATD”, as defined above), Tenant shall pay Annual Rent and Monthly Installments of Rent for the Suite 250 Premises only as set forth below:
| Period (Second Amendment Term) | Rate/rsf/annum (for 8,192 rsf) | Monthly Installments of Rent | ||
| SACD to Month 12, inclusive: | $22.00, plus NNN* | $15,018.67, plus NNN* | ||
| Months 13 to the FATD, inclusive: | $22.75, plus NNN* | $15,530.67, plus NNN* |
| * | NNN - Tenant’s Proportionate Share of Expenses and Taxes |
| Notwithstanding the forgoing, stipulated in this Paragraph 3 which on a pro rata basis. | Monthly Installments of Rent for any period is not a full calendar month shall be calculated |
(b) First Amendment Premises. In addition to the Annual Rent and Monthly Installments of Rent for the Suite 250 Premises, as set forth in Paragraph 3(a) above, Tenant shall continue to pay Annual Rent and Monthly Installments of Rent for the Existing Premises and the Suite 120 Premises through the expiration of the Second Amendment Term (ending on July 31 2022) in accordance with, and as further set forth in, Paragraph 5(a) (as to the Suite 120 Premises) and Paragraph 5(b) (as to the Existing Premises) of the First Amendment.
5. Additional Rent. Landlord and Tenant acknowledge and agree that throughout the Second Amendment Term, in addition to the Monthly Installments of Rent for the Second Amendment Premises (being the First Amendment Premises and the Suite 250 Premises, combined), as set forth in Paragraph 3 above, Tenant shall be continue to be obligated to pay, on a “net” basis for each Lease Year, the Rent Adjustments as additional rent, as follows:
(a) Tenant shall pay, as additional rent, Tenant’s Proportionate Share of Expenses and Taxes (as more fully described in Article 4 of the Lease) with respect to the Premises and all other rent and other costs and charges specified in the Lease for each such Lease Year throughout the Second Amendment Term, in accordance with the existing terms and provisions of the Lease applicable thereto (including, specifically, Article 4 of the Lease). Additionally, throughout the Second Amendment Term, Tenant shall continue to pay for all water, gas, heat, light, power, telephone, sewer, sprinkler system charges and other utilities and services used on or from the Second Amendment Premises, in accordance with and subject to the terms of the Lease, including, but not limited to, Article 13 of the Lease.
3
(b) Notwithstanding anything contained in the Lease to the contrary, Landlord and Tenant acknowledge and agree that commencing on and as of the Second Amendment Commencement Date and continuing throughout the remainder of the Term of the Lease (as extended by the First Amendment), the Lease shall be amended in connection with the Expenses under the Lease to add the following at the end of Paragraph 4.1.2 (Expenses) of the Lease: “In connection with the operation, management, repair or maintenance of and for the Building and the Premises, Landlord has agreed to perform the following, the costs and expenses of which are anticipated to be incurred by Landlord and shall be included in the Expenses charges under the Lease: the quarterly maintenance of the heating, ventilating and air conditioning system located within the Premises (but excluding any supplemental heating, ventilating and air conditioning system providing supplemental service to the Premises).”
(c) Landlord and Tenant acknowledge and agree that commencing on and as of the Second Amendment Commencement Date and continuing through the expiration of the Second Amendment Term (ending on July 31, 2022), Tenant’s Proportionate Share (as defined in the Reference Pages of the Lease) for the Second Amendment Premises (being the First Amendment Premises and the Suite 250 Premises, combined) shall be amended to be as follows: (i) 86.0319% (46,939 rsf/54,560 rsf) of the Building; (ii) 8.04% (46,939 rsf/583,817 rsf) of the Building Complex, and (iii) 6.001% (46,939 rsf/782,185 rsf) of the Project.
6. Condition of Premises. Tenant is currently in possession of the First Amendment Premises, and Tenant shall continue to accept the First Amendment Premises in its existing “AS-IS”, “WHERE-IS” and “WITH ALL FAULTS” condition through the First Amendment Termination Date, and Landlord shall have no obligation whatsoever to refurbish or otherwise improve the First Amendment Premises at any time throughout the remainder of the Term of the Lease, as extended by the First Amendment. Tenant shall accept the Suite 250 Premises, in its existing “AS-IS”, “WHERE-IS” and “WITH ALL FAULTS” condition, and Landlord shall have no obligation whatsoever to refurbish or otherwise improve the Suite 250 Premises at any time during the Second Amendment Term; provided, however, on or prior to the Second Amendment Commencement Date, Landlord agrees to perform the Second Amendment Improvements (defined in Exhibit “B”) in the Suite 250 Premises pursuant to the Work Letter attached hereto as Exhibit “B”. Tenant further acknowledges and agrees that any obligations of Landlord existing in the Lease to complete leasehold improvements and/or furnish allowance(s) with respect to the First Amendment Premises, including, but not limited to, the improvements identified in Paragraph 7 and Exhibit “C” attached to the First Amendment, have been completed and/or satisfied in their entirety, and any provisions in the Lease providing for such obligations are hereby null and void and of no further force or effect.
4
7. Building Systems. Landlord and Tenant agree that Landlord will use commercially reasonable efforts to deliver the Suite 250 Premises to Tenant such that the mechanical, electrical and plumbing systems (the “MEP Systems”) in the Suite 250 Premises are in good working order as of the Second Amendment Commencement Date. If Tenant notifies Landlord in writing within ninety (90) days following the Second Amendment Commencement Date of any material defects in the MEP Systems serving the Suite 250 Premises, then, provided (i) Landlord, acting in good faith, does not dispute Tenant’s claim of a material defect in the MEP Systems, and (ii) such material defect was not caused by the acts, omissions, negligence or willful misconduct of Tenant, its agents, employees, contractors or invitees, then Landlord, at Landlord’s sole cost and expense, shall use commercially reasonable efforts to repair such material defect serving the Suite 250 Premises. Tenant covenants to Landlord that it shall promptly notify Landlord of Tenant’s or its agents, representative’s or contractor’s discovery of any material defects in the MEP Systems serving the Suite 250 Premises as set forth above.
8. Renewal Option. Landlord and Tenant acknowledge and agree that Tenant shall continue to have the right to further extend the Term of the Lease beyond the Second Amendment Term for one (1) additional period of five (5) years, pursuant to and in accordance with the terms and conditions set forth in Paragraph 8 and Exhibit “D” (One Renewal Option at Market) attached to and made a part of the First Amendment (such additional period being defined in the Lease and referred to herein as the “Extension Term”). Notwithstanding the foregoing, in the event Tenant elects to exercise its right to further extend the Lease for the Extension Term, Tenant shall notify Landlord in writing (such notice being defined in the Lease and referred to herein as the “Extension Notice”) of its election to renew the Lease for the Extension Term at least nine (9) months, but not more than twelve (12) months, prior to the First Amendment Termination Date, and the Commencement Date of the Extension Term will commence on the day following the expiration of the First Amendment Tenn in accordance with the terms of the First Amendment.
9. Right of First Offer. Landlord and Tenant further acknowledge and agree that Tenant’s right to further expand the size of the First Amendment Premises in accordance with Paragraph 8, Exhibit “E” (Right of First Offer) and Exhibit E-1 (Description of Offered Space) of the First Amendment are hereby deleted in their entirety and of no further force and effect.
10. No Preferential Rights or Options. Notwithstanding anything to the contrary contained in the Lease, with the exception of the renewal option, as described and expressly set forth in Paragraph 8 above and Exhibit “D” (One Renewal Option at Market) attached to the First Amendment, Landlord and Tenant acknowledge and agree that, as of the Effective Date of this Second Amendment, Tenant has no renewal, termination, expansion, first offer or first refusal rights under the Lease, and any provisions in the Lease providing for such rights, including, without limitation, Paragraph 42 (Option to Renew) and Paragraph 43 (Acceleration Option) in the Original Lease, and Paragraph 8, Exhibit “E” (Right of First Offer) and Exhibit E-1 (Description of Offered Space) of the First Amendment, are hereby null and void and of no further force or effect.
11. Parking. Landlord and Tenant acknowledge and agree that Tenant shall continue to have non-exclusive parking rights in and to the Building Complex’s parking facilities, as more fully set forth in the Lease, including, but not limited to Section 1.3 of the Lease and amended by Paragraph 10 of the First Amendment. Effective on and as of the Second Amendment Commencement Date, and continuing through the expiration of the Second Amendment Term, in addition to the current parking stipulated in Lease, Landlord shall make available to Tenant an additional twenty-five (25) uncovered, unreserved, surface parking spaces (being approximately three (3) parking spaces per 1,000 rentable square feet of office space contained within the Suite 250 Premises), at no additional charge to Tenant through the expiration of the Second Amendment Term.
5
12. Security Deposit. Landlord and Tenant hereby agree that the Security Deposit, as set forth on the Reference Pages of the Original Lease, is hereby amended and increased to be $109,606.19. Tenant has heretofore deposited with Landlord a total sum of $90,000.00 (the “Current Security Deposit”), and Tenant has, concurrently with the execution of this Second Amendment, deposited to Landlord an additional amount of $19,606.19 (the “Second Additional Security Deposit”), which Second Additional Security Deposit shall be added to the Current Security Deposit for a total of $109,606.19, in the aggregate.
13. Signage. Landlord and Tenant acknowledge and agree that Tenant shall continue to have the signage rights set forth in the Lease, including, but not limited to Section 40 of the Lease, as amended by Paragraph 11 of the First Amendment. Effective on and as of the Second Amendment Commencement Date, and continuing through the expiration of the Second Amendment Term, Tenant shall also have the right to one (1) interior building standard suite sign located outside of (but near the entrance to) the Suite 250 Premises (the “Interior Suite 250 Sign”), the location of which Interior Suite 250 Sign shall be reasonably designated by Landlord. Landlord shall pay for the initial Interior Suite 250 Sign, and Tenant shall be responsible for the cost of all replacements or repairs thereto.
14. Force Majeure. The following sentence shall be added to the end of the new Section 46 of the Original Lease (Force Majeure), which new Section 46 was added pursuant to Paragraph 13 of the First Amendment: “Notwithstanding anything to the contrary in the Lease, in no event will any force majeure event excuse the Tenant’s obligation to pay rent or other amounts.”
15. OFAC Compliance. Tenant certifies, represents, warrants and covenants that: (i) it is not acting and will not act, directly or indirectly, for or on behalf of any person, group, entity, or nation named by any Executive Order or the United States Treasury Department as a terrorist, “Specially Designated National and Blocked Person”, or other banned or blocked person, entity, nation or transaction pursuant to any law, order, rule, or regulation that is enforced or administered by the Office of Foreign Assets Control; and (ii) it is not engaged in this transaction, directly or indirectly on behalf of, or instigating or facilitating this transaction, directly or indirectly on behalf of, any such person, group, entity or nation. Tenant hereby agrees to defend (with counsel reasonably acceptable to Landlord), indemnify and hold harmless Landlord and its designated property management company, and their respective partners, members, affiliates and subsidiaries, and all of their respective officers, directors, shareholders, employees, servants, partners, representatives, insurers and agents from and against any and all claims or damages arising from or related to any such breach of the foregoing certifications, representations, warranties and covenants.
6
16. Cannabis. Tenant agrees that the Premises shall not be used for the use, growing, producing, processing, storing (short or long term), distributing, transporting, or selling of cannabis, cannabis derivatives, or any cannabis containing substances (“Cannabis”), or any office uses related to the same, nor shall Tenant permit, allow or suffer, any of Tenant’s officers, employees, agents, servants, licensees, subtenants, concessionaires, contractors and invitees to bring onto the Premises, any Cannabis. Without limiting the foregoing, the prohibitions in this paragraph shall apply to all Cannabis, whether such Cannabis is legal for any purpose whatsoever under state or federal law or both. Notwithstanding anything to the contrary, any failure by Tenant to comply with each of the terms, covenants, conditions and provisions of this paragraph shall automatically and without the requirement of any notice be an Event of Default that is not subject to cure, and Tenant agrees that upon the occurrence of any such Event of Default, Landlord may elect, in its sole discretion, to exercise all of its rights and remedies under this Lease, at law or in equity with respect to such Event of Default
17. Tenant’s Entity Information. Tenant acknowledges and agrees that a copy of the entity information available for Tenant, as a Delaware corporation, from the Delaware Secretary of State’s website is attached hereto as Exhibit “C” and made a part hereof for all purposes. Additionally, Tenant certifies to Landlord that David Kirtley is the chief executive officer of Tenant and Chris Phil is chief financial officer of Tenant.
18. Brokers. Tenant warrants that it has had no dealings with any broker or agent other than Jones Lang LaSalle and Kidder Mathews (collectively, the “Brokers”) in connection with the negotiation or execution of this Second Amendment, and Tenant agrees to indemnify Landlord and hold Landlord harmless from and against any and all costs, expenses or liability for commissions or other compensations or charges claimed by any broker or agent, other than the Brokers, with respect to this Second Amendment or the transactions evidenced hereby.
19. Miscellaneous. With the exception of those terms and conditions specifically modified and amended herein, the herein referenced Lease shall remain in full force and effect in accordance with all its terms and conditions. In the event of any conflict between the terms and provisions of this Second Amendment and the terms and provisions of the Lease, the terms and provisions of this Second Amendment shall supersede and control.
20. Counterparts. This Second Amendment may be executed in any number of counterparts, each of which shall be deemed an original, and all of such counterparts shall constitute one agreement. Signature pages from one counterpart may be detached from such counterpart and added to other counterparts.
[SIGNATURE PAGE TO FOLLOW]
7
SECOND AMENDMENT TO LEASE
BY AND BETWEEN KORE WESTPARK LLC, AS LANDLORD,
AND HELION ENERGY, INC., AS TENANT
IN WITNESS WHEREOF, Landlord and Tenant, acting herein by duly authorized individuals, have caused these presents to be executed on the respective dates set forth below, to be effective for all purposes, however, as of the Effective Date first set forth above.
| LANDLORD: | ||
| KORE WESTPARK LLC, | ||
| a Delaware limited liability company | ||
| By: | Pacific Oak Capital Advisors, LLC, a Delaware limited liability company, as its authorized agent | |
| By: | /s/ Jason Espiritu | ||
| Jason Espiritu, Vice President | |||
| Date: | 4/13, 2021 |
| TENANT: | ||
| HELION ENERGY, INC., | ||
| a Delaware corporation | ||
| By: | /s/ David Kirtley | |
| Name: | Dr. David Kirtley | |
| Title: | CEO | |
| Date: | April 6th, 2021 | |
8
SECOND AMENDMENT TO LEASE
BY AND BETWEEN KORE WESTPARK LLC, AS LANDLORD,
AND HELION ENERGY, INC., AS TENANT
| STATE OF CALIFORNIA | § | |
| § ss. | ||
| COUNTY OF ORANGE | § |
I certify that I know or have satisfactory evidence that JASON ESPIRITU is the person who appeared before me, and said person acknowledged that he signed this instrument, on oath stated that he was authorized to execute the instrument and acknowledged it as the Vice President of Pacific Oak Capital Advisors, LLC, a Delaware limited liability company, as the authorized agent of KORE WESTPARK LLC, a Delaware limited liability company, to be the free and voluntary act of such party for the uses and purposes mentioned in the instrument.
|
Dated: April 13 , 2021. |
| /s/ Laurie Selwitz | ||
| (Signature) | ||
| Laurie Selwitz | ||
| (Print Name) | ||
| Notary Public, in and for the State | ||
| of California, residing at | Newport Beach | |
| My Commission Expires | 2/11/23 | |
| STATE OF WASHINGTON | § | |
| § ss. | ||
| COUNTY OF King | § |
I certify that I know or have satisfactory evidence that David Kirtley is the person who appeared before me, and said person acknowledged that he/she signed this instrument, on oath stated that he/she was authorized to execute the instrument and acknowledged it as the CEO of HELION ENERGY, INC., a Delaware corporation, to be the free and voluntary act of such party for the uses and purposes mentioned in the instrument.
Dated: 4/6, 2021
| /s/ Aaron Anderson | ||
| (Signature) | ||
| Aaron Anderson | ||
| (Print Name) | ||
| Notary Public, in and for the State | ||
| of Washington, residing at | 15723 NE 1st Pl | |
| My Commission Expires | 10/14/24 | |
9
EXHIBIT “A”
DESCRIPTION OF THE SECOND AMENDMENT PREMISES

A-1
EXHIBIT “B”
WORK LETTER
THIS WORK LETTER is attached as Exhibit “B” to the Second Amendment to Lease between KORE WESTPARK LLC, a Delaware limited liability company, as Landlord, and HELION ENERGY, INC., a Delaware corporation, as Tenant, and constitutes the further agreement between Landlord and Tenant as follows:
(a) Landlord agrees to furnish or perform, at Landlord’s sole cost and expense, utilizing building standard materials and a contractor selected by Landlord, those items of construction and those improvements (the “Second Amendment Improvements”) specified below:
| (i) | Remove all existing classroom walls in the Suite 250 Premises; |
| (ii) | Paint the walls of the Suite 250 Premises, utilizing building standard paint; and |
| (iii) | Replace the existing carpeting in the Suite 250 Premises with building standard carpeting. |
(b) If Tenant shall desire any changes in the Second Amendment Improvements, Tenant shall so advise Landlord in writing and Landlord shall determine whether such changes can be made in a reasonable and feasible manner. Any and all costs of reviewing any requested changes, and any and all costs of making any changes to the Second Amendment Improvements which Tenant may request and which Landlord may agree to shall be at Tenant’s sole cost and expense and shall be paid to Landlord upon demand and before execution of the change order.
(c) Landlord shall proceed with and complete the construction of the Second Amendment Improvements. As soon as such improvements have been Substantially Completed, Landlord shall notify Tenant in writing of the date that the Second Amendment Improvements were Substantially Completed. The Second Amendment Improvements shall be deemed substantially completed (“Substantially Completed”, or any grammatical variant thereof) when, in the opinion of the Landlord’s architect (whether an employee or agent of Landlord or a third party architect) (“Architect”), the Suite 250 Premises are substantially completed except for punch list items which do not prevent in any material way the use of the Suite 250 Premises for the purposes for which they were intended. In the event Tenant, its employees, agents, or contractors cause construction of such Second Amendment Improvements to be delayed, the date of Substantial Completion shall be deemed to be the date that, in the opinion of the Architect, Substantial Completion would have occurred if such delays had not taken place. Without limiting the foregoing, Tenant shall be solely responsible for delays caused by Tenant’s request for any changes in the plans, Tenant’s request for long lead items or Tenant’s interference with the construction of the Second Amendment Improvements (each of the foregoing, a “Tenant Delay”), and such Tenant Delays shall not cause a deferral of the Second Amendment Commencement Date beyond what it otherwise would have been. After the Second Amendment Commencement Date Tenant shall, upon demand, execute and deliver to Landlord a letter of acceptance of delivery of the Suite 250 Premises. In the event of any dispute as to the Second Amendment Improvements, including the Second Amendment Commencement Date, the certificate of the Architect shall be conclusive absent manifest error.
B-1
(d) The failure of Tenant to take possession of or to occupy the Suite 250 Premises shall not serve to relieve Tenant of obligations arising on the Second Amendment Commencement Date or delay the payment of Rent by Tenant. Subject to applicable ordinances and building codes governing Tenant’s right to occupy or perform in the Suite 250 Premises, Tenant shall be allowed to install its tenant improvements, machinery, equipment, fixtures, or other property on the Suite 250 Premises during the final stages of completion of construction provided that Tenant does not thereby interfere with the completion of construction or cause any labor dispute as a result of such installations, and provided further that Tenant does hereby agree to indemnify, defend, and hold Landlord harmless from any loss or damage to such property, and all liability, loss, or damage arising from any injury to the Project, Building or the property of Landlord, its contractors, subcontractors, or materialmen, and any death or personal injury to any person or persons arising out of such installations, EVEN IF SUCH LOSS, DAMAGE, LIABILITY, DEATH, OR PERSONAL INJURY WAS CAUSED SOLELY OR IN PART BY LANDLORD’S NEGLIGENCE, BUT NOT TO THE EXTENT CAUSED BY THE GROSS NEGLIGENCE OR WILLFUL MISCONDUCT OF LANDLORD. Any such occupancy or performance in the Suite 250 Premises shall be in accordance with the provisions governing alterations in the Original Lease, and shall be subject to Tenant providing to Landlord satisfactory evidence of insurance for personal injury and property damage related to such installations and satisfactory payment arrangements with respect to installations permitted hereunder. Delay in putting Tenant in possession of the Suite 250 Premises shall not serve to extend the Term of the Lease or to make Landlord liable for any damages arising therefrom.
(e) Except for incomplete punch list items, Tenant upon the Second Amendment Commencement Date shall have and hold the Suite 250 Premises as the same shall then be without any liability or obligation on the part of Landlord for making any further alterations or improvements of any kind in or about the Suite 250 Premises.
B-2
EXHIBIT “C”
TENANT’S ENTITY INFORMATION

C-1
THIRD AMENDMENT TO LEASE
This Third Amendment to Lease (this “Third Amendment”) is made and entered into by and between KORE WESTPARK LLC, a Delaware limited liability company (“Landlord”), and HELION ENERGY, INC., a Delaware corporation (“Tenant”), effective on and as of the date on which the Landlord executes this Third Amendment as set forth on the signature page hereto (the “Effective Date”).
WITNESSETH:
WHEREAS, Landlord and Tenant are parties to that certain Lease dated March 17, 2015, originally entered into by and between Calwest Industrial Properties, LLC, a California limited liability company (the “Original Landlord”), as landlord, and Tenant, as tenant (the “Original Lease”), as subsequently amended by that certain First Amendment to Lease, dated as of May 18, 2020, between Landlord, as landlord, and Tenant, as tenant (the “First Amendment”), Second Amendment to Lease, dated as of April 13, 2021 between Landlord, as landlord, and Tenant, as tenant (the “Second Amendment”) and letter from Landlord dated July 28, 2021 (the “Letter”; with the Original Lease, as amended by the First Amendment, Second Amendment and Letter, being collectively referred to herein as the “Lease”), pursuant to which Tenant currently leases a total of 46,939 rentable square feet (being comprised of 27,984 rentable square feet of office space and 18,955 rentable square feet of warehouse space), being comprised of the following spaces (i) a total of 31,372 rentable square feet (being comprised of 16,072 rentable square feet of office space (5,397 rentable square feet in Suite 100 and 10,675 rentable square feet in Suite 230) and 15,300 rentable square feet of warehouse space) in the Building (such space being defined in the First Amendment, and referred to herein as the “Existing Premises”), (ii) 7,375 rentable square feet (being comprised of 3,720 rentable square feet of office space and 3,655 rentable square feet of warehouse space), designated as Suite 120 in the Building (such space being defined in the First Amendment, and referred to herein as the “Suite 120 Premises”), and (iii) 8,192 rentable square feet of office space, designated as Suite 250 in the Building (such space being defined in the First Amendment, and referred to herein as the “Suite 250 Premises”; with the Existing Premises, the Suite 120 Premises and the Suite 250 Premises being collectively defined in the Second Amendment, and referred to herein, as the “Second Amendment Premises”), and having an address of 8210 154th Avenue NE, Redmond, Washington 98052, located in Building A (the “Building”), in the fourteen (14) building project commonly known as the Westpark Business Park (the “Building Complex”), in the twenty-one (21) building project comprised of the following: (i) the Building Complex (Westpark Business Park), (ii) the two (2) building office and industrial building complex, commonly known as Redmond Center Court, and (iii) the five (5) building office and industrial building complex commonly known as Pacific Business and Technology Center (collectively referred to as the “Project”); and
WHEREAS, Landlord has succeeded to all of the rights, title and interests of the “Landlord” under the Lease; and
WHEREAS, pursuant to the terms of the Letter, Landlord advised Tenant that the First Amendment and Second Amendment had inadvertently referred to a portion of the Premises as being in designated as Suite 200 in Building A, when, in fact the correct suite designation of such space was Suite 230 in Building A; and
WHEREAS, pursuant to the terms of the First Amendment, the Term of the Lease was extended for an additional period (the “First Amendment Term”), which First Amendment Term expires on July 31, 2022 (such date being defined in the First Amendment, and referred to herein, as the “First Amendment Termination Date” or the “FATD”), and
WHEREAS, Landlord and Tenant desire to amend the terms of the Lease to, among other things, extend the Term of the Lease, all as more particularly set forth herein below;
NOW, THEREFORE, pursuant to the foregoing, and in consideration of the mutual covenants and agreements contained herein and in the Lease, and other good and valuable consideration paid by each of Landlord and Tenant to the other, the receipt and sufficiency of which are hereby acknowledged, Landlord and Tenant agree that the Lease is hereby ratified and amended as follows:
1. Defined Terms. All capitalized terms used herein shall have the same meaning as defined in the Lease, unless otherwise defined in this Third Amendment.
2. Extension of Term. The Term of the Lease (currently expiring on July 31, 2022) is hereby extended for an additional period of twenty-four (24) months, commencing on August 1, 2022 (the “Third Amendment Commencement Date”) and continuing through and expiring on July 31, 2024 (the “Third Amendment Termination Date”), upon and subject to all of the existing terms of the Lease, as amended by this Third Amendment.
3. Annual Rent and Monthly Installments of Rent. Tenant shall continue to pay Annual Rent and Monthly Installments of Rent in accordance with the terms and conditions of the Lease applicable thereto; provided, however, commencing on the Third Amendment Commencement Date (August 1, 2022) and continuing through the Third Amendment Termination Date (July 31, 2024; with the period from the Third Amendment Commencement Date through the Third Amendment Termination Date being referred to herein as the “Third Amendment Term”), Tenant shall pay Monthly Installments of Rent for the Premises as set forth below:
| Period (Third Amendment Term) | Approximate rate/rsf/annum for office space (27,984 rsf) | Approximate rate/rsf/annum for warehouse space (18,955 rsf) | Total Monthly Installments of Rent (office space and warehouse space) | ||||||
| From | Through | ||||||||
| 08/01/2022 | 07/31/2023 | $26.50, plus NNN* ($61,798.00/month) | $12.60, plus NNN* ($19,902.75/month) | $81,700.75, plus NNN*+ | |||||
| 08/01/2023 | 07/31/2024 | $27.30, plus NNN* ($63,651.94/month) | $12.98, plus NNN* ($20,499.83/month) | $84,151.77, plus NNN* | |||||
| *NNN - Tenant’s Proportionate Share of Expenses and Taxes | |||||||||
2
4. Additional Rent. Landlord and Tenant acknowledge and agree that throughout the Third Amendment Term, in addition to the Monthly Installments of Rent for the Second Amendment Premises, as set forth in Paragraph 3 above, Tenant shall be continue to be obligated to pay, on a “net” basis for each Lease Year, the Rent Adjustments as additional rent, as follows:
(a) Tenant shall pay, as additional rent, Tenant’s Proportionate Share of Expenses and Taxes (as more fully described in Article 4 of the Lease) with respect to the Second Amendment Premises and all other rent and other costs and charges specified in the Lease for each such Lease Year throughout the Third Amendment Term, in accordance with the existing terms and provisions of the Lease applicable thereto (including, specifically, Article 4 of the Lease). Additionally, throughout the Third Amendment Term, Tenant shall continue to pay for (i) all water, gas, heat, light, power, telephone, sewer, sprinkler system charges and other utilities and services used on or from the Second Amendment Premises, in accordance with and subject to the terms of the Lease, including, but not limited to, Article 13 of the Lease, and (ii) the quarterly maintenance of the heating, ventilating and air conditioning system located within the Second Amendment Premises (but excluding any supplemental heating, ventilating and air conditioning system providing supplemental service to the Premises), in accordance with Paragraph 5(b) of the Second Amendment.
(b) Landlord and Tenant acknowledge and agree that commencing on and as of the Third Amendment Commencement Date and continuing through the expiration of the Third Amendment Term (ending on July 31, 2024), Tenant’s Proportionate Share (as defined in the Reference Pages of the Lease) for the Second Amendment Premises shall be as follows: (i) 86.0319% (46,939 rsf/54,560 rsf) of the Building; (ii) 8.04% (46,939 rsf/583,817 rsf) of the Building Complex, and (iii) 6.001% (46,939 rsf/782,185 rsf) of the Project.
5. Condition of Second Amendment Premises. Tenant is currently in possession of the Second Amendment Premises, and Tenant shall continue to accept the Second Amendment Premises in its existing “AS-IS”, “WHERE-IS” and “WITH ALL FAULTS” condition through the expiration of the Third Amendment Term, and Landlord shall have no obligation whatsoever to refurbish or otherwise improve the Second Amendment Premises at any time throughout the remainder of the Term of the Lease, as extended by this Third Amendment. Tenant further releases any obligations of Landlord existing in the Lease to complete leasehold improvements and/or furnish allowance(s) with respect to the Second Amendment Premises, including, but not limited to, the improvements identified in Paragraph 6 and Exhibit “B” attached to the Second Amendment, and any provisions in the Lease providing for such obligations are hereby null and void and of no further force or effect.
6. Renewal Option. Landlord and Tenant acknowledge and agree that Tenant shall continue to have the right to further extend the Term of the Lease beyond the Third Amendment Term for one (1) additional period of five (5) years, pursuant to and in accordance with the terms and conditions set forth in Paragraph 8 and Exhibit “D” (One Renewal Option at Market) attached to and made a part of the First Amendment (such additional period being defined in the Lease and referred to herein as the “Extension Term”).
(a) Notwithstanding the foregoing, in the event Tenant elects to exercise its right to further extend the Lease for the Extension Term, Tenant shall notify Landlord in writing (such notice being defined in the Lease and referred to herein as the “Extension Notice”) of its election to renew the Lease for the Extension Term at least nine (9) months, but not more than twelve (12) months, prior to the Third Amendment Termination Date, and the Commencement Date of the Extension Term will commence on the day following the expiration of the Third Amendment Term in accordance with the terms of the First Amendment, as amended by this Third Amendment.
3
(b) In the event Tenant fails to timely deliver the Extension Notice as set forth above, Landlord shall have the right at any time after November 1, 2023 (i.e., the date which is nine (9) calendar months prior to the Third Amendment Termination Date), to actively market and exhibit the Second Amendment Premises to prospective tenants (the “Prospective Tenant”, whether one or more) in accordance with such terms and provisions as Landlord shall determinate in Landlord’s sole and absolute discretion; provided, however, prior to showing the Second Amendment Premises to Prospective Tenants, to the extent practicable, Landlord agrees to use commercially reasonable efforts to (i) provide Tenant with reasonable advance notice of such showings, and (ii) to schedule such showings of the Second Amendment Premises during normal building hours for the Building.
0. No Preferential Rights or Options. Notwithstanding anything to the contrary contained in the Lease, with the exception of the renewal option, as described and expressly set forth in Paragraph 8 above and Exhibit “D” (One Renewal Option at Market) attached to the First Amendment (as amended by Paragraph 8 above), Landlord and Tenant acknowledge and agree that, as of the Effective Date of this Third Amendment, Tenant has no renewal, termination, expansion, first offer or first refusal rights under the Lease, and any provisions in the Lease providing for such rights are hereby null and void and of no further force or effect.
1. Parking. Landlord and Tenant acknowledge and agree that Tenant shall continue to have its existing non-exclusive parking rights in and to the Building Complex’s parking facilities, as more fully set forth in the Lease, including, but not limited to Section 1.3 of the Lease and amended by Paragraph 10 of the First Amendment and Paragraph 11 of the Second Amendment.
2. OFAC Compliance. Tenant certifies, represents, warrants and covenants that: (i) it is not acting and will not act, directly or indirectly, for or on behalf of any person, group, entity, or nation named by any Executive Order or the United States Treasury Department as a terrorist, “Specially Designated National and Blocked Person”, or other banned or blocked person, entity, nation or transaction pursuant to any law, order, rule, or regulation that is enforced or administered by the Office of Foreign Assets Control; and (ii) it is not engaged in this transaction, directly or indirectly on behalf of, or instigating or facilitating this transaction, directly or indirectly on behalf of, any such person, group, entity or nation. Tenant hereby agrees to defend (with counsel reasonably acceptable to Landlord), indemnify and hold harmless Landlord and its designated property management company, and their respective partners, members, affiliates and subsidiaries, and all of their respective officers, directors, shareholders, employees, servants, partners, representatives, insurers and agents from and against any and all claims or damages arising from or related to any such breach of the foregoing certifications, representations, warranties and covenants.
4
3. Cannabis. Tenant agrees that the Premises shall not be used for the use, growing, producing, processing, storing (short or long term), distributing, transporting, or selling of cannabis, cannabis derivatives, or any cannabis containing substances (“Cannabis”), or any office uses related to the same, nor shall Tenant permit, allow or suffer, any of Tenant’s officers, employees, agents, servants, licensees, subtenants, concessionaires, contractors and invitees to bring onto the Premises, any Cannabis. Without limiting the foregoing, the prohibitions in this paragraph shall apply to all Cannabis, whether such Cannabis is legal for any purpose whatsoever under state or federal law or both. Notwithstanding anything to the contrary, any failure by Tenant to comply with each of the terms, covenants, conditions and provisions of this paragraph shall automatically and without the requirement of any notice be an Event of Default that is not subject to cure, and Tenant agrees that upon the occurrence of any such Event of Default, Landlord may elect, in its sole discretion, to exercise all of its rights and remedies under this Lease, at law or in equity with respect to such Event of Default
4. Tenant’s Entity Information. Tenant acknowledges and agrees that a copy of the entity information available for Tenant, as a Delaware corporation, from the Delaware Secretary of State’s website is attached hereto as Exhibit “A” and made a part hereof for all purposes. Additionally, Tenant certifies to Landlord that David Kirtley is the chief executive officer of Tenant and Scott Krisiloff is chief business officer of Tenant.
5. Brokers. Tenant warrants that it has had no dealings with any broker or agent other than NAI Puget Sound Properties, representing the Tenant, and Jones Lang LaSalle and Kidder Mathews, representing the Landlord (collectively, the “Brokers”) in connection with the negotiation or execution of this Third Amendment, and Tenant agrees to indemnify Landlord and hold Landlord harmless from and against any and all costs, expenses or liability for commissions or other compensations or charges claimed by any broker or agent, other than the Brokers, with respect to this Third Amendment or the transactions evidenced hereby.
6. Miscellaneous. With the exception of those terms and conditions specifically modified and amended herein, the herein referenced Lease shall remain in full force and effect in accordance with all its terms and conditions. In the event of any conflict between the terms and provisions of this Third Amendment and the terms and provisions of the Lease, the terms and provisions of this Third Amendment shall supersede and control.
7. Counterparts. This Third Amendment may be executed in any number of counterparts, each of which shall be deemed an original, and all of such counterparts shall constitute one agreement. Signature pages from one counterpart may be detached from such counterpart and added to other counterparts.
[SIGNATURE PAGE TO FOLLOW]
5
THIRD AMENDMENT TO LEASE
BY AND BETWEEN KORE WESTPARK LLC, AS LANDLORD,
AND HELION ENERGY, INC., AS TENANT
IN WITNESS WHEREOF, Landlord and Tenant, acting herein by duly authorized individuals, have caused these presents to be executed on the respective dates set forth below, to be effective for all purposes, however, as of the Effective Date first set forth above.
| LANDLORD: | |||
| KORE WESTPARK LLC, | |||
| a Delaware limited liability company | |||
| By: | Pacific Oak Capital Advisors, LLC, a Delaware limited liability company, as its authorized agent | ||
| By: | /s/ Jason Espiritu | ||
| Jason Espiritu, Vice President | |||
| Date: _____4/21_______, 2022 | |||
| TENANT: | |||
| HELION ENERGY, INC., a Delaware corporation | |||
| By: | /s/ David Kirtley | ||
| Name: | David Kirtley | ||
| Title: | CEO | ||
| Date: | April 5th, 2022 | ||
6
THIRD AMENDMENT TO LEASE
BY AND BETWEEN KORE WESTPARK LW, AS LANDLORD,
AND HELION ENERGY, INC., AS TENANT
| STATE OF CALIFORNIA | § |
| § ss. | |
| COUNTY OF ORANGE | § |
I certify that I know or have satisfactory evidence that JASON ESPIRITU is the person who appeared before me, and said person acknowledged that he signed this instrument, on oath stated that he was authorized to execute the instrument and acknowledged it as the Vice President of Pacific Oak Capital Advisors, LLC, a Delaware limited liability company, as the authorized agent of KORE WESTPARK LLC, a Delaware limited liability company, to be the free and voluntary act of such party for the uses and purposes mentioned in the instrument.
| Dated: 4/21/22 , 2022. | /s/ Laurie Selwitz | |
| (Signature) | ||
| Laurie Selwitz | ||
| (Print Name) | ||
| Notary Public, in and for the State | ||
| of California, residing at | Newport Beach | |
| My Commission Expires | 2/11/23 |
| STATE OF WASHINGTON | § |
| § ss. | |
| COUNTY OF KING | § |
I certify that I know or have satisfactory evidence that David Kirtley is the person who appeared before me, and said person acknowledged that he/she sig ed this instrument, on oath stated that he/she was authorized to execute the instrument and acknowledged it as the CEO of HELION ENERGY, INC., a Delaware corporation, to be the free and voluntary act of such party for the uses and purposes mentioned in the instrument.
| /s/ Emily Dozler | ||
| (Signature) | ||
| Emily Dozler | ||
| (Print Name) | ||
| Notary Public, in and for the State | ||
| of Washington, residing at | 17766 90th St. NE Apt. R386, Redmond, WA 98052 | |
| My Commission Expires | 10/28/2025 |
EXHIBIT “A”
TENANT’S ENTITY INFORMATION

A-I